景观中的一个卑微的存在,对其自然环境影响最小。这个小的避暑山庄探索了作为生态准则和美学的轻盈性。
A humble presence in the landscape, minimally impacting its natural setting. This small summerhouse explores lightness as an ecological guideline and aesthetic.



这座房子没有混凝土地基,轻轻地放在螺旋形的支柱上,让森林的地面几乎不受任何影响。相应的轻量级、木质结构和适度的材料调色,使房子在景观中具有临时而自然的存在。
Built without a concrete foundation, the house rests gently on helical pillars, leaving the forest floor nearly untouched. The corresponding lightweight, wooden construction and modest material palette endue the house with a temporary yet natural presence in the landscape.

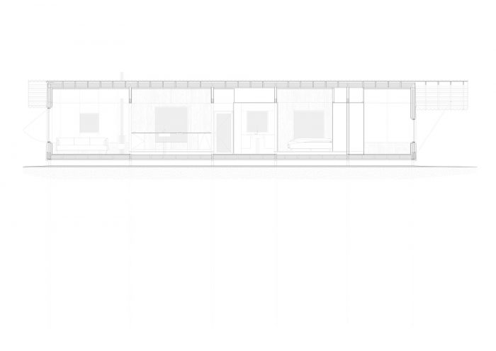
通过对比微小而不起眼的屋檐和相对较高的房间,房子从外面看很小,但从里面看却很宽敞。客房从外面进入,作为进一步节约室内空间的一种方式,同时在主人和他们的客人之间贡献了一种隐私感。
By contrasting a tiny and unassuming gable with relatively tall rooms, the house appears small from the outside but spacious from the inside. The guest room is accessed from the outside as a way of further economizing on interior space, contributing at the same time a sense of privacy between the host and their guests.

桦木胶合板只在身体和墙壁接触的地方被经济地应用,减少了材料的使用,暴露了建筑中的不同层次。结构元素是可见的,并允许人们认识和跟踪房子的发展,创造一种时间上的轻盈体验。
Birch plywood is economically applied only where the body and walls come into contact, reducing material use and exposing different layers in the construction. Structural elements are left visible and allow one to recognize and follow the becoming of the house, creating an experience of temporal lightness.

房子的外墙板在结构上产生薄而朦胧的线条,产生一种微妙的盘旋感。从构成浴室的薄薄的金属片到精致的木质框架及其低密度的木纤维绝缘材料,空气美学贯穿始终。
The house’s facade sheets generate thin, shadowy lines across the structure, producing a subtle sense of hovering. The airy aesthetic is apparent throughout, from the thinly cut metal pieces making up the bathroom to the delicate wooden frame and its low-density wood fiber insulation.


该项目研究了一种更轻的建筑方式,从生态学和美学角度来看。
The project examines a lighter way of building, ecologically as well as aesthetically.





























Architects: Kim Lenschow, pihlmann architects
Area : 58 m²
Year : 2022
Photographs :Hampus Berndtson, Peter Dalsgaard
Collaborating Architects : Pihlmann Architects
Country : Denmark