在靠近根特市中心的地方,BOGDAN & VAN BROECK将一个废弃的工厂场地改造成了一个繁荣的社区,包括三个拥有59套住宅的同居小组、一个邻里健康中心、一个循环的集体室内和室外空间,以及一个可以看到Bijgaardepark的工作室。在城市发展公司sogent和根特市的大力支持下,Bijgaardehof项目在城市发展和项目层面都注重可持续性。在法兰德斯最大的同居项目之一,一个雄心勃勃的混合项目围绕着会议和互动而组织。
Close to the center of Ghent, BOGDAN & VAN BROECK transformed an abandoned factory site into a flourishing community including three cohousing groups with 59 dwellings, a neighborhood health center, a circuit of collective indoor and outdoor spaces, and a workshop with a view of Bijgaardepark. With great commitment from the urban development company sogent and the city of Ghent, Bijgaardehof focuses on sustainability, both at the urban development and project levels. An ambitious, mixed program organized around meeting and interaction in one of the largest cohousing projects in Flanders.



城市中的集体生活。从这个项目开始--2009年由sogent组织的竞赛--废弃工厂场地的重建对BOGDAN & VAN BROECK来说是一个极好的机会,可以加强其对城市中集体居住的空间条件的雄心和愿景。更具体地说,Bijgaardehof回答了一些重要的,而且对实践来说是必要的质量标准:在当地设施和公共交通附近的城市密集化;回收、升级和绿化铁路沿线的空置棕地;共享功能,以便能够以可承受的成本提供更高的生活质量;结合城市自然和城市农业,以努力实现生活质量,我们称之为--因为这种流行病--"禁闭兼容的 "生活。sogent公司和根特市对这块废弃的工厂用地的重建的承诺和愿景是至关重要的。他们决定不只是把土地卖给出价最高的人,而是投资于一个具有社会活力和高质量的总体规划的项目。通过Energent公司,他们为提取地热提供了补贴,并使通过该地块北部的购物中心进行访问成为可能。
COLLECTIVE LIVING IN THE CITY. From the start of this project - with a competition organized by sogent in 2009 - the redevelopment of the abandoned factory site was an excellent opportunity for BOGDAN & VAN BROECK to reinforce its ambitions and vision of the spatial conditions for collective living in the city. More specifically, Bijgaardehof answers a number of important and, for the practice, necessary quality criteria: urban densification in the vicinity of local amenities and public transport; recycling, upgrading, and greening a vacant brownfield along the railway tracks; sharing functions in order to be able to offer a higher quality of life at an affordable cost; combining urban nature and urban agriculture in order to strive for a living quality that we have come to call - because of the pandemic - 'lockdown-compatible' living. The commitment and vision of sogent and the city of Ghent for the redevelopment of this abandoned factory site were crucial. They decided not to simply sell the land to the highest bidder, but to invest in a program with a social dynamic and a qualitative masterplan. Through Energent, they provided subsidies for the extraction of geothermal heat, and they made accessible via the shopping center to the north of the site possible.

一个 "本身就是世界的建筑和户外空间的网络。Bijgaardehof设计的出发点是工业用地的三角形的占地面积。周边的墙壁形成了一个简单而有力的图形,界定了 "墙内的世界 "和外面的世界之间的界限。这个图形的力量为保留这个世界的一些东西和它的典型空间性提供了动力。由于它的位置--可以看到后方和基础设施,也可以看到公园--旧工厂在城市街区中产生了一种令人惊讶的动态。通过在较小的占地面积上建造更高的建筑,可以在建筑物之间创造更多的绿色空间。这个 "本身的世界 "获得了强烈的个性:不是内向的或封闭的,而是多孔的、内部和外部开放的和可渗透的。为了保留工业用地以前的空间特质,不选择一个大型的多功能建筑,而是选择一个有相同语言的户外空间和建筑网络,是合乎逻辑的。这个户外空间网络形成了一个分支系统--大部分是绿色的,部分是矿物的--在新旧轮廓变化的背景下,将所有功能和建筑组织起来并在空间上连接起来。
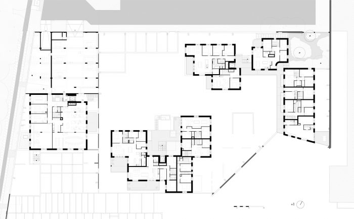
A 'WORLD IN ITSELF WITH A NETWORK OF BUILDINGS AND OUTDOOR SPACES. The starting point for the design of Bijgaardehof was the triangular footprint of the industrial site. The perimeter walls form a simple and strong figure that defines the boundary between 'the world inside the wall' and the world outside. The strength of this figure provided the impetus to retain something of this world and its typical spatiality. Due to its position - with a view of the rear sides and infrastructure, but also of the park - the old factory generates a surprising dynamic within the urban block. By building somewhat higher on a smaller footprint, space could be created for more greenery between the buildings. This 'world in itself' acquired a strong individuality: not introverted or closed, but porous, internally and externally open and permeable. In order to retain echoes of the former spatial qualities of the industrial site, it was logical not to opt for one large multifunctional building, but for a network of outdoor spaces and buildings that speak the same language. This network of outdoor spaces forms a branched system - largely green and partly mineral - that organizes and spatially connects all functions and buildings within a changing background of old and new contours.


辉煌的历史和高质量的涂鸦艺术。Bijgaardehof "这个名字可以追溯到中世纪。在强大的圣巴沃修道院的阴影下,16世纪的根特城墙内有一片郁郁葱葱的大自然:Bijgaard。它是以那里饲养的蜜蜂命名的。在19世纪,这个三角形的工厂墙属于一个更大的工业纺织综合体。随着根特纺织业在20世纪60年代的衰落,这些建筑被金属加工公司Malmar接管了。当他们于1997年离开时,开始寻找新的用途。同时,多年来的空置吸引了棚户区居民,但也吸引了涂鸦艺术家,他们在墙上涂鸦。这些作品中约有30件达到了意想不到的高标准。它们原来是罗亚的艺术作品:一个匿名的当代街头艺术艺术家,后来获得了国际声誉,作品遍布世界各地。他通过对动物和尸体的绘画,赞美自然,但也赞美其令人不安的消失。因此,从最初的竞赛设计开始,设计团队就努力保留其中一些标志性的艺术作品。这为尽可能地保留工厂以前的外墙和隔断墙提供了额外的论据。由于建筑竞赛结束后,该建筑空置多年,只有部分作品被保存下来。
GLORIOUS HISTORY AND HIGH-QUALITY GRAFFITI ART. The name 'Bijgaardehof' dates back to the Middle Ages. In the shadow of the mighty St Bavo's Abbey, there was a lush piece of nature within the city walls of 16th-century Ghent: the Bijgaard. It was named after the bees that were kept there. In the 19th century, the factory walls within the triangular figure belonged to a much larger industrial textile complex. With the decline of the Ghent textile industry in the 1960s, the buildings were taken over by the metalworking company Malmar. When they left in 1997, the search for a new use began. Meanwhile, years of vacancy had attracted squatters, but also graffiti artists who had embellished the walls. Some thirty of these works were of an unexpectedly high standard. They turned out to be works of art by Roa: an anonymous, contemporary street-art artist who has since acquired international fame and produces works all over the world. With his drawings of animals and carcasses, he celebrates nature, but also its disturbing disappearance. From the very first competition designs, the design team, therefore, strived to preserve some of these iconic works of art. This provided an additional argument for retaining the factory’s former facades and dividing walls where possible. Because the building stood empty for years after the architectural competition, only a part of the work was saved.

同居项目的共同设计。对于BOGDAN & VAN BROECK来说,同居项目的设计从定义上来说是一个参与的过程,一种比传统设计过程更进一步的共同创造的形式。因此,对于Bijgaardehof,设计团队能够依靠每个住房群体的代表,以便为各种问题找到解决方案,如流动性、可持续性、共享使用等等。此外,BOGDAN & VAN BROECK还主动与每个未来的共同居住者讨论他们自己的生活愿望。建立这种咨询结构并将各种居住愿望汇集成一个平衡的建筑整体是设计任务的一部分。这确保了Bijgaardehof不仅是建筑设计的主题,也是一个参与性过程的设计。因此,建筑师和客户之间的关系对每个人来说都是丰富和有益的。"我非常好奇这个'住房'的'共同'在未来将如何发展,居民和用户将如何进一步利用这个地方。现在就看他们如何让Bijgaardehof在字面上和象征性地蓬勃发展"。Oana Bogdan,BOGDAN & VAN BROECK的创始和管理合伙人。
THE CO OF COHOUSING. For BOGDAN & VAN BROECK, the design of a cohousing project is by definition a participatory process, a form of co-creation that goes much further than the traditional design process. Thus, for Bijgaardehof the design team was able to count on representatives from each housing group in order to find solutions for various issues such as mobility, sustainability, shared use, and more. In addition, BOGDAN & VAN BROECK took the initiative to discuss with each future co-houser their own living wishes. Setting up this consultation structure and bringing together the various residential wishes in a balanced architectural whole was part of the design brief. This ensured that Bijgaardehof was not only the subject of an architectural design but was also the design of a participatory process. The relationship between architect and client thus became enriching and rewarding for everyone."I am very curious about how the 'co' of this 'housing' will develop in the future and how the residents and users will further appropriate the place. Now it is up to them to let Bijgaardehof flourish literally and figuratively." Oana Bogdan, founding and managing partner BOGDAN & VAN BROECK.


一个专注于会议和互动的设计。对Bijgaardehof的社会动态的设想,除其他外,被转化为社区流通的组织。为了专注于互动和相遇,BOGDAN & VAN BROECK设计了放置在建筑物外的画廊形式的流通。这些长廊成为高架街道,居民在这里聚会,儿童在这里玩耍,植物在这里生长,等等。从街道到居民自己的前门的长廊被设计成一连串高质量的儿童友好空间。三个住宅组(Wijgaard、De Spore和Biotope)都有一个公共空间,有集体厨房、餐厅、客厅、洗衣房和儿童游戏区。此外,还有安静的区域、冬季花园、公共工作室,甚至还有一个用于城市农业的屋顶花园。
A DESIGN FOCUSED ON MEETING AND INTERACTION. The vision of the social dynamics in Bijgaardehof is translated, among other things, into the organization of communal circulation. In order to focus on interaction and encounters, BOGDAN & VAN BROECK designed the circulation in the form of galleries placed outside the buildings. These galleries become elevated streets where residents meet, children play, plants grow, and much more. The promenade from the street to the residents' own front doors is worked out as a succession of quality child-friendly spaces. The three residential groups (Wijgaard, De Spore, and Biotope) each have a communal space with a collective kitchen, dining room, living room, laundry room, and play area for the children. In addition, there are quiet areas, a winter garden, a communal workshop, and even a roof garden for urban agriculture.



在可持续建筑方面是一个典范。这个棕地的重建不仅需要重新激活,净化和为花园提供清洁的土壤,实际上使土壤变得健康。对现有工厂墙面的保护和涂鸦也为附近地区带来了跨时代的文化价值。除了城市的可持续性,重点还在于可持续的物质化。Bijgaardehof是一个完全没有气体的地方。主要的热源是地热能,住宅采用相对较低温度的地板采暖。此外,夏季还使用被动冷却。所有上层屋顶都可以安装太阳能电池板。雨水在到达渗透盆地之前,也可以在公共循环的层面上进行收集和排放。因此,对(屋顶)花园的浇灌将以一种对地球友好的方式进行。循环过程也被应用:被拆除的工厂墙壁上的砖块被清洗(由同居者)并重新使用。来自旧工厂的瓷砖也在其中一个公共厨房中得到了第二次生命,其中一个游戏区用回收的瓷砖覆盖。
EXEMPLARY IN SUSTAINABLE BUILDING. The redevelopment of this brownfield not only entails a reactivation, the decontamination, and supply of clean soil for the gardens have literally made the soil healthy. The preservation of the existing factory walls with graffiti also generates a cultural value for the neighborhood across generations. In addition to urban sustainability, the focus is also on sustainable materialization: Bijgaardehof is a completely gas-free site. The main source of heat is geothermal energy, and homes are heated with floor heating at relatively low temperatures. In addition, passive cooling is used in the summer. All upper roofs are ready for the installation of solar panels. Rainwater can also be collected and drained at the level of the communal circulation before reaching the infiltration basins. The watering of the (roof) gardens will thus be done in a planet-friendly way. Circular processes were also applied: the bricks from the demolished factory walls were cleaned (by the cohousers) and reused. Tiles from the old factory were also given a second life in one of the communal kitchens, and one of the play areas is covered with recycled tiles.

一个可持续的室内和室外空间的回路。景观设计也着重于可持续性。建筑物之间的集体开放空间是一连串种植丰富的户外房间,具有多样化的特点。除了Biotope的高架花园和De Spore的废墟花园外,底层的所有户外空间都由住宅组共享。各个室外房间都有类似的种植和铺装,因此它们可以作为一个整体来体验。中央庭院是一个几乎正方形的空间,面积约为900平方米,已经被打开,给整个庭院带来了光线和空气。隐蔽的花园是一个安静的花园,可以偶尔使用,和平和安静是这里的准则。自然可以在这里顺其自然,靠着东面的工厂墙发展。靠北面工厂墙的部分钢结构将被保留。这同样适用于西南区的现有墙体。因为它的位置靠近邻里公园,并且有邻里健康中心这个最公共的项目作为邻居,这个地方是理想的位置,可以在与邻里的互动中开放各种活动。
A CIRCUIT OF SUSTAINABLE INDOOR AND OUTDOOR SPACES. The landscape design also focuses on sustainability. The collective open space between the buildings is a succession of richly planted outdoor rooms with a diverse character. Besides the raised garden of Biotope and the ruined garden of De Spore, all the outdoor spaces on the ground floor are shared by the residential groups. The various outdoor rooms are provided with similar planting and paving so that they are experienced as a whole. The central courtyard is an almost square space of about 900m² that has been opened up to give light and air to the whole. The hidden garden is a quiet garden that can be used sporadically and where peace and quiet are the norms. Nature can take its course here and develop against the eastern factory wall. Part of the steel construction against the northern factory wall will be retained. The same applies to the existing walls in the southwestern zone. Because of its location near the neighborhood park and with the most public program of the neighborhood health center as a neighbor, this spot is the ideal location to open up the site to various activities in interaction with the neighborhood.

可持续生活的实践。考虑到靠近市中心和周围所有的城市设施,未来的居民参与到了拥有比根特市要求的更少的停车位。整个项目只包括25个汽车停车位。因此,自行车停车位在建筑物的设计中得到了额外的关注。为了方便使用和访问,每栋楼都有自己的安全和覆盖的自行车棚。汽车停放在地面上,有两层,将来可以重新利用。在实践中,可持续性不仅仅是通过标签或授予能源性能证书来实现的,主要是通过居民在未来处理这些潜在的可持续发展工具的方式。因此,BOGDAN & VAN BROECK和设计团队的所有成员都乐意让居民来掌舵。
SUSTAINABLE LIVING IN PRACTICE. Given the proximity of the city center and all surrounding urban amenities, the future residents engaged themselves in having fewer parking spaces than required by the city of Ghent. The entire project includes only 25 car parking spaces. Therefore, the bicycle parking spaces received extra attention in the design of the buildings. In order to facilitate the use and accessibility, each building has its own secure and covered bicycle shed. The cars are parked above ground, on two levels that can be repurposed in the future. Sustainability in practice is not only achieved by a label or the granting of an energy performance certificate but mainly by the way in which the residents will deal with these potentially sustainable instruments in the future. BOGDAN & VAN BROECK and all the members of the design team are therefore happy to let the residents take the helm.















Architects: BOGDAN & VAN BROECK
Area : 9375 m²
Year : 2022
Photographs :Laurian Ghinitoiu
Landscape : LAND
Acoustics : Daidalos Peutz
Structure : Ney & Partners
Team : M. Czvek, V. Ionescu, M. Pawlowska-Deib, S. Poot, W. Riche, M. Steel Lebre, A. Sümeghy, E. Vandenpoel, S. Verstraete, K. Vervaet, T. Willemse
Techniques : VK Engineering
City : Ghent
Country : Belgium