Bit Loft位于瓜达拉哈拉市历史中心的科隆大道和黑山街的拐角处,位于Mexicaltzingo社区,这是一个非常传统的地区。这是一栋为优先考虑城市中心位置的人设计的公寓楼,并在楼内有公共设施供工作和娱乐。
Bit Loft is located on the corner of Colon Avenue and Montenegro Street, in the Historic Center of Guadalajara, in the Mexicaltzingo neighborhood, a very traditional area of the city. It is an apartment building designed for people who prioritize a central location in the city and to have public amenities on the premises for work and recreation.



该项目位于前海格力斯马赛克工厂的地块上,位于黑山街的具有文物价值的建筑被保存和修复。该提案将现有的历史建筑与一个具有现代语言的扩展部分结合起来,通过对比,寻求与城市的传统建筑建立对话。
The project is located in the plot of the former Hercules Mosaic factory, where the building, with heritage value, located on Montenegro Street is preserved and restored. The proposal integrates the existing historical building with an extension that has a contemporary language that seeks, through contrast, to establish a dialogue with the traditional architecture of the city.

科隆大道上的建筑立面的开口,即主要通道的位置,通过其垂直度,寻求与传统窗户的关系,但与历史建筑中现有的节奏不同。在建筑的历史部分的顶部,用水泥砖制成的 "肋骨 "建造了一个 "原始 "体量,强调了上述垂直度。
The openings in the façade of the building on Colón Avenue, where the main access is located, seek, through its verticality, to have a relationship with traditional windows but with a different rhythm to that existing in the historical buildings. On top of the historical part of the building, a "raw" volume is built with “ribs” made of cement bricks that emphasize the mentioned verticality.


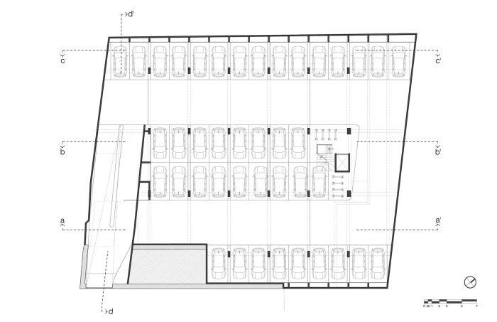
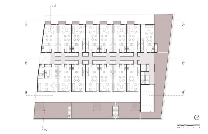
底层,在两个街道的正面,是用于商业用途的4个商店。39套公寓分布在赋予外墙形状的体量和产生于内部空间的体量之间。在半地下室有一个停车层,该建筑有四层公寓,力求保持与周围建筑的高度关系。
The ground floor, on both street fronts, is intended for commercial use with 4 shops. 39 apartments are distributed between the volumes that give shape to the facade and those generated in the interior space. There is a parking level in a semi-basement, and the building has four floors of apartments, seeking to preserve a relationship with the height of the surrounding buildings.


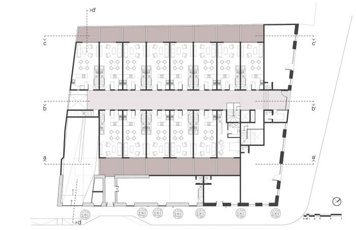
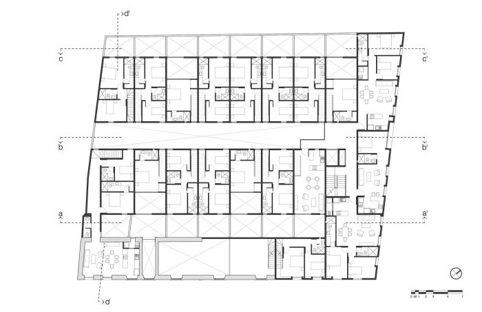
当进入建筑时,你会到达一个大的天井,垂直和水平的循环都位于这里。内部体量的所有公寓都是复式的;一半的公寓从底层的 "天井 "进入,另一半从第四层进入,这就创造了一个没有循环的三层高度的空间,给人以隐私,允许空气和光线的流动。
When entering the building you reach a large patio where the vertical and horizontal circulations are located. All the apartments in the interior volume are duplexes; half of the apartments have access from the "patio" on the ground floor, and the other half have access on the fourth level, which creates a triple-height space without circulations, giving privacy and allowing the flow of air and light.



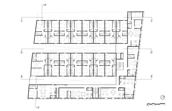
位于黑山街的建筑屋顶被改造成公寓的露台,这种姿态在内部体量的屋顶上重复。该建筑的便利设施位于科隆大道上的屋顶上:办公空间、健身房和操场。
The rooftop of the building on Montenegro Street is adapted as terraces of the apartments, a gesture that is repeated on the rooftops of the interior volumes. The amenities of the building are on the rooftop above the volume on Colon Avenue: coworking space, gym, and a playground.





















Architects: em-estudio
Area : 5308 m²
Year : 2022
Photographs :Lorena Darquea Schettini, Ixca Ledezma
Manufacturers : AutoDesk, Cemex, Eurovent, Herralum, Imperquimia, Mabe, Napresa, Porcelanite, URREA, Yale
Lead Architect : Francisco Javier Esqueda Martínez, Iván Esqueda Martínez
City : Guadalajara
Country : Mexico