该项目产生于扩大和组织汽车装甲生产线的需要,这是哥伦比亚Blinsecurity公司的一项任务。该项目位于波哥大市西部的圣费尔南多区的巴里奥斯-尤尼多斯镇,在一个混合使用的区域,那里的中小型公司的发展以汽车行业为主导趋势。
The project arises from the need to expand and organise the production line for automotive armor, a task of Blinsecurity of Colombia. Located in the town of Barrios Unidos, in the San Fernando neighbourhood in the west of the city of Bogotá, in a mixed-use area where the development of small and medium-sized companies with tendencies toward the automotive sector predominates.





建筑任务非常简短,包括四个基本要求。
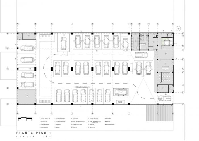
A. 一个开放的空间,用于组装35辆汽车的盔甲。
B. 一个维修50辆车的车间,这意味着一个用于机械工作和油漆的大空间。
C. 一座可容纳45名员工的行政大楼,包括管理和业务岗位。
D. 一个厚重的外墙,传达了隐私,并在一定程度上隐藏了内部发生的活动。
The architectural assignment was very brief and consisted of four basic requirements:
A. An open space to assemble the armor of 35 vehicles.
B. A workshop for the maintenance of 50 vehicles, which translates into a large space for mechanical work and painting
C. An administrative building with the capacity for 45 employees, including management and operational positions.
D. A heavy facade that conveys privacy and hides to a certain extent the activities that take place inside.

在这个城市背景下,拟议中的建筑不寻求突出,旨在将自己伪装在环境中,同时掩盖内部发生的活动。然而,在行政工作站的特定区域,空隙的游戏产生了内部和外部的联系,并关注景观的有形元素,如波哥大的山丘。这总结了一个由一系列空隙穿透的大型混凝土体的想法。为了迎接挑战,最大限度地利用物业的规模和方案中对空间的巨大需求,所采用的策略是提出空间的叠加(一个仓库在另一个仓库的上面),屏蔽厂在维修车间的上面,产生了两个自由的楼层,通过一个中央空隙与行政大楼分开。这个庭院不仅是两个体量之间的过渡,而且允许从建筑的四层中的任何一层看到里面发生的活动。此外,由于其作为通风和自然光的收集器的质量,它促进了工厂的运作,使这两个因素能够渗透到工作空间中。
In this urban context, the proposed building does not seek prominence and aims to camouflage itself in the environment, while hiding the activities that take place inside. However, a game of voids generates an interior-exterior connection in specific areas of administrative workstations and focuses on tangible elements of the landscape such as the hills of Bogotá. This sums up the idea of a large concrete mass perforated by a series of voids. The strategy that was used to meet the challenge of making the most of the size of the property and the great need for space in the program was to propose a superimposition of spaces (a warehouse on top of another warehouse), the shielding plant on top of the maintenance workshop, generating two free floors separated from the administrative building by a central void. This courtyard not only acts as a transition between the two volumes but also allows the activities that take place in it to be seen from any of the four levels of the building. In addition, it facilitates the operation of the plant due to its quality as a collector of ventilation and natural light, allowing these two factors to permeate the workspaces.



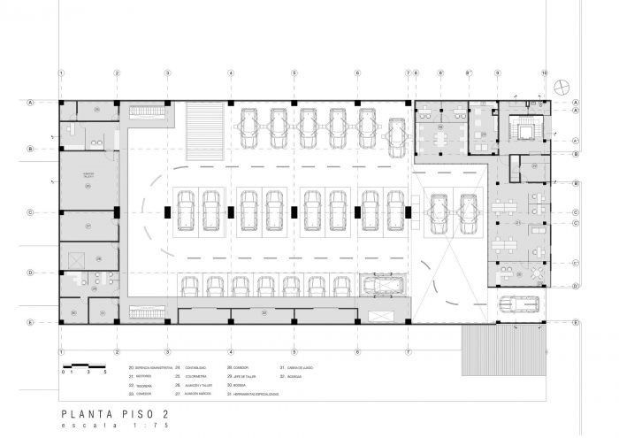
该项目的主要想法是基于建立一个非典型的空间(从工厂的传统角度来看),在这里,工业功能和生产效率的概念并不妨碍对空间性的探索,这将促进一个愉快的工作环境,并通过建筑给予公司一种所有权感。不管建筑中为保证盔甲的严格生产过程所需的功能如何,目的是提供能创造空间反常的空间,使建筑具有一定的灵活性。一个用于体育活动和用户之间会议的多功能空间和一个与外部直接相关并与波哥大山丘景观进行视觉交流的餐饮露台,成为通过空间打破单调的工作并在用户和建筑之间建立更紧密联系的区域。
The main idea of the project was based on building an atypical space (seen from the conventional perspective of the factory), where the notion of industrial functionality and productive efficiency was not an impediment to the exploration of spatialities that would foster a pleasant work environment and giving the company a sense of ownership through a building. Regardless of the functionality required in the building to guarantee the rigorous production process of the armor, the aim was to provide spaces that would create spatial anomalies and provide the building with certain flexibility. A multipurpose space for sports activities and meetings between users and a dining terrace, directly related to the outside and in visual communication with the landscape of the hills of Bogotá, became areas that, through space, break with the monotony of work and create a closer link between the user and the building.



在项目的结构承诺中,我们试图创造一个工作空间(两个自由层),允许在建筑内自由移动和操纵。一个带有大型铰接沃伦式桁架的金属屋顶结构保证了车间区域由混凝土柱支撑的相当大的光线。行政区域被建议使用更简单的元素,结合混凝土和金属梁的准时系统。该建筑的材料性是基于三种材料:混凝土、钢和玻璃。这个范围使我们能够产生对比,从其外墙暴露的混凝土中暴露出这些材料的真相。钢材不仅作为一种装饰材料,而且作为一种空间结构,保证了一个自由的平面图。玻璃被作为一种半透明的材料,从建筑的任何一点都能提供多样化的透明度和视觉关系。建筑物的使用者,无论是员工还是访客,都能够认同这个空间。
In the structural commitment of the project, we sought to create a workspace (two free floors) that would allow freedom of movement and maneuver inside the building. A metallic roof structure with a large articulated Warren-type truss guaranteed considerable light supported by concrete columns in the workshop area. The administrative area is proposed with simpler elements, combining a punctual system of concrete and metal beams. The materiality of the building was based on three materials; Concrete, steel and glass. This range allowed us to generate contrasts, exposing the truth of these materials from its facade with exposed concrete. Steel is used not only as a finishing material but as a spatial structure, which guaranteed a free floor plan. Glass is used as a translucent material that provides a diversity of transparencies and visual relationships from any point of the building. A user of the building, whether an employee or a visitor, is able to identify with the space.



今天,随着工厂的启动,经过国际专家的多次研究和考察,它在装甲制造领域脱颖而出,成为拉丁美洲在物理基础设施方面最完整和创新的生产工厂。这项工作反映了建筑学是如何在不牺牲空间质量的情况下设法平衡生产效率的过程。
Today, with the start-up of the plant and after numerous studies and visits by international experts, it stands out in the field of armor manufacturing as the most complete and innovative production plant in Latin America in terms of physical infrastructure. This exercise reflects how architecture has managed to balance a productive-efficient process that does not sacrifice spatial qualities.



















Architects: Linnk Proyectos
Area : 4500 m²
Year : 2021
Manufacturers : Leviton, Sylvania Lighting, ABACOL, ACERO DE REFUERZO, ANDES ELEVADORES, Anfra, Cerâmica Itália, Corona, Grival, Holcim, KMS, LA CAMPANA, Vialbo
Designing Architects : Alejandro Caicedo, Oscar Acero, Linnk Proyectos
Drawing Architects : Gabriela Velez
Structural Design : Federico Buendia, Alejandro fernandez
Electrical Design : German Suarez
Geotechnics : Miller ramirez
Budget : Oscar Acero, Alejandro Wartenberg
Project Coordination : Oscar Acero, Alejandro Caicedo
Hidrosanitary Spaces : Jorge Cordero
Diagrams And Collaboration : Julian Villescas
Civil Engineering : Linkk Proyectos
Foundation : complementos civiles
Concrete Structure : construcciones toloza
Metal Structure : F&B INGENIERIA Y ESTRUCTURAS
Roofing : OBRINGCO
Administrative Manager : Alejandro Wartenberg
City : Bogotá
Country : Colombia