蓝瓶咖啡上海咖啡馆将建在一座西式历史建筑内,由上海市政府保留。然而,历史的装饰性只被赋予在现有建筑的外部。在内部,柱子和横梁的RC结构被暴露出来。
我们通过关注其历史和现代元素之间的边界来发展我们的想法。
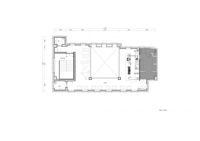
The Blue Bottle Coffee Shanghai cafe will be constructed in a Western-style-historical building, preserved by the city of Shanghai. However, the historical decorativeness is given only to the outside of the existing building. Inside, the RC structure of the pillars and beams is exposed.
We develop our idea by focusing on the boundary between its historical and contemporary elements.






为了将边界向内转移,除了古董家具和用旧木材制作的柜台外,还安装了白色的造型墙和天花板。另一方面,现有的混凝土结构、玻璃和不锈钢家具表达了现代气息。
Aiming to shift the boundary inward, white molding walls and ceilings are installed in addition to the antique furniture and the counter made with old woods. On the other hand, existing concrete structures, glass, and stainless steel furniture express the contemporary atmosphere.

一楼和二楼在材料和家具上的差异将创造出独特的客人体验。新制作的家具和混凝土地板将给一楼的快速访客带来凉爽的印象。客人可以在二楼的复古家具中享受奢华的时光。
The difference in materials and furniture between the ground floor and the second floor will create a distinct guest experience. Newly-made furniture and concrete floors will give a cool impression to the quick visitors on the ground floor. The guests can enjoy a luxurious time with vintage furniture on the second floor.














Architects: Schemata Architects
Area : 762 m²
Year : 2022
Photographs :Studio FF
Manufacturers : WHITELIGHT, ZH DESIGN & CONSTRUCTION
Construction : RHY
Acoustic Design : Taguchi Audio, WHITELIGHT.Ltd
Project Team : Shota Miyashita, Takuya Enta
Local Architect : RHY
City : Jing An Qu
Country : China