现在的 "Blues H. Office "所在的地方,以前只是一个仓库。当 "蓝调 "决定将办公室搬到仓库旁边时,他们的首要计划很简单,就是建造一个能容纳30-40个工作站的普通工作空间。他们想建造一个能容纳30-40个工作站的普通工作空间。建好地基后,他们又考虑了一下,决定做一些不同的事情。
The place where “Blues H. Office” is standing today, was simply occupied by a warehouse before. When “Blues” decided to shift their office right beside there warehouse, the primary plan was simple. They wanted to build a normal work space where they can accommodate 30 to 40 workstation. After building the foundation, they gave it a second thought and decided to do something different with it.






"蓝调 "的管理层人员找到建筑师,希望用它来做一些不一样的事情。整个概念是要打造一个有创意和玩味的办公室,有多个玩味的空间,可以用来开会、会议、聚会等。蓝调员工的工作时间并不是刻板的朝九晚五,他们的工作时间很长。考虑到这一点,设计了 "蓝调H.办公室"。
“Blues” management people approached the Architect to do something out of the box with it. The whole concept was to build a creative & playful office with multiple playful spaces which can be used for meeting, conference, meet up etc. Blues employees’ working hour is not stereotypically nine to five, they have long working hours. Keeping this in mind “Blues H. Office” has been designed.

施工细节的材料。1. 预制金属外骨架作为主框架。2.采用了三层聚碳酸酯板,提供了热舒适度,降低了制冷负荷。3. 双层玻璃幕墙,减少热量的获得,减少室内外关系。4. 楼板采用聚混凝土平台板。5. 预制木板作为地面装修材料。6. RCC和砖只用于服务块,服务块的放置是为了加强金属外骨架。
Materials of construction details: 1. Pre-fabricated metal exoskeleton as main frame. 2.Tri-layered polycarbonate sheets were used to provide thermal comfort and reduce cooling load. 3. Double glazed glass facade to reduce heat gain and indoor-outdoor relationship. 4. Floor slab with poly concrete deck panels. 5. Pre-fabricated wooden panels as floor finish materials. 6. RCC and brick was used only in service blocks which were placed to reinforce the metal exoskeleton




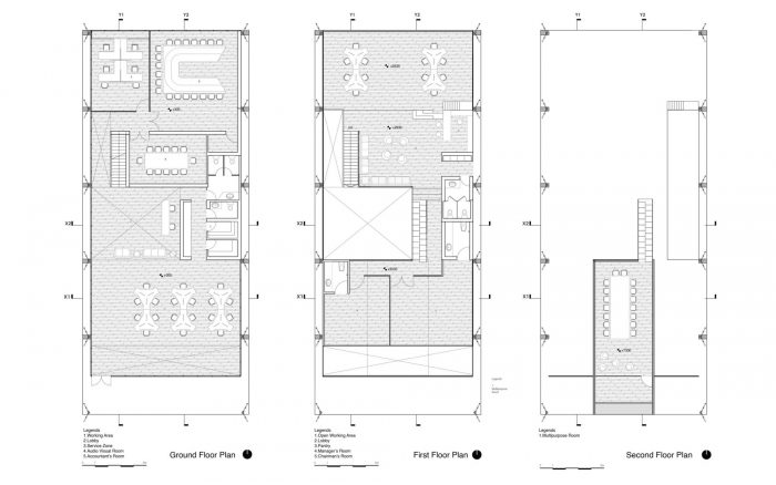
突出特点。为了创造一个开放的办公和活动环境,服务设计得很紧凑。这种组织有助于塑造高大的空间,为工作和团体任务,以及有效的服务管理,降低成本和易于维护。为了降低成本和保持原有的占地面积,利用现有的混凝土基础,在其上制造了一个金属结构,VRF空调,中央服务区被放置在建筑内部。高高的天花板和大面积的透明玻璃幕墙让自然光照射到建筑物的核心区域,而这些区域在一天的时间里,随着光线反射的变化而不断变化。
Salient features: To create an open environment for office and activity, service was designed in a compact manner. This organization helped to shape up lofty space for work and group task as well as efficient service management, cost reduction and ease of maintenance. For reduction of cost and maintaining original footprint the existing concrete foundation was utilized by fabricating a metal structure over it .VRF air conditioning ,centralized service block has been placed inside the building. The high ceiling and large transparent glass façade allows natural light to the core of the building that undergoes constant changes as light reflections alter over the course of the day.

夜晚,蓝调通信有限公司的办公室被白色的Led灯照亮,像一个巨大的灯具,同时使建筑与周围充满活力的社区对话,闪闪发光。配套设施齐全,设有7个停车位,车行和人行通道,2条垂直通道和其他水平通道。景观有充足的绿化和植物,以创造一个更好的工作场所。
At night, the Blues Communication Limited office is lit by white Led-lights, resembling a giant luminaire, while making the building shimmer in dialogue with the surrounding the vibrant neighborhood. Providing all ancillary facilities with seven parking space, Vehicular and pedestrian access along with 2 vertical and other horizontal circulation. Landscape has ample green and plants to create a better workplace.


















建筑师:Dehsar Works
面积:2019平方米
摄影:Noufel Sharif Sojol
制造商:AutoDesk、Saint-Gobain、ALM Steel、McNeel、Nasir Glass、ONLEAD、PMG、Shah Cement、Star Partex、Trimble Navigation
首席建筑师:Rashed Hassan Chowdhury
项目建筑师:Sayedil Ashrafin
结构顾问:Habibur Rahman
电气顾问:Alinur Rahman
水暖顾问:Kamruzzaman
城市 : 达卡
国家:孟加拉国
Architects: Dehsar Works
Area: 2019 m²
Photographs: Noufel Sharif Sojol
Manufacturers: AutoDesk, Saint-Gobain, ALM Steel, McNeel, Nasir Glass, ONLEAD, PMG, Shah Cement, Star Partex, Trimble Navigation
Lead Architect: Rashed Hassan Chowdhury
Project Architect:Sayedil Ashrafin
Structural Consultant:Habibur Rahman
Electrical Consultant:Alinur Rahman
Plumbing Consultant:Kamruzzaman
City:Dhaka
Country:Bangladesh