原来的房子可以追溯到1959年,是现在居住者的祖母的家。那时候是一个典型的比利时分户住宅。细节设计简洁,采光有限,生活空间和花园之间没有联系。
The original house dates from 1959, the home of the current occupant's grandmother. A typical Belgian subdivision house of that time. Sober in detailing, limited in daylight, and with no connection between the living space and the garden.



现在的住户是一个新组成的家庭,年龄差异很大,需要更多的空间。主要是父母觉得需要再次拥有他们自己的生活空间:一个有丰富日光的空间,与花园有联系,并且是一个注重终身生活的延伸。
The current residents, a newly composed family with large age differences, needed more space. Mainly the parents felt the need for their own living space again: a space rich in daylight with a connection to the garden and an extension with a focus on lifelong living.


还有一个愿望是以加州现代主义建筑风格的精神来设计他们的住宅改造,其灵感来自于案例研究的房屋。这种风格与客户对复古设计师家具的偏好相一致。预算有限,而且在施工期间,房子必须始终保持可居住性。Bakermat在这个参数的基础上进行了设置。
There was also a desire to design the conversion of their home in the spirit of the Californian modernist architectural style, inspired by case study houses. A style in keeping with the client's penchant for vintage designer furniture. The budget was limited, and the house had to remain habitable at all times during the works. Bakermat is set to work with this parameter.


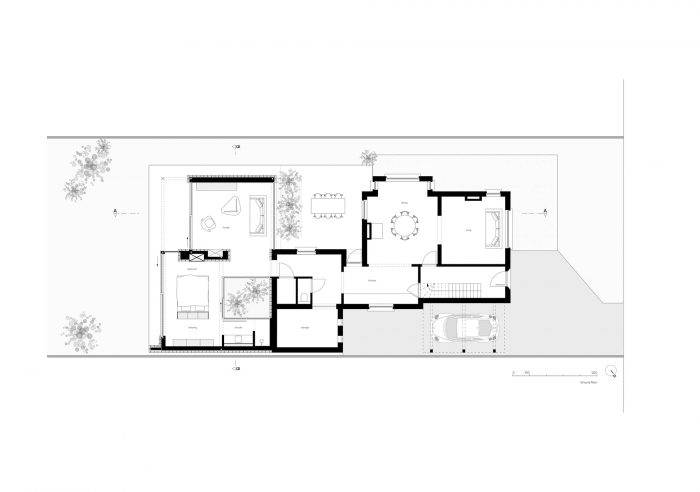
平面图上的现有布局以及现有房屋的立面几乎全部被保留。在后面,立面被稍微改变,以创造与新扩建部分的联系。
The existing layout on the plan, as well as the façades of the existing house, were almost entirely retained. At the back, the façade was slightly altered to create a connection with the new extension.


通过使用简洁的线条和大窗户,为房子设计了一种新的体验。天井既是睡眠区和生活空间之间的连接点,也是分隔点。一个理想的缓冲区,也吸引了大量的光线。一个绿色的管子,专注于房子中间的室内-室外体验。这些空间围绕着一个大的壁炉体积进一步组织。中央壁炉成为卧室与生活空间的理想分隔。在此基础上,这个体量极大地决定了这个扩建项目的立面和体量效果。
By using clean lines and large windows, a new experience was designed for the house. The patio works for both connection and separation between the sleeping area and the living space. An ideal buffer that also draws in plenty of light. A green tube that focuses on the indoor-outdoor experience in the middle of the house. The spaces are further organized around a large fireplace volume. The central fireplace became the ideal separation for the bedroom from the living space. On top of that, the volume hugely determines the façade and volume effect of this extension.

扩建部分特意保持了简洁,线条最小,视野最佳。顺利打开房子和增强室内外感觉的可能性是通过简约的扩展实现的。内置橱柜在这里被整合,以达到最佳的宁静氛围。原来的房子储存了大部分的物品,所以新设计中的开放性不会被否定。
The extension was deliberately kept clean, with minimal lines and optimal views. The possibility of smoothly opening up the house and enhancing the indoor-outdoor feeling was realized by the minimalist extension. Built-in cupboards were integrated here to achieve an atmosphere of optimal tranquillity. The original house stores most of its belongings, so the openness in the new design would not be negated.

新的生活空间与花园的联系通过毗邻生活空间的有盖阳台和壁炉容积得到了强调。
The connection of the new living space with the garden is emphasized by the covered terrace adjacent to the living space and the fireplace volume.

在物质化方面,提出了一个明确的设想。面砖的颜色被特意选择为与外墙的颜色相似。通过选择直接的砖石结合,在不造成材料不一致的情况下形成了足够的对比。金属屋顶的表面被涂成白色,波纹铁天花板也是如此。反过来,铝制细木工板是黑色的,而地板是自然色的抛光混凝土。
In terms of materialization, a clear vision was put forward. The color of the facing brick was deliberately chosen to be similar to that of the façade. By choosing a straight masonry bond, a sufficient contrast was created without causing an inconsistency in materials. The metal roof finish is painted white, as is the corrugated iron ceiling. In turn, the aluminum joinery is black while the floor is natural-colored polished concrete.

内部装修进一步采用了暖色系的色调。红色和绿色与黑色和暖色调的胡桃木饰面相结合,形成了一个整体,并在设计中得以延续。尽管家具种类繁多,但这所房子给人以平静低调的印象。
The interior was further finished with a warm color palette. The colors red and green combined with black and warm shades of walnut veneer formed a whole that was continued in the design. Despite the diversity of furnishings, the house has a calm understated impression.










Architects: Bakermat atelier voor architectuur
Year: 2021
Photographs:Michiel Vergauwe
Manufacturers: Floren Bricks, Profel, Winckelmans
Country:BELGIUM