由META建筑事务所设计的位于Lier的Bogerse Velden社会住宅包含3栋独立的相同公寓楼、13栋半独立式住宅和14栋具有动态体量的梯形住宅。
The Bogerse Velden social housing in Lier by META architectuurbureau contains 3 autonomous and identical apartment buildings, 13 semi-detached homes and 14 terraced houses with a dynamic volumetric.



外墙划分了开放空间
在设计Bogerse Velden社会住房时,META将重点放在了开放空间上。该项目扩大了该项目所需的游戏网络的面积,并创造了一个面向骑车者和行人的组织良好的区域。周围的绿化带,迄今为止由大大小小的区域组成,通过加入额外的绿化,完成了。
Facades demarcate the open space
When designing the Bogerse Velden social housing, META placed the emphasis on the open space. The practice expanded the terrain earmarked for the play network required by the programme and created a well-organised area that is geared towards cyclists and pedestrians. The surrounding green belt, hitherto comprised of small and large zones, was completed through the inclusion of additional greenery.

三栋清一色的自主公寓楼
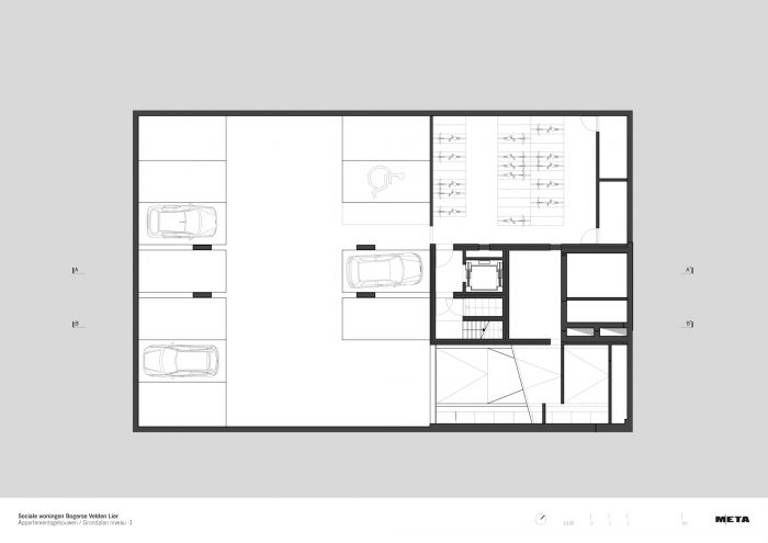
这3栋公寓楼以独立的体量呈现。该方案设想每栋楼由11套公寓和一个可容纳11辆汽车和35辆自行车的公共半地下车库组成。底层被抬高了半层。这样做有许多好处:它消除了进入建筑的直接视线,从而保证了私密性;由于半地下车库是自然通风的,因此避免了不必要的能源消耗;最后,地下层的深度可以受到限制,这使它成为一个经济实惠的解决方案。
Three clean-cut and autonomous apartment buildings
The 3 apartment buildings present themselves as autonomous volumes. The programme envisaged each individual building as comprising 11 apartments plus a common semi-underground garage for 11 cars and 35 bicycles. The ground floor is raised by half a level. This provides a number of advantages: it eliminates direct sightlines into the building and thus ensures privacy; unnecessary energy consumption is avoided because the semi-underground garages are naturally ventilated; finally, the depth of the underground level can be limited, which makes it a budget-friendly solution.

建筑物上的阳台就像外立面上坚固的太阳轮:它们打断了整体设计的体量,但又不影响建筑的简洁性。
The balconies on the buildings resemble robust sun wheels on the facades: they interrupt the volumetric of the overall design but without diminishing the clean-cut nature of the building.

半独立式住宅的外立面排布中断
除了公寓外,META还设计了13栋半独立式住宅,这种配置是在对各种边界条件进行深入分析后产生的:景观、朝向、湿功能的组团、避免长平立面等。
Interruption of the facade row with semi-detached houses
In addition to the apartments, META has designed 13 semi-detached houses, a configuration that was created following an in-depth analysis of the various boundary conditions: views, orientation, grouping of wet functions, avoidance of long flat facades, and so on.

半独立式房屋的优点是打断了一排平坦的立面。而且,通过连接,可以建造足够的房屋,同时也便于加入较宽的居室。此外,起居空间的窗户相互斜对角,让光线充足。最后,每一个房间都毗邻一个户外空间:前面是一个有墙的户外区域,后面是一个花园。所有这些细节都有助于提高居民的生活质量。
The semi-detached houses have the advantage of interrupting a flat row of facades. Moreover, the connections enable sufficient houses to be constructed while also facilitating the inclusion of wider living rooms. Furthermore, the windows in the living spaces face each other diagonally and let in plenty of light. Finally, each of these rooms is adjacent to an outdoor space: a walled outdoor area at the front, a garden at the back. All of these details contribute towards a high quality of life for the residents.

梯田式住宅的动态容积率
最后但并非最不重要的是,该项目还包括14栋梯田式住宅,其中底层和一层始终是相同的。二楼的容积较小,要么在街道上,要么在花园边。在比较紧凑的房屋中,二层被省略了。不同类型住宅的交替,在一排房屋中创造了一个有吸引力的体积。
Dynamic volumetric within terraced houses
Last but not least, the project also includes 14 terraced houses in which the ground floor and first floor are always identical. A shallower volume is provided on the second floor, which is either on the street or the garden side. In the more compact houses, the second floor has been omitted. The alternation of the different types of dwellings creates an attractive volumetric within the row of houses.

各种元素在整个项目中不断重复:固定宽度的窗户开口、相同的混凝土元素、特色阳台、三种砖的选择......。这些重复不仅在街景中创造了节奏,从而提高了清晰度和可识别性,而且还形成了一种集体身份。此外,不同而又相配的色调的使用,加上13栋住宅的退让节奏,将整个项目串联成一个和谐的整体。
Various elements are reiterated throughout the project: window openings with fixed widths, identical concrete elements, characteristic balconies, choice of 3 types of bricks... The repetitions not only create rhythm in the streetscape, thereby enhancing clarity and recognisability, but also forge a collective identity. Furthermore, the use of different but matching colour tones, coupled with the receding rhythm of the 13 dwellings, binds the entire project into a harmonious whole.















建筑师:META architectuurbureau
面积: 8979 m²
年份:2019年
摄影:Filip Dujardin
制造商:AutoDesk, Schöck, Aliplast, Niko, Wavin, Architon, De Cock garden wood constructions, Desta, EB Projects, IBIC
首席建筑师:META architectuurbureau
设计团队:Bert Goetvinck, Sofie Dubbers, Pieters Lambrechts, Greet Van Der Linden, Marco Zanfra, Frank Botman
客户:Lierse Maatschappij Voor De Huisvesting
工程设计:Tractebel Engineering, Energicon
城市:里尔
国家:比利时
Architects: META architectuurbureau
Area: 8979 m²
Year: 2019
Photographs: Filip Dujardin
Manufacturers: AutoDesk, Schöck, Aliplast, Niko, Wavin, Architon, De Cock garden wood constructions, Desta, EB Projects, IBIC
Lead Architects: META architectuurbureau
Design Team:Bert Goetvinck, Sofie Dubbers, Pieters Lambrechts, Greet Van Der Linden, Marco Zanfra, Frank Botman
Clients:Lierse Maatschappij Voor De Huisvesting
Engineering:Tractebel Engineering, Energicon
City:Lier
Country:Belgium