BOHO Décor成立于2015年,是一家年轻的室内设计和建筑公司,在越南的成长过程中为许多领先的项目做出了贡献。随着公司的扩张,BOHO Décor最近搬到了一个新建的办公室,该办公室的设计符合公司的文化并激发了其热情的团队。
Established in 2015, BOHO Décor is a young interior design & construction company that has contributed to many leading projects in Vietnam's growing scene. Following its expansion, BOHO Décor recently moved to a newly built office that was designed to meet with the company's culture and inspire its enthusiastic team.



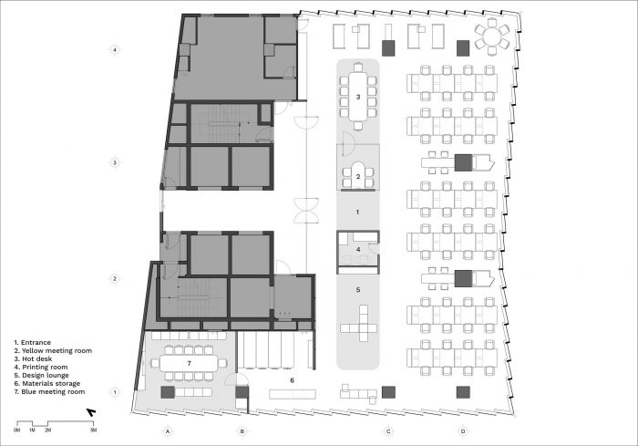
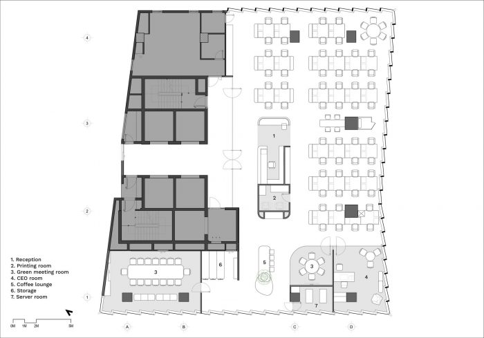
该办公室位于胡志明市的一个繁忙城区。由于其位于Newtecons大厦的第二和第三层,建筑师遇到的第一个挑战是许多低楼层办公室的问题:繁忙的室外和缺乏视野。这时,他们决定给BOHO Décor办公室一个完全不同的方法,把所有东西都放在里面。建筑师使用一个核心设计来引导视线进入办公室的中心,在那里他们为人们创造了一个另类的视野绿洲。公共空间和独特的公共功能,如接待处、施工台、画廊大厅和印刷室......被聚集到一个被称为 "核心 "的中央空间。然后,他们将主要的工作台面分布在周围,并将目光投向核心。这样一来,办公室就有了团队合作的精神和聚会的能量。除此以外,会议室被安排在角落里,以确保所有会议的专注和隐私。
The office is located in a busy urban area of Ho Chi Minh City. Because of its location on the 2nd and 3rd floor of Newtecons Building, the first challenge the architects came across was the problem of many low-floor offices: busy outdoors & the lack of view. That is when they decided to give BOHO Décor office a wholly different approach by bringing everything within. The architects use a core design to navigate eyesight into the heart of the office, where they create an alternative oasis of view for the people. Communal spaces & distinctive public features like the reception, construction desk, gallery hall & printing rooms… are gathered into a central space which is called ‘The Core'. They then distribute the main working desk sections around with their sights towards The Core. That way, the office speaks for its spirit of teamwork and get-together energy. Apart from that, meeting rooms are located privately in the corner to ensure total focus and privacy for all meeting sessions.



为了使BOHO Décor的办公室有别于其他办公室,建筑师取消了实体墙和分隔物,以坚持公司的开放文化。作为替代方案,色块、空心几何形状和透视玻璃同时被用来划分空间,而不建立边界和阻挡视线。这与该公司鼓励人们在不同项目上不断互动和合作的工作风格相吻合。
To set the BOHO Décor office apart from others, the architects eliminate solid walls and separators to adhere to the company's open culture. As an alternative, color blocks, hollow geometric shapes, and see-through glasses are simultaneously used to divide spaces without building up boundaries and blocking visions. This matches with the company's working style of encouraging people to interact & collaborate continuously on different projects.



之后,团队面临的另一个低楼层问题是低而间接的光线。他们用一个新技术照明系统成功地解决了这个问题。这个智能系统可以根据自然环境和人类的生物钟来调整亮度和白度。跟随太阳的运动,它帮助人体平衡荷尔蒙水平,在早晨保持注意力,在工作时间后逐渐放松。这种智能照明系统作为一种美学和性能因素,在室内解决方案本身中发挥了重要作用。
Another low-floor problem that the team faced afterward was the low and indirect light. They have successfully solved the case with a new technology lighting system. This smart system adjusts both brightness & whiteness according to the natural environment and human's biological clock. Following the sun's movement, it helps human bodies to balance out hormone levels, stay focused in the morning and gradually relax after work hours. This smart lighting system plays an important role in the interior solution itself as an aesthetic and performance factor.


建筑师还利用色彩为每个独特的空间设定正确的情绪和基调。例如,明亮的黄色和中性的灰色,代表创造力和专业性,被用来给公共区域一个现代的动态外观。而代表智慧和成长的深蓝色和柔和的绿色,则完全用于会议室。
The architects also use colors to set the right mood and tone for each distinctive space. For example, bright yellow and neutral gray, representing creativity & professionalism, are used to give the common area a modern dynamic look. While deep blue & muted green, representing wisdom & growth, are used entirely for the meeting rooms.

此外,尽管遵循一贯的干净整洁的设计,BOHO Décor更关心的是办公室如何成为人们真正的舒适。出于这个原因,设计师使用曲线来柔化家具细节。植物被放置在整个办公室,从所有的工作桌上生长出来,成为每个人的一个微妙的放松站。为了给员工提供更多的创造性功能,我们在整个空间里配备了有用的小工具,如头脑风暴板、可调节的办公桌和电话亭......。
Furthermore, despite following a consistently clean & neat design, BOHO Décor cares way much more about how the office becomes a genuine comfort for its people. For that reason, the designers use curves to tenderize furniture details. Plants are placed across the office, growing out from all working desks to become a subtle relaxing station for everyone. And in order to provide more creative functions for the employees, we equip useful gadgets like brainstorm boards, adjustable desks & phone booths... across the space.

继承了公司的资源,BOHO的内部团队亲自设计、亲自挑选、亲自制作了所有的家具和艺术品,使得这不仅是一个令人满意的项目,也是他们的员工的一个有意义的里程碑。这个项目就是我们想说的。一个由员工创造的、为员工服务的贴心办公室。
Inheriting the company's resources, BOHO's in-house team has designed, handpicked, and produced all furniture and artworks themselves, making this not only a satisfactory project but also a meaningful milestone for their people. This project is what we would like to call: A thoughtful office made by its people, for its people.



















Architects: BOHO Décor
Area: 780 m²
Year: 2021
Photographs: Hiroyuki Oki
Manufacturers: Interface, Unios, Segis Vietnam
Lead Architect: Duong Cam
Interior Design: BOHO Décor
Lighting Consultant: DJ Coaliation, Nguyen Quynh Anh
Technical Designer:Bui Anh Dao, Le Tuan Hai, Nguyen Viet Hoang
Interior Stylist:Trinh Quynh Le, Vu Hoang Phat
Graphic Designer:Duong Thuy Duong
Country:Vietnam