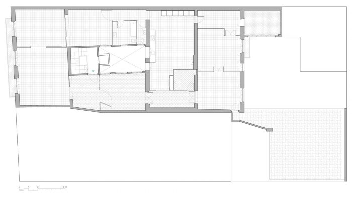
这套公寓位于拉瓦尔(Raval)的一栋楼里,离兰布拉(La Rambla)只有几米远,是空间的一个成就。当你走进去时,它从主立面向后方的露台敞开,可以看到Boqueria市场的情况。最初,我们惊讶地看到,公寓占据了大楼的整个楼层,大大小小的陈旧空间形成了鲜明的对比,与巨大的、不平整的露台的连接比例有限。
The apartment, located in a building in Raval, just a few metres from La Rambla, is an achievement of space. As you walk in, it opens up from the main façade to the rear terrace, which looks over the Boqueria market. Initially, we were surprised to see that the apartment occupied the entire floor of the building, with a contrast of large and small obsolete spaces and proportionally limited connection to the enormous, uneven terrace.





从一开始,我们与客户建立的最有趣的前提之一是,这将是她的家。作为一名翻译和作家,她想摆脱传统房屋的典型功能,并寻求灵活地使用空间。这个大的、最初混乱的区域需要成为个人的避风港、工作空间,以及接待朋友和家人的地方,而不需要过度地定义区域或为它们分配专属功能。
From the very beginning, one of the most interesting premises we established with the client was that this would be her home. As a translator and writer, she wanted to get away from the typical functionality of a conventional house and was looking for a flexible use of space. This large, initially chaotic area needed to become a personal haven, a work space, as well as a place to host friends and family, without overly defining areas or assigning them exclusive functions.

由于对多功能性的强烈关注,她希望不同房间的用途可以互换,以避免形成任何形式的空间等级。厨房将是中心,是活动的中心,也是连接公寓中其他区域的纽带。从项目一开始,另一个重要的特征是书架,由于它的存在,公寓将成为一个巨大的图书馆,同时保留了巴塞罗那中心的城市避难所的感觉。
With this strong focus on versatility, she wanted the uses of different rooms to be interchangeable so as not to create any sort of spatial hierarchy. The kitchen would be central, as the hub of activity and a link to other areas in the apartment. Another important feature from the beginning of the project was the shelving, thanks to which the apartment would become a sizeable library, while retaining the feel of an urban refuge in the centre of Barcelona.

我们从四条走廊开始着手这个项目,这四条走廊将公寓分割开来,与外墙平行。重要的是要保留相当大的空间感,但同时,房间需要有足够的灵活性,允许各种同时使用。考虑到这一点,我们选择了一种轻质、透明和实用的房间分隔形式。因此,各区域可以相互隔离,但仍然可以看到。
We approached the project starting with the four corridors, which divide the apartment and run parallel to the façades. It was important to retain the considerable sense of space but, at the same time, the rooms needed to be flexible enough to allow for a variety of simultaneous uses. With this in mind, we opted for a form of room division that is light-weight, transparent and practical. As a result, areas could be isolated from one another, yet remain visible.

同样地,我们决定删除较小的通道,以便优先考虑位于中央和内部走廊的工作空间。厨房、浴室、洗衣房和储藏室通过中央天井相互连接,这有利于整个公寓的移动。我们设置了最靠近外墙的区域,以便在需要时将它们分开,同时仍让光线到达建筑的其他部分。挨着内墙的最私密的区域成了 "公寓中的公寓",配有主卧室、设备齐全的浴室、更衣室和办公空间。也可以把这个空间分成两间卧室,而不影响从主卧室进入的便利性。
我们将公寓改造成一个大书柜,使用大型木质书架来容纳客户的四千多本书的收藏。我们将书架与现有的木梁整合在一起,以便给人一种线性的感觉,实现从房间的一侧到另一侧的连续性。同样的线条美学被应用于公寓的其他元素,如浴室、厨房和衣物储藏室。
Similarly, we decided to remove the smaller passageways in order to prioritize the work spaces, located along the central and interior corridors. The kitchen, bathrooms, laundry and storage rooms are interconnected via the central patio, which facilitates movement throughout the apartment. We set out the areas closest to the façade so that they could be separated when needed, while still letting light reach the rest of the building. The most private area next to the interior wall became a ‘flat within a flat’, complete with a master bedroom, fully equipped bathroom, dressing room and office space. It is also possible to split the space into two bedrooms, without jeopardizing accessibility from the master bedroom.
We transformed the apartment into one great bookcase, using large wooden shelves to accommodate the client’s collection of more than four thousand books. We integrated the shelving with the existing wooden beams so as to give a sense of linearity and achieve continuity from one side of the room to the other. The same lineal aesthetic was applied to other elements in the apartment, such as the bathrooms, kitchen and clothes storage.

在进行了大量的解构之后,我们能够恢复木梁和原来的屋顶砖,以及瓦片和细木工制品。
Following a considerable amount of deconstruction, we were able to recover wooden beams and original roofing blocks, as well as tiles and joinery.

一旦建筑被拆除,我们就根据现有材料选择新的材料和装饰纹理。我们用混凝土做台面、水槽并补充地板;我们用木头做架子和储藏区;我们用钢做房间隔板和开放式衣服储藏室。
Once the building was stripped down, new materials and finishing textures were selected in line with the existing materials. We used concrete for the worktops, the sinks and to complement the flooring; we used wood for the shelving and storage areas; and we used steel for the room dividers and the open clothes storage.

在露台上,我们集中精力恢复原始元素,如栏杆。我们还重新设计了布局,在不同的楼层创建重叠的部分,以优化空间的使用。就像建筑内部一样,我们使用了现有的陶瓷砖。在这个项目中,根据一个非常规的简报,我们设计并创建了一个相互连接的空间系统,可以根据客户的需求进行调整。这确保了各区域可以在任何时候承担多种功能,同时保留了原来围绕中央天井的流动。
In the terrace, we concentrated on restoring the original elements, such as the balustrades. We also redesigned the layout, creating overlapping sections on different levels, in order to optimise the use of the space. Just as with the building’s interior, the existing ceramic tiles were used. In this project, following an unconventional brief, we have designed and created a system of interconnecting spaces, which can be adapted to meet the needs of the client. This ensures that areas can take on a multitude of functions at any one time, while retaining the original flow of movement around the central patio.













Architects: nook architects
Area : 273 m²
Year : 2017
Photographs :Nieve I Productora Audiovisual
Manufacturers : Smeg, Faro, MH parquets, Mosaics Martí
Structure : Francesc Gorgas
Construction : Metric Integra
Concrete Work : Michael Roschach
City : Barcelona
Country : Spain