荷兰泽兰省的Borsele市是在1970年由13个村庄合并而成的。Heinkenszand被指定为这个新成立的行政单位的中心,并为25,000名居民建造了一个新的市政厅。启用30多年后,该建筑需要修复。一方面,外墙和屋顶不再是完全防水的。此外,为了适应现代建筑标准,该建筑必须进行石棉消减。另一方面,为了创造一个灵活和现代的办公环境,该建筑的内部必须进行改造。建筑物的气候必须得到改善,以减少能源损失。
The municipality of Borsele in the Dutch province of Zeeland was founded in 1970 by the merging of 13 villages. Heinkenszand was assigned centre of this newly formed administrative unit and a new town hall was built for the 25.000 inhabitants. More then 30 years after the opening, the building was in need of rehabilitation. On the one hand, the façade as well as the roof weren’t fully waterproof anymore. Furthermore, the building had to undergo an asbestos abatement to adapt to modern building standards. On the other hand the interior of the building had to be renovated in order to create a flexible and modern office environment. The building climate had to be improved in order to reduce energy loss.



最重要的是,改造的目标是改善这栋设计不良和破旧的大楼的整体印象。由于这些原因,市政府在2009年组织了一次欧洲建筑竞赛,来自鹿特丹的Atelier Kempe Thill赢得了这次竞赛。虽然当时仍打算扩建现有的建筑,但在规划阶段由于财政原因而放弃了。
Above all, the goal of the transformation was to improve the overall impression of the poorly designed and run- down building. For these reasons, in 2009 the municipality organized a European architecture competition, which was won by Atelier Kempe Thill from Rotterdam. While at that moment it was still intended to extend the existing building, this was given up due to financial reasons during the planning phase.

这项任务对建筑师来说是一个非常微妙的挑战。由于成本紧张,建筑的现有几何形状必须得到很大程度的保留。因此,结构或空间上的干预是不可能的。我们的任务是在美学和技术上改善现有的表面,从而改善建筑的整体印象。
The task turned out to be a very delicate challenge for the architects. Due to the tight cost frame, the existing geometry of the building had to be preserved to a great extend. Therefore, structural or spatial interventions were hardly possible. The task was rather to aesthetically and technically improve the existing surfaces and thereby also the overall impression of the building.

该建筑现有的基本形式几乎不明显,必须重新解释和概念化,以加强市政厅在村庄周围的空间整合。与意大利文艺复兴时期的许多项目类似,中心思想是用一个新的、更有纪念意义的外墙将建筑完全包裹起来,以强调建筑的公共性和代表性,从而使建筑成为建筑。此外,新的外墙不仅被视为改善外部印象的工具,而且还对内部空间的质量和政府雇员的工作流程产生积极的影响。
The existing basic form of the building was hardly evident and had to be reinterpreted and conceptualized, in order to strengthen the spatial integration of the town hall within the surrounding of the village. Similar to many projects of the Italian Renaissance, the central idea was to fully wrap the building with a new, more monumental façade, to emphasize the public and representative character of the building and thus to make the building become architecture. Furthermore, the new façade was not merely seen as an instrument to improve the exterior impression, but also to positively affect the quality of the interior spaces and the workflow of the government employees.

极端改造
由于市政厅现有的形式是相当不明确和防御性的,首先必须加强建筑的轮廓,以创造与公共空间的关系。该项目分不同阶段逐层实现,类似于整形外科医生的工作。
EXTREME MAKE- OVER
Since the existing form of the town hall was rather unclear and defensive, first the profile of the building had to be enhanced, in order to create a relation with the public space. The project was realized in different phases and layer by layer, similar to the work of a plastic surgeon.

第一步,建筑师决定调整三个 "头 "和星形建筑的入口大厅,以部分澄清现有的几何形状,并加强该建筑在村庄背景中的地位。头部的立面被大面积拆除,并增加了结构胶合的宽大玻璃立面。这样一来,建筑的内部变得清晰可见,并与外部产生了联系。此外,入口大厅被稍微向外延伸,以提高从主干道上的可见度。
In a first step, the architects decided to adjust the three “heads” and the entrance hall of the star-shaped building, in order to partly clarify the existing geometry and to strengthen the building’s position within the context of the village. The façades of the heads where removed to a great extend and generous structurally glued glass facades were added. By that, the interior of the building became visible and a relation with the exterior was created. Furthermore, the entrance hall was slightly extended towards the outside, in order to enhance the visibility from the main road.

第二步,通过用一种立面材料包裹外墙和屋顶,使零散的建筑形状得到驯服和视觉上的整合。新的外墙由玻璃马赛克瓷砖组成,它们被粘在安装板上,并被放置在现有砖墙的新保温层前面。这些瓦片是在中国定制的。通过上釉的过程,创造了丰富的光反射。黑色和绿色在视觉上将建筑结合在一起,并增加了紧凑的印象。同时,这种颜色参考了泽兰周围典型的柏油谷仓。
In a second step, the fragmented building shape was tamed and visually integrated by consequently wrapping the façade as well as the roof with one façade material. The new façade consists of glass mosaic tiles, which are glued on mounting plates and placed in front of a new insulation layer on the existing brick walls. The tiles were custom-made in China. Through the process of enameling rich light reflections are created. The black and green colour visually binds the building together and ads to the impression of compactness. At the same time, the colour refers to the tarred barns, which are typical in the Zeeland surrounding.

外部更新的最后一步是细化建筑的比例。所有的外部技术设施,如水管、通风网和遮阳网都被移除。一些窗户被调整。窗格被扩大到每个窗户1.8米x1.6米的格式。框架是带有太阳能玻璃填充物的丝状 "旋转框架"。内侧安装了高性能的纺织屏,以提供额外的防晒。
The last step of the external renewal was to refine the proportions of the building. All exterior technical installations such as water pipes, ventilation grids and sun screens where removed. Several windows were adjusted. The window grid was enlarged to a format of 1,8m x 1,6m per window. The frames are filigree “pivoting frames” with solar glass filling. High performing textile screens were installed on the inside to provide additional sun protection.

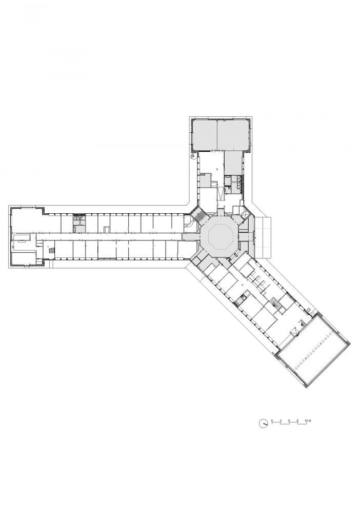
八角形和全景图
关于内部装修,我们采取了几个步骤来改善市政厅的气氛和工作条件。特别是,两层楼高的入口大厅被证明是一个挑战。由于现有的几何形状不清楚,而客户希望有一个更现代的外观,建筑师决定从根本上重组大厅。入口大厅被战略性地缩小,并被组织成八角形,这是在一楼现有的八角形地板开口的结果。在这个新的结构中,也有可能在大厅周围创建新的会议室和一个可分离的接待区。新的天花板被开发成一个圆顶,这也是现有八角形的结果。为了在内部和外部之间创造一个流畅的体验,入口大厅也是由玻璃马赛克瓷砖制成的,这次是浅色的,反射出薄荷绿的颜色。大厅由一个圆形的天窗照亮。一楼的玻璃栏杆是照明设备,它还将光线传播到整个大厅。慷慨的办公室景观位于建筑的三个头部。在这里,全玻璃的外墙提供了对周围绿色和泽兰风景的全景。
OCTAGON AND PANORAMA
Regarding the interior, several steps were taken to improve the atmosphere and working conditions of the town hall. In particular, the two- floor high entrance hall turned out to be challenging. Since the existing geometry was unclear and the client wanted a more modern appearance, the architects decided to fundamentally reorganize the hall. The entrance hall was strategically downsized and organized in an octagonal shape, which was the result of the existing octagon-shape floor opening in the first floor. Within this new structure, it was also possible to create new meeting rooms and a separable reception area around the hall. The new ceiling was developed as a dome, again as a result of the existing octagon. In order to create a fluent experience between interior and exterior, the entrance hall was as well materialized from glass mosaic tiles, this time in a light – reflecting mint-green colour. The hall is illuminated by a circular skylight. The glass balustrades on the first floor are luminaires, which additionally spread light throughout the hall. Generous office landscapes were situated at the three heads of the building. Here, the fully glazed façades offer a panoramic view towards the green surrounding and the landscape of Zeeland.










































Architects: Atelier Kempe Thill
Area: 4387 m²
Year: 2014
Photographs: Ulrich Schwarz
Manufacturers: Arturo Unique Flooring, Keers
Building Contractor: Bouwbedrijf Fraanje
Structural Engineer: Breed-id Grontmij Nederland BV
Architect In Charge:André Kempe, Oliver Thill, Jan Gerrit Wessels
Collaborators:Ruud Smeelen, Blanca Sánchez Babé, Andrius Raguotis, Helen Webster, Teun van der Meulen, Roel van der Zeeuw, Sezen Zehra Beldag, Renzo Sgolacchia, Karel Kubza, Martins Duselis
City:Heinkenszand
Country:The Netherlands