该建筑展示了我们对人们在未来生活的想象。屋顶花园增加了城市的生物多样性,提高了空气质量,并通过遮阳和水汽化为建筑降温。此外,居民们共享花园,在离家近的地方种植蔬菜和水果。社区的理念是这个项目的基石。建筑的形象是基于它的历史外观,它在二战的轰炸中被拆除。未完成的、原始的、开放的,建筑体量是其自身遗迹的代表
The building shows how we imagine people living in the future. The rooftop garden increases the biodiversity of cities, enhances the air quality, and cools down the building through shading and water vaporization. Furthermore, the residents share the garden to grow vegetables and fruits close to their homes. The idea of community is a cornerstone of this project. The image of the building is based on its historic appearance, which was demolished during the bombing of World War II. Unfinished, raw, and open, the architectural volume is a representation of its own remains



这个项目是使用非常规材料的实验,以便在城市环境中实现高质量的建筑。建筑方法借鉴了工业结构,并通过定制的细节得到加强。高度预制化的材料保证了及时的施工进度和成本效益。
This project is the experiment of using unconventional materials in order to achieve high-quality architecture in an urban setting. The construction methods are borrowed from industrial structures and are enhanced through custom details. Highly prefabricated materials guarantee timely construction progress and cost-efficiency.

钢结构保证了未来使用的灵活性和适应性。屋顶上的植物是用收集的雨水浇灌的,它们有助于减少建筑的碳足迹。该建筑是有机结构和建筑结构的共生体。
The steel structure ensures flexibility and adaptability for future uses. The plants on the roof are being watered with collected rainwater and they help reduce the carbon footprint of the building. The building is a symbiosis between organic and built structures.

城市房屋的每个居民都可以使用种植槽来种植有益于健康的食物。这座房子成为有机结构和城市内部住房的共生体。植物的存在增加了生物多样性,同时也在夏季为建筑遮阳和降温方面发挥了重要作用。
Every resident of the city house has access to planters for growing wholesome and healthy foods. The house becomes a symbiosis of organic structure and inner-city housing. The presence of the plants increases biodiversity while also playing a vital role in shading and cooling the building during the summer.

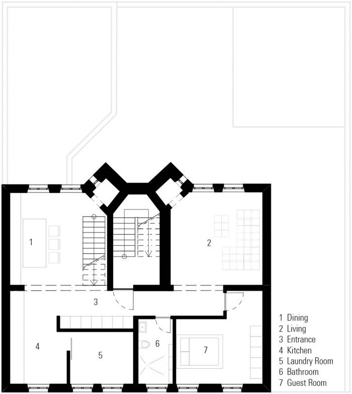
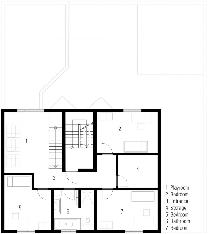
这座房子被一个家庭收购,目的是将其扩展为一个多用途的建筑,其中包括五个成员的家,三个商业空间和两个一室公寓。纽伦堡的历史区有很高的城市密度,几乎不可能找到有私人绿地的住宅。因此,决定采用传统的后院,并将其置于房屋的屋顶上。
The house was acquired by a family with the purpose of extending it into a multi-use building, that includes a home for its five members, three commercial spaces, and two one-bedroom apartments. The historic districts of Nuremberg have a high urban density and it is nearly impossible to find homes with private green spaces. Thus the decision was made to take the traditional backyard and place it on the rooftop of the house.



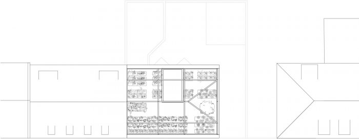
其结果是一个新的和独特的城市类型,对未来的住房有很大的潜力。框住屋顶花园的钢结构是对战前建筑的原始屋顶形状的一种点头。从遗产的角度来看,建筑师选择用钢梁重现原来屋檐的形状,从而对失去的空间进行了诗意的引用。
The result is a new and unique urban typology, that has a lot of potential for future housing. The steel structure that frames the rooftop garden is a nod to the original roof shape of the pre-war architecture. From a heritage point of view, the architect chose to recreate the shape of the original eaves with steel beams, resulting in a poetic quote of a space that was lost.

所有居民都可以利用屋顶进行娱乐活动和园艺。在我们的案例中,主要用途是园艺,因此有了PlantHouse。通过使用花盆,人们的体验不那么疲惫,雨水收集器确保了可持续的水供应。这座建筑是未来同居形式的原型,确保在城市中获得健康食品和有意识的社区生活。
All residents can use the rooftop for recreational activities and gardening. The main use in our case is gardening, hence the PlantHouse. By using planters the is experience less exhausting and the rain collectors ensure a sustainable water supply. This building is a prototype for a future form of cohabitation that ensures access to healthy food and conscious community-based living in cities.



















Architects: büro für bauform
Area: 284 m²
Year: 2019
Photographs: Markus Vogt
Manufacturers: Alape, Fischer, Steinberg, Bauder, Brucha, HeidelbergCement, Stahlbau Zienert
Lead Architect :Jürgen Lehmeier
Project Participant :Eduard Klotz, Benedikt Weigmann, Carmen Selaru
Energy Consulting :Winfried Thör/ Eduard Klotz
City:Nürnberg
Country:Germany