城市规划和建筑。该项目位于洛桑北部的Boveresses区的中心。该区由20世纪70年代的几个标志性的住宅群组成。该项目的目的是要在这个背景下整合出一个强大的身份。其结果是一个城市的形态,通过提出一个带有红点的衔接体量,占据了周围城市的明确方向。在不寻求模仿的情况下,该建筑与环境建立了强有力的联系。
Urban planning and architecture. The project is located in the heart of the Boveresses district in the north of Lausanne. This district is composed of several emblematic housing complexes from the 1970s. The project aims at an integration in this context with a strong identity. The result is an urban morphology that takes up the clear orientation of the surrounding urbanism by proposing an articulated volume with redents. Without seeking mimicry, the building creates a strong link with its environment.




该项目有两个参考层:一楼下层朝南,是学校和课外活动的场所,也是通往住宅的主要通道,而一楼上层的入口朝北,与一个长满树木的公园和一个操场相连。这些入口通向两个宽敞的分配核心。在花园板块下是一个半层经营的停车场。在设施附近有一个顶棚,为大楼的居民以及附近的居民提供了进入停车场的通道。
Two reference levels define the project: the lower first floor level, facing south, hosts the school and after-school programs as well as the main accesses to the dwellings, while the upper first floor entrances, facing north, are connected to a park covered with trees and a playground. The entrances lead to two generous distribution cores. Under the garden slab is a parking lot operating in half levels. A canopy near the amenities provides access to the parking lot for the residents of the building as well as the neighbourhood.

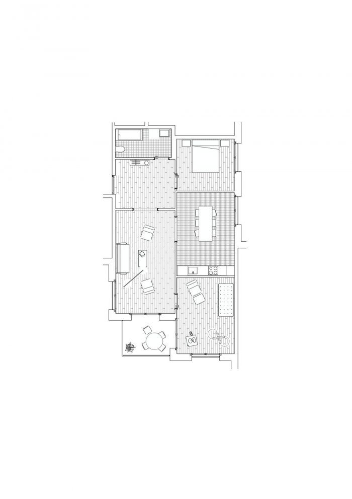
正交规划由一个南北轴线相距3.6米的刚性系统和一个更灵活的东西向墙体系统组成。这两个系统的交叉点产生了一个由分布在包围圈中的房间组成的平面。这种规划原则提供了许多通过大型落地门进入住宅的交叉视野。这个系统通过大量的凹槽反映在外墙上,为公寓提供了不同的方向和大量的自然光。
The orthogonal plan is composed of a rigid system of north-south axes 3.6m apart and a more flexible system of east-west walls. The intersection of the two systems generates a plan composed of rooms distributed in enfilade. This plan principle offers many cross-views into the dwellings through the large floor-to-ceiling doors. This system is reflected in the facade by numerous recesses that provide the apartments with varied orientations and a significant amount of natural light.



与城市设计一样,预制混凝土外墙的处理寻求与相邻建筑的联系,并赋予它一种非时间性的存在。
Like the urban design, the treatment of the prefabricated concrete facades seeks a link with the adjacent buildings and gives it an intemporal presence.

景观。景观项目的特点是其组成部分的有机和流动的几何形状。它的设计与建筑的刚性形成对比。在较低的一楼,与学校项目有关,矿物成分确保了对广场和庭院的占有。相比之下,在一楼的上层,植物成分占主导地位。设有操场的林荫公园成为整个社区的参考场所。白桦树和松树给这个项目带来了平静和安宁的气氛。
Landscape. The landscape project is characterized by the organic and fluid geometry of its components. Its design contrasts with the cartesian rigidity of the built architecture. On the lower first floor, in relation to the school programs, the mineral component ensures the appropriation of the square and the courtyard. On the upper first floor, by contrast, the vegetal component prevails. The tree-lined park hosting the playground becomes a place of reference for the entire neighbourhood. The birch and pine trees give the project a calm and restful atmosphere.




















Architects: Fruehauf, Henry & Viladoms
Area : 10913 m²
Year : 2021
Photographs :Olivier Di Giambattista, Simon Menges, Carlos Viladoms
Construction Management : Pragma Partenaires
Civil Engineer : AIC Engineers
Project Manager : Cindy Barraud
Project Team : Vincent Tschanz, Philippe Herkommer, David Viladomiu, Aureliano Ramella, Maria Sienko, Pascal Rodrigues
Client : Logement idéal - Société coopérative
City : Lausanne
Country : Switzerland