EBBA最近完成了一个位于伦敦东部一个旧火柴棍工厂的公寓的雄心勃勃的翻新工程。该项目包括对改造后的工厂建筑中的双高空间进行全面改造,开放并扩展夹层,以提供一个宽敞灵活的公寓。改造力求通过在边缘衬托细木工和储物来最大限度地利用小面积的空间,使开放式的安排与垂直的线条能够增加体量感。
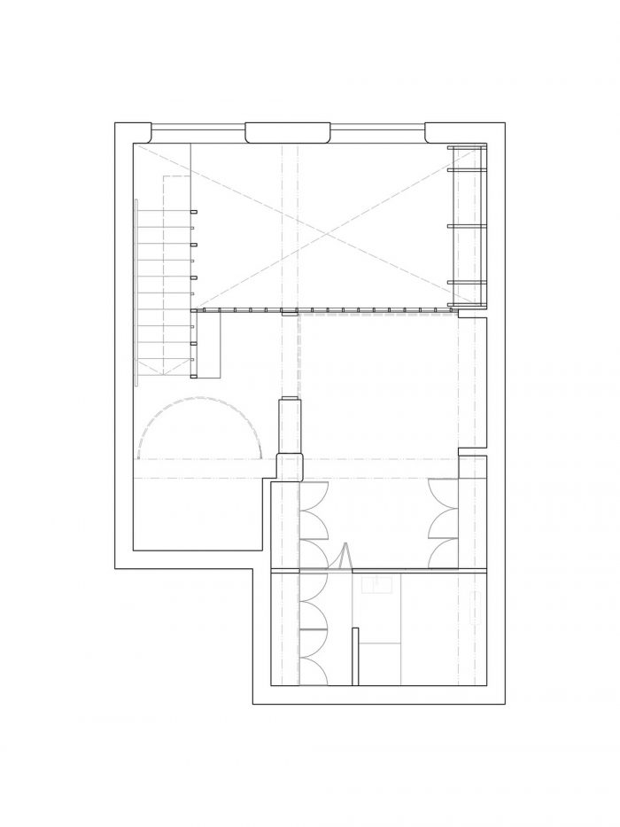
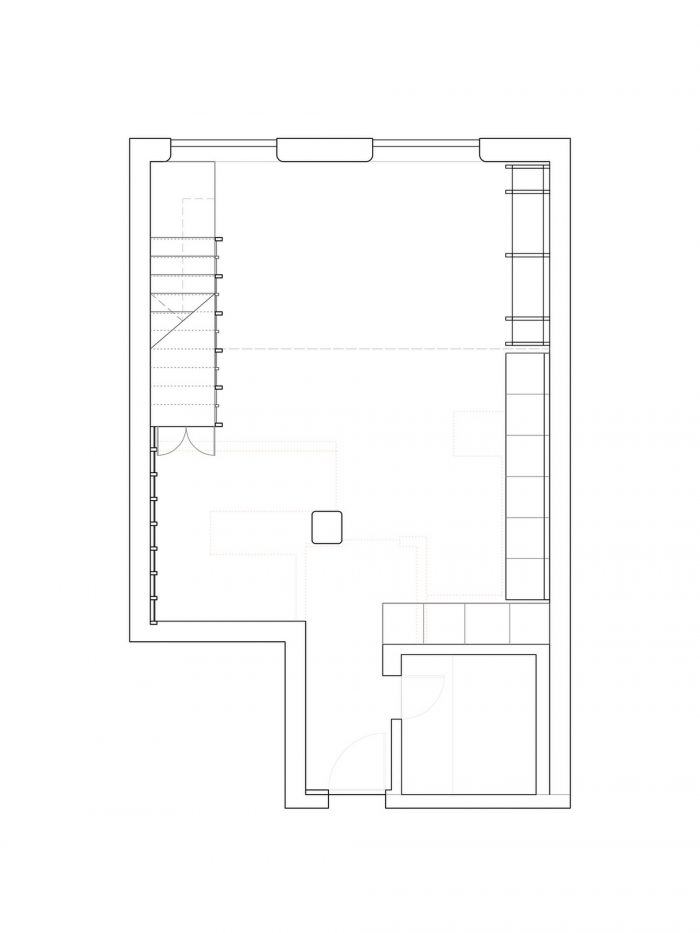
EBBA have recently completed an ambitious refurbishment to an apartment located in an old matchstick factory in East London. The project includes the complete overhaul of a double height space in the converted factory building, opening up and extending the mezzanine to provide a generous flexible apartment. The renovation sought to maximise the small footprint by lining the edges with joinery and storage, allowing for an open plan arrangement with vertical lines that could increase the sense of volume.





撑起延伸的地板的是一件大型家具--作为结构细木工--以新楼梯的形式出现,所有元素都裸露在外,构筑了下面的一个私密空间,将用于用餐。楼梯细长的骨架有助于强调主要生活空间的高度,同时也作为上面一层书桌的支撑,为在家工作提供一个沉思的学习空间。使用白蜡作为结构木材的白色染色剂,为公寓提供了一个柔和的背景,加上水泥地板和厨房柜台的中性色调;水磨石般的板块,半透明的骨料和精细的黑色玄武岩。
Propping up the extended floor is a large piece of furniture - working as structural joinery - in the form of a new stair entirely in timber with all of the elements left exposed, framing an intimate space beneath that will be used for dining. The slender skeletal framework of the stair helps to emphasise the height of the main living space while also acting as the support for a desk on the level above, offering a contemplative study space for working at home. The use of the ash for the structural timber in a white stain provides a soft background to the apartment, coupled with the neutral tones of the cement floor and kitchen counter; a terrazzo-like slab with translucent aggregate and fine black basalt.

为了配合沉稳平静的室内环境,选择了一些简单的照明灯具,以应对公寓的活动和使用方式,同时配合新细木工的形式。一个扩大的松木存储单元支持生活的功能方面,并将能够隐藏在悬挂在栏杆上的窗帘后面。所有的家具都寻求使用现成的木材,经过处理后,以非常高的质量制造,使一个雄心勃勃的项目能够以成本效益的方式交付。
To complement the subdued and calming interior, a selection of simple lighting fixtures respond to the activities and way the apartment will be used, while complementing the forms of the new joinery. An enlarged storage unit in pine supports the functional aspects of life and will be able to be concealed behind curtains hanging from a rail. All furniture sought to use readily available timber treated and made to a very high quality that enabled an ambitious project to be delivered in a cost effective way.










建筑师:EBBA ARCHITECTS
面积 : 105 m²
年份:2020年
摄影:Benni Allan
城市 : 伦敦
国家:英国
Architects: EBBA ARCHITECTS
Area: 105 m²
Year: 2020
Photographs: Benni Allan
City:London
Country:United Kingdom