这座房子由Henrique Cambiaghi在20世纪80年代设计,吸引客户的是混凝土结构的美丽设计、大木窗和土地后面的树木景观。
The house, designed in the 1980s by Henrique Cambiaghi, attracted the client for the beautiful design of the concrete structure, the large wooden windows, and the view of the trees at the back of the land.




然而,它有一个非常规的特点:厨房在上层,这导致了最后一位业主的无序改变,他们建造了与原房屋没有建筑联系的附属建筑。
It had, however, an unconventional feature: the kitchen was on the upper floor, which caused disorderly changes by the last owners, who built annexes without architectural connections with the original house.

此外,下层的社交区域没有与花园或厨房结合起来。另一个大的社交空间比例优美,占据了房子的中间层,也没有与花园和景观很好地连接,最终没有得到充分利用。
In addition, the social area on the lower floor was not integrated with the garden or the kitchen. Another large social space with beautiful proportions that occupied an intermediate level of the house also did not connect well with the garden and the view and ended up underutilized.




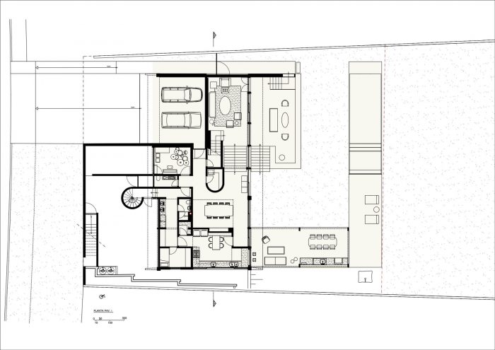
在改造项目中,中间层成为房子的主要生活区,厨房被转移到低层,与餐厅和新的娱乐区相连。为了更好地整合这两层楼,我们重新设计了主楼梯。
In the renovation project, the middle floor became the main living area of the house, and the kitchen was transferred to the lower floor, connected to the dining room and the new recreation area. For better integration between these two floors, we redid the main staircase.


主要的通道也被改变了;以前通往下层的社会入口被修改,通过在侧面后退处创建的走道,可以进入中间层。
The main access was also changed; the social entrance that previously led to the lower floor was modified to give access to the intermediate level, through a walkway created in the side setback.

游泳池也被重新设计和重建,因为旧的游泳池不尊重现行法律规定的资金提取。
The pool was also redesigned and rebuilt, as the old one did not respect the withdrawal of funds required by current laws.

正面的主要视觉改变是创造了垂直的木制鳍状物,覆盖了一组非常多样化的窗户--浴室、储藏室、洗衣区等。- 面向街道。
The main visual alteration to the front was the creation of vertical wooden fins covering a very varied set of windows - bathrooms, pantry, laundry area, etc. - facing the street.








Architects: Play Arquitetura
Area: 1075 m²
Year: 2019
Photographs: Fran Parente
Architect Of Original Building:Henrique Cambiaghi
Architects In Charge:Juliana Figueiró e Marcelo Alvarenga
Project Team:Daniela, Felipe e Isabella
Clients:Helena, Daniela e Vicente
Execution:Construtora Lock
City:São Paulo
Country:Brazil