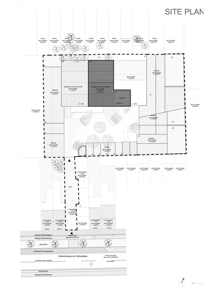
该项目位于根特市中心郊区的一个住宅楼区的中间。这个19世纪周边地区的特点是住房、工艺品和小型工业活动的混合。通过一条小通道可以进入由联排别墅组成的街道,这里是原 "根特布鲁日啤酒厂"(Gentbrugsche Stoombierbrouwerij)的遗址,面积为2700平方米。这家城市啤酒厂成立于1890年,其名称来自于当时创新的蒸汽驱动机械技术。
The project is located in the middle of a residential building block, on the outskirts of the city center of Ghent. Characteristic of this 19th-century periphery was the mix of housing, crafts, and small industrial activities. Accessible through a small passageway at a street formed by townhouses lies the site of the former ‘Ghentbruges Steambrewery’ (Gentbrugsche Stoombierbrouwerij )on a surface of 2700 sm. The city brewery was founded in 1890 and takes its name from the then innovational technique of steam-driven machinery.



尽管该啤酒厂的啤酒和苏打水在根特市非常受欢迎,但工厂的成功并没有持续太久。由于WOI的基础设施遭到严重破坏,加上小规模酿造的高成本,后来它不再可行,被关闭了。在连续的几十年中,该场地被石匠占据,之后,它就被废弃了。从以前的酿酒厂遗址来看,有三座突出的砖瓦建筑仍然保留着,紧邻中央庭院:厂长的房子(左边,灰色),有水壶和麦芽室的实际酿酒厂建筑(中间,白色),以及容纳蒸汽机的水塔(右边)
Although the brewery was very popular for its beers and sodas around the city of Ghent the factory’s success didn’t last long. Due to severe damage to the infrastructure in WOI and the high costs of small-scale brewing, later on, it was no longer viable and was closed down. In successive decades the site was occupied by stone masonry and after that, it became abandoned. From the former brewery site, there are three prominent brick buildings still remaining, adjacent to the central courtyard: the house of the factory director (left, gray), the actual brewery building with the kettles and malt rooms (middle, white), and the water tower, housing the steam machine (right)


自2010年以来,该遗址得到了重振。董事的房子已经有了新的居民,四个仓库已经被改造成单户住宅。此外,现场还安置了新的工作功能。到目前为止,已经有一名木匠/家具设计师、一名钢铁工人和一名建筑官员在这里定居。其他建筑被用作存储空间、车库和现场及附近居民的工作场所。
Since 2010 the site has been revitalized. The directors’ house has gotten new inhabitants and four warehouses have been converted to single-family homes. In addition, new work functions have been housed on-site. Up till now a carpenter/ furniture designer, a steel worker, and an architecture officer have been settled there. Other buildings are used as storage spaces, garages, and workplaces of the residents on-site and from around the neighborhood.


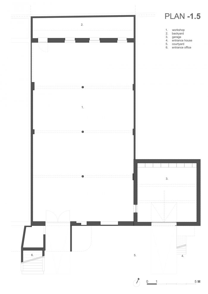
2016年,最后一个被改造的老建筑被挂牌出售:引人注目的水塔和邻近的啤酒厂建筑。水塔的占地面积很小,为7×7米,有四层(新)楼。酿酒厂大楼由一个三层楼的体量组成,在两个倾斜的屋顶上,就在彼此的后面。在最高的一层,在倾斜的屋顶下,存放着谷物和啤酒花。在中间一层,发现了酿造水壶和麦芽室。在最低层,比中央庭院低一米的位置,存放着酒桶。
In 2016 the last to be reconverted old buildings were put up for sale: the remarkable water tower and the adjacent brewery building. The water tower has a small footprint of 7 by 7 meters and has four (new) floors. The brewery building consists of a volume with three floors over two pitched roofs just behind one another. On the highest floor, under the pitched roofs, grain and hops were stored. On the middle floor, the brewing kettles and malt rooms were found. On the lowest floor, positioned one meter lower than the central courtyard, the barrels were stored.

该项目的最大挑战是将以前的工业建筑重新改造成住房和商业功能。城市法规允许将一个单户住宅分配给啤酒厂的建筑。为了允许转换,该建筑区块内的所有建筑都必须拆除建筑本身1/3的占地面积,以创造一个地面花园。就啤酒厂大楼而言,这意味着要拆除200平方米的建筑面积,以创造一个地面花园。即使如此,花园也会从地面下沉一米,并且由于周围剩余的高墙而完全与阳光隔绝。
The biggest challenge of the project consisted of the reconversion from a former industrial building to housing and commercial functions. Urban regulations allowed to the allocation of a single-family home to the brewery building. In order to allow the conversion, all buildings within the building block had to demolish 1/3rd of the footprint of the building itself in order to create a ground-bound garden. In the case of the brewery building, this meant demolishing 200 sqm of floor space in order to create a ground-bound garden. And even so, the garden would be sunk in from the ground level by one meter and completely cut off from sunlight due to the remaining high walls around it.



水塔本身只被指定用于商业功能,但由于其形式在使用上不实用。通过利用工业建筑巨大的承重能力,并将水塔和啤酒厂视为一个建筑,向该市的城市规划者提出了以下建议。只有建筑物的后部斜屋顶将被拆除(占1/2的面积),并被改造成屋顶花园,与传统的地面花园一样有质量和可持续性。这样一来,底层可以保持原样,而生活空间定位在顶层(有最大的日光)。而现在考虑到塔楼和啤酒厂作为一个整体,住房功能也可以分配给塔楼。作为额外的补偿,建筑物前面的车库被拆除,并增加了一个新的前花园,包括一个大的雨水井。
The water tower itself was only designated for commercial functions, but due to its form not practical in use. By making use of the vast load-bearing capacity of the industrial building and considering the water tower and the brewery as one building, the following proposal to the city’s urban planners was made: Only the back pitched roof of the building would be removed (1/2 of the footprint) and converted to a roof garden, as qualitative and sustainable as a classic ground-bound garden. This way, the underlying floors could remain as they were, and the living spaces positioned on the top floor (with a maximum of daylight). And now considering the tower and the brewery as a whole housing function could be allocated to the tower as well. As additional compensation, the garages in front of the buildings were removed and a new front garden was added, including a large well for rainwater.

这样就在两座建筑中创造了一个新的功能构成:家庭住宅在庄严的水塔上有新的入口,那里有流通和夜间功能。生活区与顶层的屋顶花园相邻。酿酒厂的中间楼层作为建筑办公室的开放式空间。在最底层,可以看到工作场所和仓库。
That way creates a new composition of functions in the two buildings: the family house has its new entrance at the stately water tower, where the circulation and night functions are found. The living area adjoins the roof garden on the top floor. The middle floor of the brewery serves as an open-plan space for the architecture office. On the lowest floor, workplaces and storage are found.




由于多年的忽视和空置,水塔处于衰退状态。建筑物的内部完全是空的。外墙已被恢复到以前的状态。新旧砖石的拼接让我们想起了这座建筑的历史。在内部,下面的旧安置坑已被重新改造成一个车库。塔楼本身已经被填上了新的楼层,与一个新的螺旋式楼梯相连,这是典型的塔式建筑。在+0.5层是入口大厅、衣帽间和卧室。在+1.5层是另一间卧室,旁边是客用浴室、厕所和储藏室/技术室。
Due to years of neglect and vacancy, the water tower was in a state of decline. The inside of the building was completely empty. The façade has been restored to its former state. Old and new masonry patchwork reminds us of the history of the building. Inside, the old settlement pit below has been reconverted into a garage. The tower itself has been filled in with new stories, connected with a new spiral staircase, typical of a tower-typology building. At level +0.5 the entrance hall and cloakroom and bedroom. At level +1.5 another bedroom with an adjacent guest bathroom, toilet, and storage room/technical room.

在顶层是主卧室、浴室、更衣室和厕所。为了保留建筑外部的历史特征,塔楼从里到外都进行了隔热处理。通过强调每个空间中至少一个表面或元素的工业特征,过去的东西仍然是明智的。与粗糙的工业纹理相辅相成,室内以石膏制品和水泥地板的柔和色彩来完成。在主卧室的地板上,内部的装饰在相邻的浴室和更衣室的天花板上停止,并有一个干净的切割。在这种干净的装饰上面,旧墙和砖石天花板,以及以前水盆的沙井都很突出。
On the top floor the master bedroom, bathroom, dressing room, and toilet are located. In order to retain the historical character of the outside of the building, the tower has been insulated from the inside out. By accentuating the industrial character of at least one surface or element in each space, the past remains sensible. Complementary to the rough industrial textures, the interior is finished with the soft colors of the plasterwork and cement flooring. On the master bedroom floor, the inside finishings stop at the ceiling of the adjacent bathroom and dressing room with a clean cut. Above this clean décor, the old walls and masonry ceiling, and manhole of the former water basin stand out.



走过塔楼的小规模走廊后,就可以进入宽敞明亮的生活空间。该层由一个封闭的坡屋顶和一个开放的屋顶(屋顶花园)组成。在这两个体量之间,一个砖砌的 "盒子 "被放了进去,容纳了厨房/用餐区。作为剧院的装饰,盒子的墙壁将开放空间划分为不同的序列,并赋予生活空间以人的尺度。洞石地板和石灰水墙让装饰在更大的体积中拥有自己的身份。通过以相同的叠加债券模式建造厨房岛,并在壁龛中整合烹饪功能,在原型 "厨房 "和 "用餐区 "之间创造了一条细线。沉重的橡木梁和铸铁柱让我想起了这栋建筑的历史。塔楼和酿酒厂之间以前的服务舱口现在提供了玻璃淋浴间和生活区之间的视野,在浴室里创造了宽敞的空间。
After a walk through the small-scaled corridors of the tower, the bright and spacious living space is accessed. The level consists of one closed-pitched roof and one opened-up roof (the roof garden). In between those two volumes, a brick-built ‘box’ has been put in, housing the kitchen/eating area. Functioning as a décor from a theatre, the walls from the box divide the open space into different sequences and give the living space a human scale. The travertine floors and limewashed walls give the décor its own identity in the bigger volume. By building the kitchen island in the same stacked bond pattern and integrating the cooking functions in niches a thin line between the archetype ‘kitchen’ and ‘dining area’ is created. The heavy oak beam and cast iron column remind me of the history of the building. The former service hatch between the tower and the brewery now offers a view between the glass shower and the living area, creating spaciousness in the bathroom.


屋顶花园被设想为一个外面的 "房间",位于后面的倾斜屋顶容积中。旧屋顶的一部分被保留下来,形成了一个有盖的露台。体积的现有外墙被保留下来,给位于大型建筑群中间的花园带来一种亲密的感觉。通过原有的窗户开口,可以看到周围的房屋和花园的微妙景色。通往屋顶花园后面的露台的玻璃路径为底层建筑办公室提供了必要的日光。由于屋顶花园在顶层的高度,树冠覆盖在花园平台上。屋顶花园是一个树屋。
The roof garden is conceived as an outside ‘chamber’, located in the back pitched roof-volume. A part of the old roof remained and creates a covered terrace. The existing outside walls of the volume have been left untouched, giving a feeling of intimacy to the garden, located in the middle of the large building block. Through the original window openings, subtle view towards the surrounding houses and gardens. The glass path towards the terrace in the back of the roof garden provides the necessary daylight to the underlying architecture office. Thanks to the height of the roof garden at the top floor, the crown of the trees canopy over the garden terrace. The roof garden is a tree house.













Architects: AUX bureau voor architectuur en stedenbouw
Area : 260 m²
Year : 2018
Manufacturers : Novy, Hotbath
Lead Architects : Wouter Vanheste, Thomas De Roeck
Structural Engineering : BSTK
Lighting Design : AUX
Roof Contractor : T-WOOD
Kitchen Contractor : HUIS MORTIER
Contractor Wooden Windows : DEVOS
City : Ghent
Country : Belgium