白松树的中庭 - 白松树遗址位于首尔市钟路区通贵洞35-17号以西,那里曾经有一棵宏伟的松树。这棵树曾被称为韩国最大的松树,在1991年死亡之前一直被指定为自然纪念物。过去留下的是它的树桩和后来种植的几棵草皮树。三棵两年的油麻地松树桩站在老树桩旁边,为沿着狭窄的小巷行走的人带来偶然的乐趣,最大限度地体现了西村地区特有的行走体验。
An Atrium for the White Pine - The white pine tree site, located west of 35-17 Tongui-dong, Jongno-gu, Seoul, was where a magnificent pine tree used to stand. Once known as the biggest of its kind in Korea, the tree had been designated as a natural monument until it died in 1991. What’s left of the past are its stump and a few more lacebark trees that were planted afterward. Three stumps of two-year-old lacebark pine trees stand next to the old stump to bring a serendipitous pleasure for those who walk along the narrow alleys, maximizing the walking experience unique to the Seochon district.




砖厂延伸到通贵洞35-17号的场地上,完全包容了这个见证了近200年城市建设历史的老休息区。附属于树状场地,创建了一个花园以自然地连接小巷,花园与圆形建筑中心的池塘上分层的庭院相连。
Brickwell stretches over the site of 35-17, Tongui-dong, and wholly embraces the old resting area which has witnessed the history of the city’s construction for nearly 200 years. Attached to the tree site, a garden was created to naturally connect the alleys, and the garden joins a courtyard layered over a pond in the center of the rounded building.


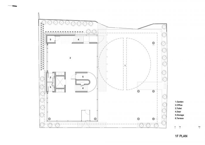
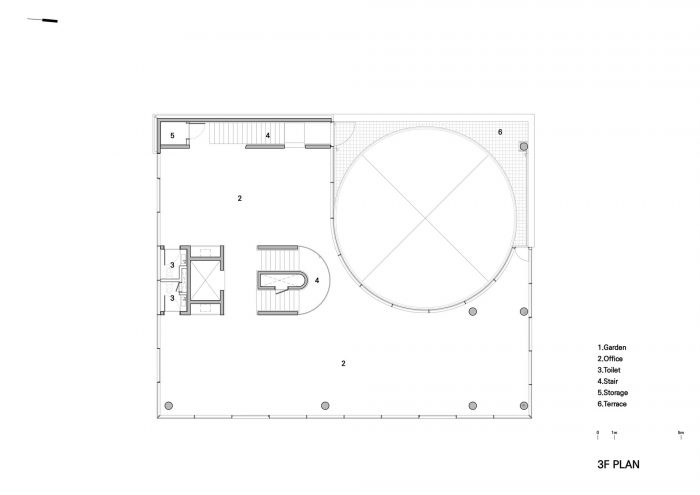
上升的花园--与树址相邻的花园,通过用piloti漂浮在第一层,作为一个与白松树桩结合的花园而扩展,同时,上升到建筑的上部中庭。花园还通过其在东侧小巷的连续性,在piloti下创造了一种深刻的森林感。直径10.5米的中庭既面向内部空间,也面向二、三、四层内的外侧露台。沿着中庭的路径,一个不同的花园感被创造出来。
Rising Garden - The garden adjacent to the tree site, created by floating the first floor with piloti, expands as a garden united with the white pine stump and at the same time, rises to the upper atrium of the building. The garden also creates a deep sense of forest under the piloti by its continuity from the alley on the east side. The 10.5-meter diameter atrium both faces the interior space and outer terrace in half within the second, third, and fourth floors. Along the path of the atrium, a different sense of garden is created.



上升的花园--与树址相邻的花园,通过用piloti漂浮在第一层,作为一个与白松树桩结合的花园而扩展,同时,上升到建筑的上部中庭。花园还通过其在东侧小巷的连续性,在piloti下创造了一种深刻的森林感。直径10.5米的中庭既面向内部空间,也面向二、三、四层内的外侧露台。沿着中庭的路径,一个不同的花园感被创造出来。
Landscape Framed by Flat Ceilings and Floors - The space of each floor is defined by concrete ceilings and floors exposed by a flat slab structure. In order to keep the ceiling without any pipings passing by, a separate space for air-conditioning facilities is provided and the form of a flat slab structure is exposed as it is without any beam. Through these, the courtyard can be faced anywhere in the 75py square plane. The horizontal opening within the slab frames the landscape outside the building, and especially on the third floor, the scenery of Inwangsan Mountain passes through the courtyard and enters the interior space.



砖块内的可能性--项目中使用的材料大多是三种结构材料;裸露的混凝土、黄色花岗岩和砖块。砖块通过建筑方法的变化定义了内部和外部的交流方式,包括传统的砖块砌筑、压为瓦片和覆土。
The Possibility within Bricks - The materials used in the projects are mostly three types of structural materials; exposed concrete, yellow granite, and brick. Bricks define the internal and external communication methods through variations of construction methods including traditional brick masonry, pressing as tiles, and cladding.




























Architects: Society of Architecture
Area : 996 m²
Year : 2020
Photographs :Kyungsub Shin
Design Team : Yerin Kang, Chihoon Lee, Minseong Lee
City : Jongno-gu
Country : South Korea