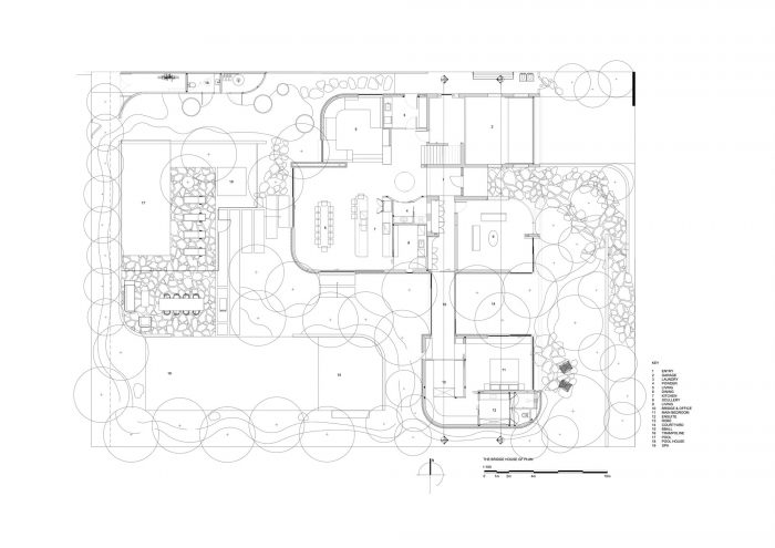
位于现代主义的考菲尔德,原始结构是一个双层的,20世纪70年代的分层住宅,需要重新设计。参照该住宅的现代主义风格,同时为一个不断增长的家庭设计一个现代的扩建项目是设计方案的关键,但随着南部第二块土地的收购,开始时的单地块双层扩建项目演变成了双地块单层扩建项目。景观设计师在设计阶段就参与其中,以确保扩大的场地有一个综合的视野。
Located in Modernist Caulfield, the original structure was a double-storey, the 1970s, split-level residence in need of reimagining. Referencing the home’s Modernist beginnings while designing a contemporary extension for a growing family was key to the brief but, with the acquisition of the second parcel of land to the south, what began as a single-site, double-storey addition morphed into a double-site, single-level extension. Landscape architects were engaged early in the design phase to ensure an integrated vision for the expanded site.




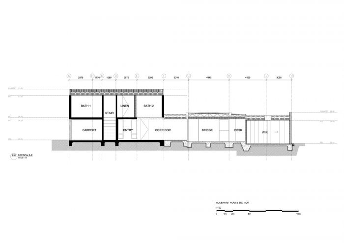
作为一个主要的回应,原来的混凝土外墙细节已经从原来的建筑上延伸开来,形成了主撤退的 "皮肤"。摒弃了传统的策略,即在后面增加一个双层楼,这个主翼由地面上的私人玻璃桥进入。一个弯曲的护罩将主床从邻居的视线中隐藏起来,但保持了与自然和光线的联系。- 这是一个贯穿始终的优先事项。
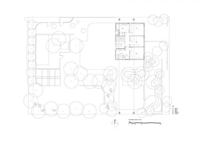
As a primary response, the original concrete façade detail has been stretched away from the original building to form the ‘skin’ of the master retreat. Eschewing what has become a conventional strategy, that is, to add a double storey to the rear, this master wing is accessed by a private glass bridge at ground level. A curved shroud conceals the main bed from the neighbors’ view but maintains a connection to nature and light. – a priority throughout.


模糊现有结构和新结构之间的区别是一个有意的策略,旨在创造一个统一的建筑实体。一个曾经黑暗的、封闭的地下阁楼,原有的、高架的入口被重建,以创造一个新的、地面的门厅,在原有的拱门后面,光线充足,与景观相连。住宅内的空间--宽敞的厨房、休息室、下沉式客厅和玻璃餐区--被划分为最大限度的多功能性和花园方面,从而为整个家庭提供了一个避风港,从公共区域到私人区域,从内部到外部,都能轻松过渡。
Blurring the distinction between the existing structure and the new was a deliberate strategy designed to create a unified architectural entity. A once-dark, enclosed undercroft, the original, elevated entry was rebuilt to create a new, ground-level foyer, light-filled and linked to the landscape, behind the original arches. Spaces within the home – the generous kitchen, lounge, sunken living room, and glazed dining area – are delineated to maximize versatility and garden aspects, resulting in a haven for the entire family, with easy transitions from public to private zones, inside and out.


普遍的审美是新与旧之间的微妙平衡:白色的混凝土地板与原始的水磨石和明亮的蓝色毛绒地毯相遇,木材衬里包围着室内,烧焦的橙色天鹅绒沙发点缀着房屋的历史。下沉坑中的定制青铜玻璃和植绒地毯也是如此。原有的玻璃天窗已被放大,并被包裹在一个木材衬里的天花板中,与自然相联系。
The prevailing aesthetic is a nuanced balance of old and new: white-on-white concrete flooring meets original terrazzo and bright blue plush carpet, timber lining envelops the interiors and burnt orange velvet couches nod to the home’s history. So, too, do the custom-bronze glass and flocked carpet in the sunken pit. The original glazed skylight has been scaled up and wrapped in a timber-lined ceiling to link with nature.

天窗最大限度地减少了对人工照明的需求,这只是整个项目采用的可持续发展原则之一。太阳能电池板、热水和游泳池加热抵消了日常能源的使用,以及广泛的绝缘、高性能双层玻璃和外部百叶窗。裸露的混凝土地板内的综合地暖在冬季作为一个热库,而混凝土在夏季保持凉爽的表面。雨水被收集起来用于冲洗厕所和灌溉景观。改性包覆材料实现了混凝土的外观和感觉,而没有昂贵的、不环保的原位混凝土。
Skylights minimize the need for artificial lighting and are but one of the sustainable principles adopted throughout. Solar panels, hot water, and pool heating offset daily energy use, as well as extensive insulation, high-performance double glazing, and external blinds. Integrated floor heating within the exposed concrete floor acts as a heat bank during winter while the concrete maintains a cool finish in summer. Stormwater is collected to flush toilets and irrigate the landscape. Modified cladding materials achieve a concrete look and feel, without the expensive, non-environmentally friendly in-situ concrete.

作为一个家庭住宅,房屋和花园的分散增强了在家工作的潜力,通往主人休息区的玻璃走廊被证明是一个很好的休息区。当他们的孩子在花园里玩耍或嬉戏时,客户都可以不受干扰地在家工作。在宽阔的郊区街区,新建筑敏感地将当代家庭生活与一个著名时代的建筑遗迹相结合。多功能的设计体现了亲水原则,注重与景观的联系和灵活的生活,同时也加强了现有的住宅。
As a family home, the spreading out of the house and garden enhances the work-from-home potential, with the glazed corridor to the master retreat proving to be an excellent pacing area. The clients can both work from home uninterrupted while their children play in the garden or rumpus. On its generous suburban block, the new build sensitively integrates contemporary family living with an architectural relic of a celebrated era. The versatile design embodies biophilic principles, focusing on connection to landscape and flexible living, whilst also enhancing the existing home.























Architects: Kister Architects
Area : 375 m²
Year : 2021
Photographs :Peter Bennetts
Manufacturers : Franke, Godfrey Hirst, ILVE, Laminex, Lysaght, Miele, Mondoluce, ROGER SELLER, Sirius, Toucan, Ventech, AWL, Anthony Lynch, Artedomus, Bellevue Architectural, Byzantine, Caesar Stone, Creative Windows, Don Currie Carpets, Fyber Carpet
Builders : Basis Builders
Landscape Architect : Acre Studio
Interior Design : Kister Architects
Lighting Design : Kister Architects
Electrical : True South Electrical
Landscaping : Form Landscaping
Design Architect : Ilana Kister
Documentation : Danielle Fedden
Joinery : Evolve Joinery
Styling : Jess Kneebone Styling, Jess Kneebone Styling