BTT之家位于托莱多市/PR的一个安静的森林住宅区,那里的景观在所有的地块方向都建立了自然的壁画。建筑物的植入旨在捕捉这些方面的精华。客户是一对夫妇和一个年幼的儿子,希望增加家庭人口。主要需求是创造舒适和宽敞的空间来接待客人。由此,我们在一楼创建了一个社交区,包括客厅、餐厅和厨房,所有这些都是一体的,但在方便的时候可以被分割。所有这些房间,除了相互沟通外,还通过大的滑动玻璃门向外开放,打开后,室内和室外之间的限制就消失了。
The BTT House is located in a quiet wooded residential area in the city of Toledo/PR, where the landscape builds natural murals in all the plot directions. The implantation of the building aimed to capture the best of these aspects. The clients are a couple and a young son with the desire to increase the family. The main demand was to create comfortable and spacious spaces to receive guests. From this, it was created a social area on the ground floor consisting of a living room, dining room, and kitchen all integrated but with the possibility of being divided when convenient. All these rooms, besides communicating with each other, are also open to the outside through large sliding glass doors, which, when opened, dissolve the limits between interior and exterior.





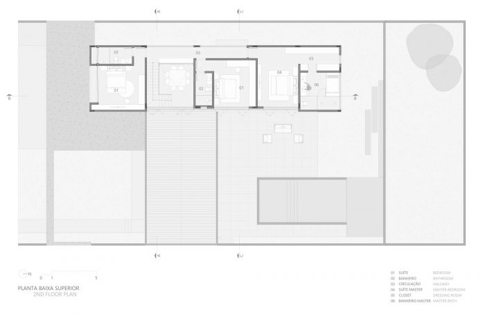
二楼是住宅的私密区域,由三个大卧室组成。这层楼被组织成一个纯粹的体量,由一个Muxarabi虾架标记,它提供了隐私,同时允许光线和通风渗透到它的空隙中。这样的元素给墙壁和地板带来了独特的设计,这些设计是由每天早晨的光和影形成的。
The second-floor refuges the intimate area of the residence, consisting of three large bedrooms. This floor is organized in a pure volume marked by a muxarabi shrimp holder, which gives privacy while allowing the light and ventilation to permeate its voids. Such elements give the walls and floor unique designs formed by light and shadow every morning.



选择的施工方法是实现项目愿望的根本。预应力板结构允许大跨度,从而使空间更干净。为了构成周围的景观,自然材料被优先考虑。木材是房子的主角,它出现在所有空间,有时在地板上,有时在天花板上,在内部和外部区域。另一种广泛使用的材料是天然石材,有各种形式的装饰。除了建筑项目外,我们的团队还负责室内和照明项目。通过这种方式,我们有可能从房子的创建开始就把它作为一个整体来考虑。
The construction method chosen was fundamental to materialize the wishes of the project. A prestressed slab structure allowed large spans, resulting in cleaner spaces. To compose the surrounding landscape, natural materials were prioritized. Wood is the main protagonist of the house, it is present in all spaces, sometimes on the floor, sometimes on the ceiling, in the internal and external areas. Another widely used material was the natural stone, in various forms of finishing. In addition to the architecture project, our team was responsible for interior and lighting projects. In this way, it was possible to think about the house as a whole since its creation.













Architects : Salamanca Arquitetos
Area : 380 m²
Year : 2021
Photographs :Eduardo Macarios
Manufacturers : Alutol, Artemol, Cadeiras Rosa, Coral, Decorações Marisa, Drenopar, Palimanan, Portinari, Produtos de Impermeabilização, Renomad, Revestone, Rodapé de Aluminio, Royal Pedras, Tomadas e Interruptores, Viscardi
Lead Architects : Carlos Eduardo Salamanca, Gabriela Maria Pastório
Landscape Project : Espaço Brasil Paisagismo
Landscape Execution : L&L Paisagismo
Sounding : HC Geo Infra
Exposed Slab Waterproofing : I.Eng do Brasil
Painting : Frank Augusto Angelo
Hydraulic Execution : Hidráulica Perusso
Contractor : RF Klein Construtora
Infraestrutura De Ar Condicionado : Artec
Country : Brazil