Buckle Street Studios位于伦敦Aldgate East社区,是一幢13层的新建筑,由103套紧凑型公寓、一个夹层联合办公空间、一个咖啡馆、会议室和一个概念店组成。Grzywinski+Pons从头到尾设计了该建筑,以及所有的内部装修和大部分家具。这个城市填充区是一个密集的、不同规模和风格的建筑组合的一部分。
Buckle Street Studios, located in the Aldgate East neighborhood of London, is a new thirteen-story building comprised of 103 compact apartments, a mezzanine co-working space, a coffee shop, meeting rooms, and a concept store. Grzywinski+Pons designed the building from the ground up as well as all of the interiors and much of the furniture. The urban infill site is part of a dense and varied assemblage of buildings in both scale and style.



低层的遗产建筑与当代的高层建筑直接相邻。在规划过程中,我们与市政当局一起工作,以确保我们的设计在质量和衔接上都能达到期望的建筑中介作用。我们认识到我们有责任考虑到场地内更大的城市背景,我们指定了材料并定义了我们的形式语言,以缓和从较小的历史建筑到较新的高层建筑的建筑跳跃。
Low-rise heritage structures sit directly adjacent to contemporary high-rises. During the planning process, we worked alongside the municipal authorities to ensure our design fulfilled the aspired role of architectural intermediary both in mass and articulation. Cognizant of our responsibility to consider the larger urban context of our site, we specified materials and defined our formal language to temper the architectonic jump from the smaller historic buildings to more recent tall developments.

我们采用了放射状的转角,并将方案的大部分结构负荷转移到一个表现主义的双高抛物线拱门上,使建筑柔和地坐落在其街区内,同时从邻近街道上的传统建筑的圆头窗、拱形檐口和圆角四角中汲取灵感。我们决定将我们的建筑体量分成三个部分来阐述。虽然小楼板的限制排除了实际的形式上的后退,但我们在整个建筑的地层中采用了戏剧性的但有序的材料变化来定义一个脚踏板和皇冠。这种分层的方法也使建筑在上升过程中变得更加明亮和透明。
We employed radiused corners and transferred much of the scheme’s structural load to an expressionistic double-height parabolic arch at grade to make the building sit softly within its block all the while drawing inspiration from the round-headed windows, arched cornices, and rounded quoins of the heritage buildings on the neighboring streets. We decided to articulate our building’s mass in three sections. While the constraints of a small floor plate precluded actual formal setbacks, we employed dramatic but ordered material shifts throughout the building’s strata to define a pediment and crown. This tiered approach also allows the building to become more light and transparent as it rises.


我们的建筑基座是由锈蚀的、镀镍的金属板组成的,是我们对渐进式有序尺度的现代诠释。所有三层建筑的门窗都由相同的镍饰面金属组成,阁楼面板作为窗台盖和艺术性的通风栅栏,同时协调了分层立面。在这个门廊上方,我们使用了暖灰色的手绘水纹砖,在门廊处有凸出的士兵课程,在门冠底部的材料转变下方有凸出的檐口。砖砌的窗台和其他过渡性的细节设计使本来就质地丰富的表皮更有深度。
The base of our building is clad in rusticated, nickel-finished metal panels composed in our modern take on a progressive ordered scale. The fenestration on all three building tiers is comprised of the same nickel finish metal and the coffered panels serve as spandrel covers and artful ventilation grilles while harmonizing the stratified facade. Above this pediment, we used a warm grey hand-laid water-struck brick with projected soldier courses at the spandrels and a projected cornice below the material shift at the base of the crown. The brick spandrels and other transitional detailing imbue the already richly textured skin with even more depth.

建筑物的冠部被设计成与底部同样的比例,并完全由玻璃砖包覆。我们指定了一种带翅膀的玻璃砖(翅膀用于隐藏灌浆缝),它具有热效率,漂亮的发光效果,并且像下面的砖一样,具有质地、重力和持久性。当从内部照明时,房间里微妙的、弥漫性的光亮柔和地使皇冠变得生动。体积给人以坚实和短暂的感觉,居民对内部空间的激活产生了自然的动感光芒。
The diaphanous crown of the building was designed to be equally proportionate to the base and is clad completely in a glass block. We specified a winged block (the wings serve to hide the grout joints) that is thermally efficient, beautifully luminous, and like the brick below, has texture, gravity, and permanence. The subtle, diffuse luminance of the rooms when lit from within softly animates the crown. The volume feels solid and ephemeral all at the same time and the activation of the interior spaces by residents yields a naturally kinetic glow.


为了获得最大的热能和声学效率,皇冠的围护结构是一个双墙组件,外墙既是窗台又是护墙。我们提高了护墙,以完全覆盖屋顶上的所有设备,同时其半透明性产生了一个扩散的、温和的建筑顶部到天空的终端。能够同时设计外部和内部,为我们提供了一个很好的机会,利用我们创造的建筑优势,从内部和外部策划一个真正的综合体验。在项目的公共空间,这种由内而外的整合是最基本的。
For maximum thermal and acoustic efficiency, the crown’s envelope is a twin-wall assembly with the outer skin acting as both spandrel and parapet. We raised the parapet wall to completely cover all of the equipment on the roof while its translucency generates a diffuse and gentle termination of the top of the building into the sky. Being able to design the exterior and interior simultaneously afforded us a great opportunity to capitalize on architectural advantages we created and curate a truly integrated experience from within and without. In the public spaces of the project, this integration from the inside out is fundamental.



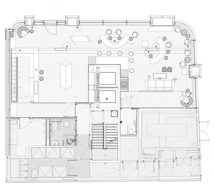
这些区域的主要组织元素是抛物线拱门。通过广阔的玻璃窗,从街道上可以看到,它也支持和定义了夹层内的双高空间,同时巩固了上面建筑前半部分的负荷。结构上的表现主义被一个综合的木制栏杆和凹槽镶板、粘土灰泥饰面、礼服窗帘和软家具所软化。地板和固定的细木家具的裙边用与建筑外墙一致的砖块包覆。
The principle organizing element of these areas is the parabolic arch. Legible from the street through expansive glazing, it also supports and defines the mezzanine within to the double height space at grade while consolidating the load of the front half of the building above. The structural expressionism is softened with an integrated timber balustrade and fluted paneling, clay plaster finishes, dress curtains, and soft furnishings. The floors and skirtings of fixed joinery are clad in brick congruent to the building’s facade.

我们用瓷器和玻璃包覆的菱形体创造了玻璃橱窗,以展示和提升概念店的精选商品,并在其周围摆放了弧形长椅、沙发和软凳,以促进人们的逗留。这个空间,就像玻璃柜里的东西一样,位于艺术和商业的十字路口。这个空间包括画廊、休息室、咖啡馆、零售概念和起居室,它向街道招手,既欢迎又令人费解。我们希望,路人会感到不得不走进去,进一步辨别它到底是什么,然后感到自由自在,待上一段时间。
We created vitrines from rhombic volumes clad in porcelain and glass to display and elevate the curated merchandise of the concept store and surrounded them with curved banquettes, sofas, and soft stools that promote lingering. The space, like the contents of the vitrines, lies at the crossroads of art and commerce. Equal parts gallery, lounge, coffee shop, retail concept, and living room, the space beckons to the street and is as welcoming as it is inscrutable. It is our hope that passers-by will feel compelled to come inside to further discern what, exactly, it is, and then feel free to get comfortable and stay a while.


在皇冠上的公寓里,发光的玻璃覆层的所有诱惑力和实用性都赋予了室内的优势。建筑物的低铁玻璃和镜面反射侧墙放大了空间的温暖和亮度。我们用巨大的波浪形窗帘、粘土石膏墙和交叉锯木地板来平衡它们的光泽卡特尔式的严谨。Ultrasuede软垫和茂盛的床上用品进一步确保了房间的舒适性,因为它们是标志性的。
In the apartments in the crown, all the allure and utility of the luminous glazed cladding confers advantages to the interiors. The low iron glass and specular reflective sidewalls of the blocks amplify the warmth and brightness of the space. We balanced their glossy cartesian rigor with prodigious billowing curtains, clay plaster walls, and cross-sawn timber floors. Ultrasuede upholstery and lush bedding further insure the rooms are as comfortable as they are iconic.

在建筑的低处,这些有机材料的质地和深度被来自窗户的定向集合光放大,我们将其定位为最大限度地扩大视野和减少忽视。我们还设计了家具,暗中将小空间组织成不同的活动区域。我们从船舱中获得了一些灵感,那里的质量和舒适度超越了紧凑的比例。通过将奢华的定制沙发与床相连,并设计出紧凑的分层桌、浅色的线性架子和悬挂的木质托盘,有效促进功能的必要性产生了一种综合的美感,并设法让人感到奢华。调色板:胭脂色的粘土、鼠尾草、木材、黄麻、奶油色的石头和天鹅绒般的中性色,进一步促进了工作室的毛绒绒的安宁感。
Lower in the building, these organic materials have their texture and depth amplified by the directional pooled light from windows we positioned to maximize views and mitigate overlook. We also designed the furniture to implicitly organize small spaces into areas for disparate activities. We took some inspiration from the cabins of boats where quality and comfort transcend compact proportions. By linking sumptuous custom sofas to beds and designing compact tiered tables, shallow linear shelves, and hanging timber trays, the imperative to efficiently facilitate functionality yielded a comprehensive aesthetic that manages to feel luxurious. The palette: blush tinted clay, sage, timber, jute, creamy stone, and velvety neutrals, further contribute to the plush serenity of the studios.

对于我们,作为建筑师,以及我们的客户,这个项目也促进了公共和私人、居民和游客之间同样的城市和个人的审视。这种融合是伦敦许多最成功和最有活力的社区的根本所在。一个神秘而诱人的公共空间锚定了联合办公空间和公寓式酒店房间,创造了一个包容和诱人的环境,社区和游客可以在其中相互交流,相互启发。
For us, as architects, and our client, this project also furthers the equally urban and personal interrogation between public and private, residents and visitors. This blend is the very stuff of so many of the most successful and vital communities in London. An enigmatic yet alluring public space anchoring co-working spaces and aparthotel rooms create an inclusive and inviting context from which the community and visitors can interact with and inspire one another.









Architects: Grzywinski+Pons
Area : 3530 m²
Year : 2022
Photographs :Nicholas Worley
Manufacturers : Artek, Catalano, Hakwood, Laufen, Luceplan, Mutina, CEDIT, FLOS
Lead Architects : Matthew Grzywinski, Amador Pons
Structural Engineers : Manhire Associates
MEP Consultant : Applied Energy
General Contractor : Bennett
City : London
Country : United Kingdom