当我们在充满声音的校园里感受到一片寂静,或在明亮的空间里感受到黑暗时,我们的感官就会打开。在这个空间时间里,一种无声的力量向我们强烈地示意。釜山外国语大学教堂的设计意图是创造一个面向整个校园的剪影,这代表了学校的意识形态。
Our senses open up when we sense a silence in a campus filled with sound, or when we feel darkness in a bright space. In this space time, a soundless force strongly gestures to us. Intension of the design for the BUFS(Busan University of Foreign Studies) Chapel is to create a silhouette towards the entire campus, which stands for the ideology of the school.





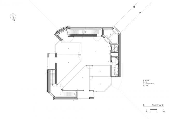
一个十字架"、"一个剪影 "和 "一束光 "成为中心概念,使其成为唯一的存在。这个唯一的空间通过对周围环境的开放创造了新的关系。虽然它并不位于校园的死角,但由于光线充满了周围的空间,带来了神圣的气氛,它有望成为人们心中的中心。
'One cross', ‘one silhouette', and 'one light' became the central concept to make this a one and only being. The one and only space creates new relationships by opening itself up to the surroundings. Although it is not located on the dead center of the campus, it is expected to be the center of one's heart as the light fills up the surrounding space, which brings a holy atmosphere.

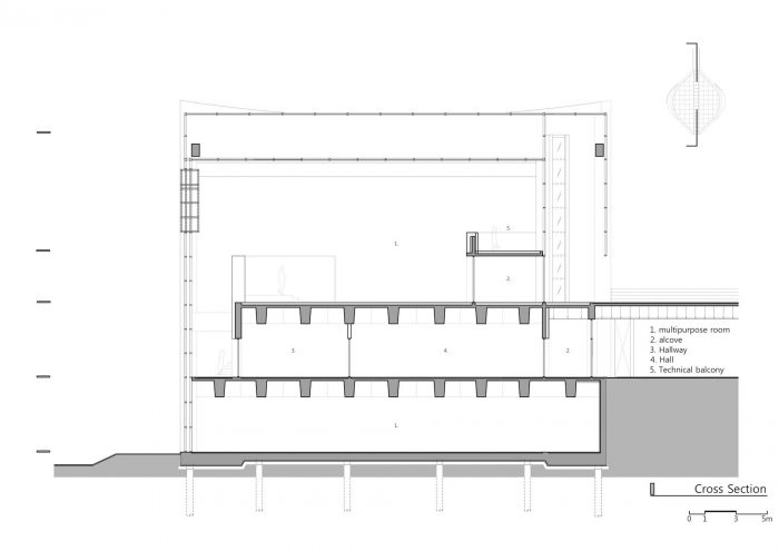
揭示山的能量的体积将成为一个对象,这将强调意识形态。我们通过内部和外部的材料来揭示结构,并调整华夫饼干的结构,以创造 "一个 "的空间。我们只允许砖头--它覆盖了整个校园--、白墙,以及坐在森林山顶上的物体。桥和巨大的门成为象征 "一个 "的物体,并为用户提供方向。
The volume which reveals the energy of the mountain will become an object, which will emphasize the ideology. We revealed the structure through the materials of interior and the exterior and adapted the waffle slab structure in order to create space of 'the one'. We only allowed bricks-which covers the whole campus-, white walls, and the object to sit on the top of the forest hill. The bridge and the massive door become and object that symbolize the one, and offers the direction of the users.























Architects: Architects Group RAUM, Nikken Sekkei
Area: 495 m²
Year: 2014
Photographs: Yoon Joon-hwan
Electrical Engineer: LJ ENC
Construction: Wooho Construction Co.Ltd
Structural Engineer: In Structure Engineering
Mechanical Engineer: Jung Ang EMC
Electric Engineer:LJ ENC
Site Area:144,916.30 sqm
Gross Floor Area:1,249.31 sqm
Building To Land Ratio:18.82 %
Floor Area Ratio:66.23 %
Building Scope:4F
Client:Educational foundation Sung-ji School
Design Team:No Jung-min, Ha Jeoung-un, Kim Dae-won, Yu Seong-cheol
City:Busan
Country:South Korea