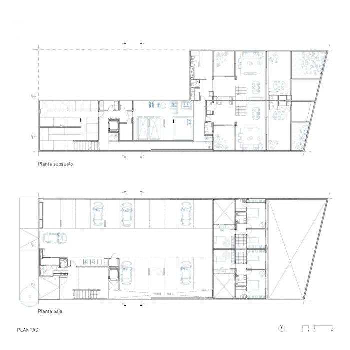
La Vecindad Santos Dumont住宅楼位于布宜诺斯艾利斯Chacarita附近的街区中心的双倍地段。它是一栋住宅楼,具有多种类型和大型的私人和公共户外空间,与分段策略一起,解决和定义了该建筑群的使用。
La Vecindad Santos Dumont housing building is located on a double lot in the center of the block in the neighborhood of Chacarita, Buenos Aires. It is a residential building with a wide variety of typologies and large private and common outdoor spaces that, together with section strategies, resolve and define the use of the complex.





一楼的入口大厅,一楼的中央庭院,以及楼梯和不同的花坛,形成了建筑步行的形式,成为居住在该建筑群的特点。
The entrance hall on the ground floor, the central courtyard on the first floor, and the stairs together with the different flower beds generate the paths in the form of an architectural walk that characterize the way of inhabiting the complex.


该建筑采用裸露的钢筋混凝土、石膏、铝制木工,公共区域的循环墙面采用原地制作的花岗岩包层,实心部分的铁制品涂成白色,木制细节出现在入口大厅。
The building is built in exposed reinforced concrete, plaster, aluminum carpentry, and granite cladding made in situ for the circulatory walls in the common areas, ironwork in solid sections painted white and wooden details appear in the entrance hall.



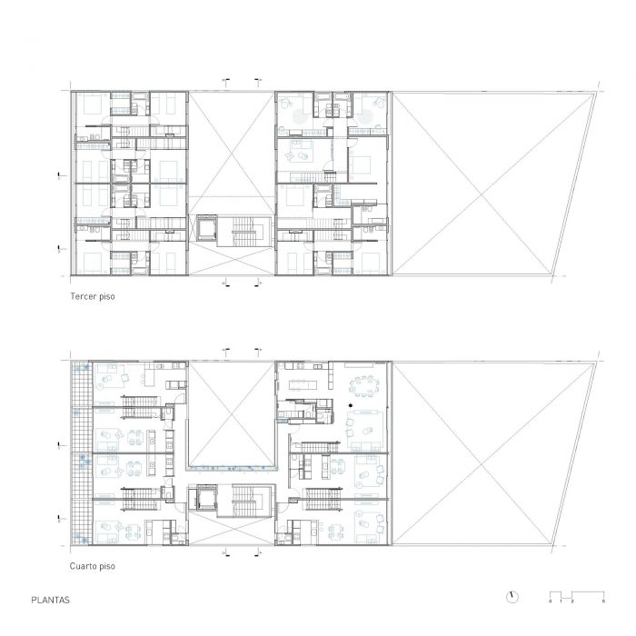
这项工作是工作室在中低层建筑区的集体住房系统方面工作的结果和延续,也是对城市景观和当代生活形式之间关系的反思。
This work is the result and continuity of the studio's work in relation to collective housing systems, in low and medium fabric areas, and its reflection on the relationship between the urban landscape and the forms of contemporary living.



从体积和类型学工作开始,空间性、物质性和光线的关系和口径是定义这项工作的3个轴。
Starting from the volumetric and typological work, spatiality, materiality, and light in their relationship and caliber are the 3 axes that define this work.









































Architects: Cottet Iachetti Arquitectos
Area : 26910 ft²
Year : 2021
Photographs :Javier Agustin Rojas
Manufacturers : Carpinterías de Aluminio, Huup, Moltrasio, Monolitic, Roca, Tortuga, thin compact
Architects In Charge : Carlos Cottet, Victoria Iachetti
Collaborators : Cristian Jaume, Melina Cocordano, Renán Rivas
Executive Documentation And Construction Management : Santiago Carrera
Developer : Compañía de Inversión y Desarrollo
Landscaping Project : Laura Trotti
Sanitary Facilities Advisor : KPL Arquitectos
Lighting Advisor : Pablo Pizarro
Structural Calculation : José Zaldua, Rodrigo Saura
Program : Edificio de viviendas y estudios profesionales
City : Chacarita
Country : Argentina