Irrigacion 93(I93)坐落在Irigacion大道和Presa Santa Rosa的拐角处,位于墨西哥城发展最快的社区之一。该物业面积为216平方米,灵感来自于现代建筑,并以独特的生产方式设计,极大地利用了原材料。内部有三套住宅公寓,空间的设计充分利用了每个角度,满足了租户的所有需求。
Irrigacion 93 (I93) sits on the corner of Irrigacion Avenue and Presa Santa Rosa, in one of the fastest growing neighborhoods in Mexico City. At 216 square meters, the property is inspired by modern architecture, and designed with a unique approach to production that makes great use of raw materials. With three residential apartments inside, the space is designed to take full advantage of each angle, meeting all the tenants’ needs.





I93由笔直、干净的线条组成,为空间提供了一个意向性和强烈的存在感。你会注意到混凝土的使用,从整个地下室的框架中脱颖而出,在建筑的所有三个层面上,提供了微妙的口音和结构。
I93 consists of straight, clean lines, that provide the space with an intention and strong presence. You’ll notice a use of concrete that stands out from the basement all throughout the framing, in all three levels of the building, providing subtle accent and structure.

这个项目的一个值得注意的方面是所使用材料的简单性;混凝土、黑色块和铁,沿着两个主要的外墙突出。另一个决定性的特点是使用核心的垂直循环,存在于建筑的体积中。垂直循环将3层划分开来,同时根据你所站的位置,为配置引入不同的视角。最后,空间的通风设计保持了原有的垂直窗户,使空气感觉非常自然。
One noteworthy aspect of this project is the simplicity on material used; concrete, black block and iron, which stand out along the two main facades. Another defining characteristic is the use of the core vertical circulations, present in the building‘s volume. Vertical circulations divide the 3 levels while introducing a different perspective to the configuration depending on where you stand. Lastly, the ventilation of the space is designed to keep the original vertical windows, keeping the air feeling very natural.

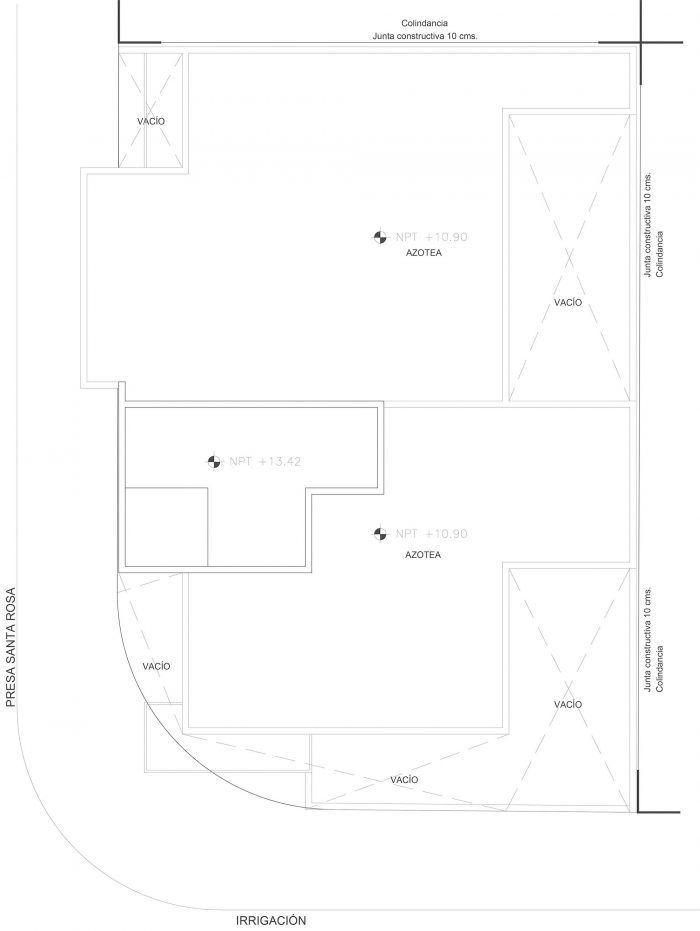
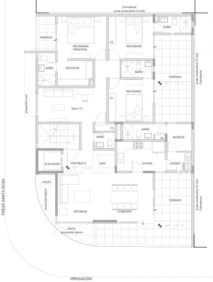
转到每个公寓的内部,几乎所有的浴室、卧室和客厅都有自然光和通风,要求我们的客户希望达到的舒适程度。每套150平方米的公寓包括3间卧室(每间都有自己的完整浴室),一个书房或办公室,一个半浴室,一个客厅或餐厅,一个厨房,一个服务区和房间,以及阳台和一个额外的开放空间。1号公寓与其他公寓略有不同,它有两个额外的天井,使其内部有一种宽敞的感觉。2号和3号公寓在屋顶上有一个私人的开放空间,给每个公寓带来了独特的附加价值。
Moving to the interiors of each apartment, practically all the bathrooms, bedrooms and living rooms have natural light and ventilation, demanding the level of comfort that our client wanted to achieve. Each 150 sqm apartment consists of 3 bedrooms (each with its own full bathroom), a study or office, a half bathroom, a living room or dining room, a kitchen, a service area and room, as well as balconies and an additional open space. Standing slightly apart from the others, Apartment 1 has two additional patios, which contribute a feeling of spaciousness to its interior. Apartments 2 and 3 have a private open space at the roof top, giving each a unique added value.



正如我们的许多项目一样,修饰工作包括尽可能地美化环境,私人屋顶,当然还有尽可能地使用天然材料。
As in many of our projects, finishing touches include landscaping where possible, private rooftops, and of course the use of natural materials as much as possible.

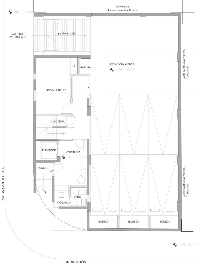
最重要的是,I93有一个停车场结构,比人行道低半层,租户可以在那里找到24小时监控、停车场、人行道通道,以及供房主利用的多功能空间。
To top it all off, I93 has a parking structure half a level below the sidewalk where tenants can find 24-hour surveillance, parking, pedestrian sidewalk access, and a multipurpose space for homeowners to take advantage of.















Architects: Wolff - Yapur
Area: 670 m²
Year: 2019
Photographs: Herman Schumacher, Mauricio Salas
Manufacturers: AutoDesk, 77 Design, Adobe, Fortaleza, Global Woods, Grupo JOBEN, Helvex, Illux, Inzpira, Jardin Josefita, Leslie, Merik, Metta arquitectos, Moctezuma, Perdura, Porcelanite, Soluciones en piedra Franco, Trimble
Lead Architect: Yair Wolff, Erik Yapur, Roberto Yañez, Hugo Cuevas, Javier Sepulveda, Jair Valdes
Design Team:Adriana Vega, Selene Yamilet Medina
Engineering:Fernando Callejas Sanchez
Landscape:Alejandro Vargas
Collaborators:Pramvala
City:Mexico City
Country:Mexico