背景/位置
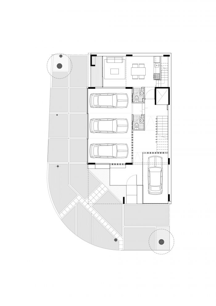
P 4402是一个集体住房建筑,位于Saavedra社区,在Av. 多纳多,更确切地说,是在Av. Gral. Paz和Panamericana的交叉口。它有六个居住单元,位于一个8x14米的小角落里。位于一个非典型的街区,有R2 B1分区的限制,是一个中等的住宅结构,也有可能在整个物业中进行建设。
Context / Location
P 4402 is a collective housing building that is located in the neighborhood of Saavedra at the exit of Av. Donado, more precisely, at the intersection of Av. Gral. Paz and Panamericana. It has six habitat units in a small corner lot of 8x14 meters. located in an atypical block with the limitations of the R2 B1 zoning of a middle residential fabric and that also has the possibility of building in the whole property.


该建筑试图完成最大的可建体积,提出了一个强有力的混凝土块,由一系列打孔的平面形成,重构了外部的体积感,产生了向外墙周边的渗透性扩展,包括允许光线进入建筑的公共空间的露台。
The building tries to complete the maximum buildable volume proposing a forceful block of concrete formed by a series of perforated planes that reconstructs an exterior volumetry, generating permeable expansions towards the perimeter of the facade, including the terrace that allows the entrance of light inside the common spaces of the building.

配置/连贯性
该区块有四层高度,被建议作为一个单一材料围护结构的外部合成配置,它允许通过一系列破坏、穿孔、增加和分割体积的操作进行形态学实验。这些操作产生了不同的情况,提供了校准的空间质量,使栖息地单元多样化。
Configuration / Consistency
The block has four levels of height and is proposed to the exterior as a synthetic configuration from a mono-material envelope, which allows to investigate through a morphological experimentation with a series of operations of undermining, perforations, additions and splits of the volume . These operations generate diverse situations that provide calibrated spatial qualities that allow to diversify the habitat units.



这些程序,与寻找材料和敏感的实验相结合,试图提供一个重要的内部空间,在一天的不同时间,将光线过滤到私人和半公共空间。
构造/材料
外部结构和围护结构采用现浇混凝土,形成具有一定渗透性的表皮,用水平排列的木质模板将其具体化。暗挖操作是以一种可变的方式进行的,允许亮度和不透明度的交替和渐变。
These procedures, in conjunction with the search for a material and sensitive experimentation, try to provide a vital interior spatiality, filtering light into both private and semi-public spaces, at different times of the day.
Tectonic / Materiality
The exterior structure and envelope was executed in in-situ concrete, forming a skin with certain degrees of permeability, which was materialized with horizontally arranged timber formwork. The undercut operations were executed in a variable manner allowing alternations and gradients of luminosity and opacity.



分隔墙、公共内部和服务门楣采用了精选的普通砖,这些砖可以看到平齐的接缝,提出了一个与外部非常不同的内部质地。
The dividing walls, the common interiors and the service lintels were executed with selected common bricks, which are visible with flush joints, proposing an interior of textures very different from the exterior.

在这个项目中,我们致力于开发一个材料调查,在这个调查中,用户可以体验到一个非常规的氛围,就像一个连续的光线过滤,建筑的空间关系和它的材料质量。
In the project we set out to develop a material investigation, in which the user experiences an unconventional atmosphere, something like a continuous filtering of light, spatial relationships of the building and its material qualities.


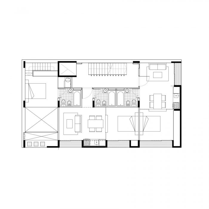
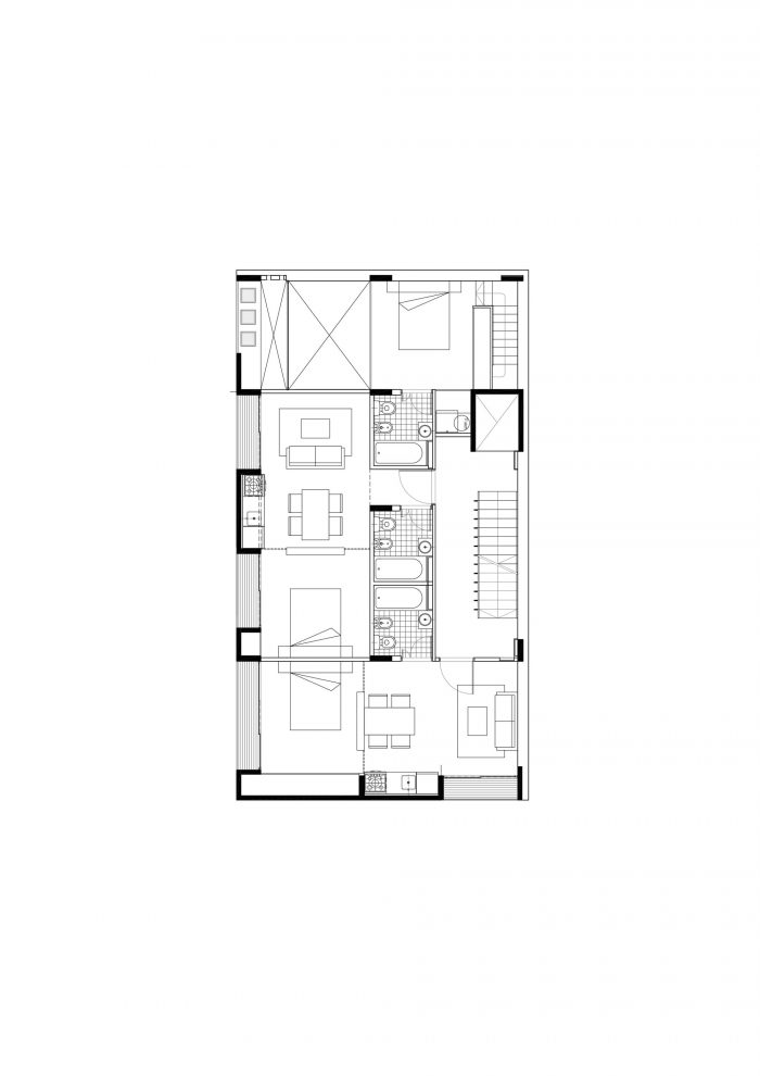
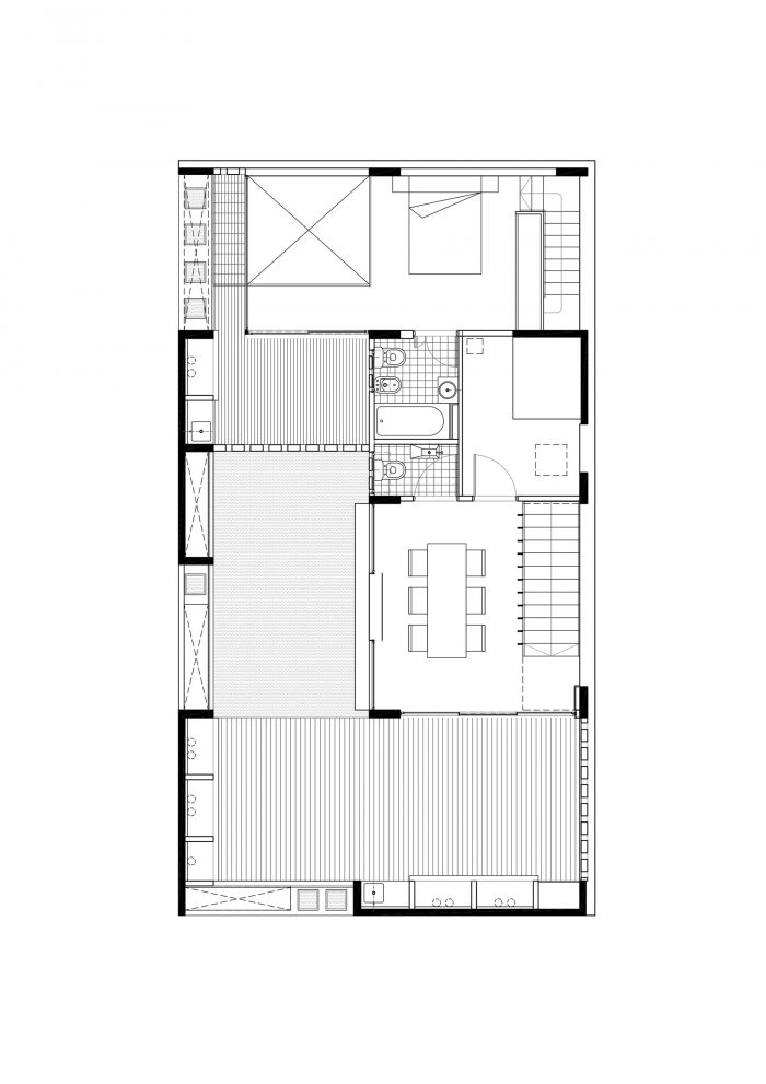
组织/布局
作为一个组织性的综合体,该提案与一系列的同心电梯有关。外部电梯是包含了烹饪、储存和有盖或半盖的扩展空间的用途。中间的生命线是发展生活、睡眠和学习用途的地方,这也是其中最不确定的。最后,内部电梯是为了解决服务、私人和清洁。
Organizational / Disposition
As an organizational synthesis, the proposal is organized in relation to a series of concentric lifts. The exterior lift is the one that contains the uses of spaces for cooking, storage, and covered or semi-covered expansions. The intermediate lifeline is where the uses of living, sleeping and studying are developed, which is the least determined of them. Finally, the interior lift is the one that is intended to solve the services, private and cleaning.

外部电梯是促进形态多样性的电梯,当根据楼层移动时,会产生一个特殊的外墙,导致外墙厚度的增加,突出了单一材料混凝土块的强度。
The exterior lift is the one that promotes a morphological diversity, when moving according to the levels, and generates a particular façade causing a thickening in the thickness in the facade that accentuates the strength of the mono-material concrete block.


所有的居住单元都有其相关的扩展空间(阳台和露台),它们被安排在生活空间的周围,在物业的中心留下一个核心,用于出口和服务,从屋顶上的孔顶照亮。
All the habitat units have their places of expansion (balconies and terraces) relevant, which are arranged around the living spaces, leaving a nucleus in the center of the property destined to the means of exit and services, which are illuminated from the top of holes on the roof.



建议/结果
在角落里的小块土地上的项目的特殊性,以及在布宜诺斯艾利斯市的建筑法规允许的范围内增加体积的可能性,使我们能够从真空操作中研究某些逻辑,从而对建筑对象进行有趣的操纵。
Proposals / Result
The particularity of projecting in a small lot in the corner and the possibility of exacerbating the volume allowed by the Building Code of the city of Buenos Aires, allows us to investigate certain logics from operations with vacuum, resulting in an interesting manipulation of the architectural object.


该项目在其体积配置、材料分辨率和拟议的空间安排之间追求一种辩证关系,为某种主动的紧张关系留下了空间,作为在项目层面产生知识的一种探索。
The project pursues a dialectic between its volumetric configuration, the material resolution and the proposed spatial arrangement, leaving room for a certain proactive tension as a search to produce knowledge at the project level.


















Architects: Arqtipo
Area : 360 m²
Year : 2017
Photographs :Federico Kulekdjian
Manufacturers : Ceramicos Syria, Construser Alvear, Corralón Tramontana AST, Domec, Maderera Vagol, Pocellanatos Ilva, San Martin
Author Architects : Diego Martín Aceto, Darío Litvinoff
Construction Director : María Cecilia Giménez
Project Manager : María Cecilia Giménez
Other Participants : María Cecilia Giménez,Lucas Gorroño, Martin Giani
Architect In Charge : Estudio Arqtipo
City : Buenos Aires
Country : Argentina