VDL 3532是一个项目,它阐明了一个具有遗产保护的财产的价值,在通道和外墙,有一个居住单元和专业研究的建筑,它适应当代的生活方式,其特点是可变性和不确定性。它的背景是一个异质的建筑结构,有一个开放的苹果之肺。
VDL 3532 is a project that articulates the value of a property with patrimonial protection, in the access and the facade, with a building of habitat units and professional studies, which adapt to contemporary ways of living, characterized by variability and Indeterminacy It is located in a typical block of the Belgrano neighborhood, which complies with the regulations of district R2b1. Its context is a heterogeneous building fabric, with an open apple lung.


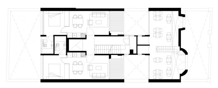
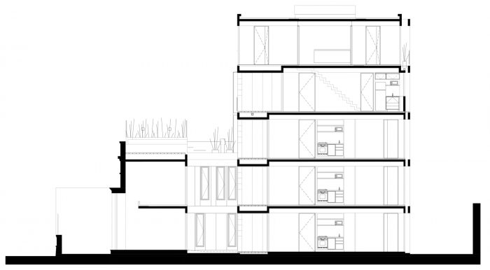
提出了两个通过循环连接的体量,它们交织在一起并产生所需的多孔性和空间性,这挑战了外部视觉切线和最大建设性能力之间产生的项目可能性,从而提出了多种方法和玩法。该提案假设调查前存在和新存在之间、社会和私人之间(公共使用和私人使用之间)的辩证关系。
Two volumes linked through the circulations are proposed, which intertwine and generate the desired porosity and spatiality, which challenge the projectual possibilities that are generated between the external visual tangent and the maximum constructive capacity, thus proposing multiple approaches and approaches to the play. The proposal assumes to investigate the dialectic between preexistence and the new, between social and private (between public uses and private uses).


第一卷与原始建筑的分割相吻合。它作为一个支撑结构介入,解决了通道大厅和多功能单元,保留了原有的高度并保持了与边界建筑的关系。它把原来的材料(和形式)的价值,与那些所进行的干预的特点互补。
The first volume is coincident with the partition of the original construction. It intervenes as a bracing structure that solves the access hall and the multipurpose unit, which preserves the original height and maintains the relationship with the border constructions. It puts in value the original materials (and forms), which are complemented with those that are characteristic of the intervention carried out.



后部的体量在外部语言上是中性和纯粹的,达到了分区的极限高度。它最大限度地提高了各单元的照明和通风。它结合了一些材料,如钙质马赛克和内部的木质包层,这些材料以非传统的方式排列,使它们的关系复杂化,在遗产和现代建筑的协同作用下,将该作品理解为一个多读的单元。
The posterior volume is neutral and pure in its external language, reaching the limit height of the zoning. It maximizes the lighting and ventilation that is obtained for the units. It incorporates some materials such as calcareous mosaics and wood cladding inside, which arranged in a non-traditional way, complicate their relationships, in a synergy between heritage and contemporary construction, to understand the work as a unit of multiple readings.

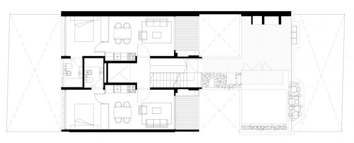
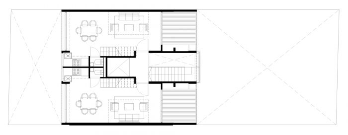
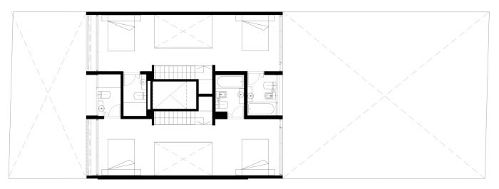
该建筑建议缓慢地通过公共和私人关系的梯度,提出了一个访问大厅,将多功能单元与商业办公或咖啡目的地联系起来。底层和第一层的单元获得了一定程度的灵活性,允许容纳专业研究或可分割的单体环境。上层有更大的居住单元,从复式楼到双高楼,允许在围护结构内进行扩展和变化。
The building proposes to pass slowly the gradients of the public-private relationship, proposing an access hall that links the multipurpose unit with commercial coworking or coffee destination. The ground floor and first level units acquire a certain degree of flexibility and allow to house professional studies or divisible mono environments. The upper floors have larger habitat units, from duplexes with double heights that allow extensions and variations within the envelope.

循环核心允许进入公共露台,在那里进行社交和娱乐活动。将后部体量完全分离的意图是一个战略的一部分,它允许拟议的栖息地单元获得正面-反面的关系,这改善了它们的质量、通风、照明和更灵活的安排。
The circulation core allows access to the common terrace where social and recreational activities take place. The intention of completely separating the back volume is part of a strategy that allows the proposed habitat units to obtain a front-counter-front relationship, which improves their quality, ventilation, lighting and more flexible arrangement.



























Architects: Arqtipo
Area : 482 m²
Year : 2018
Photographs :Federico Kulekdjian
Manufacturers : Patagonia Flooring, Aserradero Vagol, Construser Alvear, NOI ESTUDIO, Sanitarios San Martín, Triangular
Lead Architects : Diego Aceto, Darío Litvinoff
Project Responsible : Mercedes Pérez Wodtke
Project Manager : Lucas Gorroño
Collaborators : Germán Capiello, Martin Giani, Catarina Staric, Leonardo Pulzoni
City : Núñez
Country : Argentina