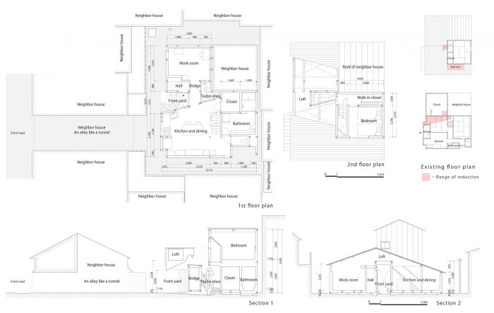
我们将京都特有的一条窄巷后面的长屋改造成了房子。虽然这里是京都市的中心,但古老的长屋依然存在。这座建筑位于一条 "隧道小巷 "的尽头,它贯穿了整个建筑。那里的建筑密密麻麻,居民共享私人道路、电线、水井、神社等等。我们设计了一个既能为当地环境做出贡献又能保证居民隐私的建筑。
We have renovated a Nagaya in the back of a narrow alley peculiar to Kyoto as a house. Although it is the center of Kyoto city, the old Nagaya remains. This building is at the end of a "tunnel alley" that runs through the building. Buildings are densely packed there, and residents share private roads, electric wires, wells, shrines, and so on. We designed a building that contributes to the local environment while ensuring the privacy of the inhabitants.







我们把它缩减为一个朝向现有长屋中心的三角形。结果,在Nagaya内部创造了一个三维的外部空间。我把它连接起来,创造了一个可以从屋内欣赏的花园和一个面向小巷的花园。虽然房子约60平方米,但它有柔和的自然光,居民可以享受丰富的风景。
We reduced it to a triangle towards the center of the existing Nagaya. As a result, a three-dimensional exterior space was created inside Nagaya. I bridged it and created a garden to enjoy from inside the house and a garden facing the alley. Although the house is about 60m2, it has soft natural light and residents can enjoy the rich scenery.

这个建筑是为两对夫妇设计的城市住宅。古董家具和陈设,是居民的爱好,一字排开。生活的中心是餐厅/厨房。从那里,有一个通过桥梁和阁楼连接的工作区。在二楼有一个紧凑明亮的卧室。我们在密集的小巷后面的小排屋里为居民实现了一个世界。
This architecture is an urban house for two couples. Antique furniture and furnishings, which are the hobbies of residents, are lined up. The center of life is the dining/kitchen. From there, there is a workspace connected via a bridge and a loft. There is a compact bright bedroom on the second floor. We have realized a world for residents in a small row house in the back of a dense alley.







Architects: ENDO SHOJIRO DESIGN, td-Atelier
Area: 67 m²
Year: 2021
Photographs: Matsumura Kohei
Manufacturers: Rinnai, Adobe, Jw-CAD, LIXIL , Panasonic, TOSHIBA, YAZAWA
Lead Architects: Tada Masaharu, Endo Shojiro
Construction: Fuzisaki Gumi Company Limited
Landscape: Michikusa
Landscape Design:Ogasahara Satoru
City:Kyoto
Country:Japan