布瑞尔收藏馆是欧洲最好的博物馆之一,位于战后苏格兰极少数的A类建筑中。 其异常丰富的收藏包括9000件跨越6000年的美术和装饰艺术作品。
The Burrell Collection is one of Europe’s finest museums housed in one of the very few Category-A listed post-war Scottish buildings. Its extraordinarily rich collection consists of 9,000 works of fine and decorative arts spanning 6,000 years.


1983年,它被安置在一个广受好评的博物馆建筑中,该建筑由三位年轻的剑桥大学建筑学者--巴里-加森、布里特-安德森和约翰-穆尼耶设计。这座开创性的20世纪建筑由红色邓弗里郡砂岩、抛光混凝土、不锈钢以及木材和玻璃组成,占据了离格拉斯哥市中心四英里的波洛克乡村公园的一片绿荫。2016年,代表格拉斯哥市议会提供文化、体育和学习活动的慈善机构--格拉斯哥生活,任命约翰-麦卡斯兰+合伙人为建筑师和景观设计师,领导博物馆的五年改造和提升。
In 1983 it was housed in a critically acclaimed museum building designed by three young Cambridge architect-academics - Barry Gasson, Brit Andresen, and John Meunier. Made of red Dumfriesshire sandstone, polished concrete, stainless steel, and timber and glass, the seminal 20th-century building occupies a sylvan setting in Pollok Country Park four miles from central Glasgow. In 2016, Glasgow Life, the charity that delivers cultural, sporting, and learning activities on behalf of Glasgow City Council, appointed John McAslan + Partners as architect and landscape designer to lead the museum’s five-year renovation and enhancement.



John McAslan + Partners与一个专家团队合作,专注于三个关键的项目目标:通过 "结构优先 "的翻新方法,无缝修复建筑并改善其环境性能;加强建筑的公园环境;以及,经过仔细考虑,打开内部的选定区域,通过画廊衔接水平和垂直运动,以便在任何时间都能欣赏到更多的收藏品。
Working with a team of specialists, John McAslan + Partners focussed on three key project aims: to seamlessly repair the building and improve its environmental performance by a “fabric first” approach to its renovation; to strengthen the building’s parkland setting; and, after careful consideration to open up select areas of the interior to articulate the horizontal and vertical movement through the galleries, so that a greatly increased proportion of the collection can be enjoyed at any one time.


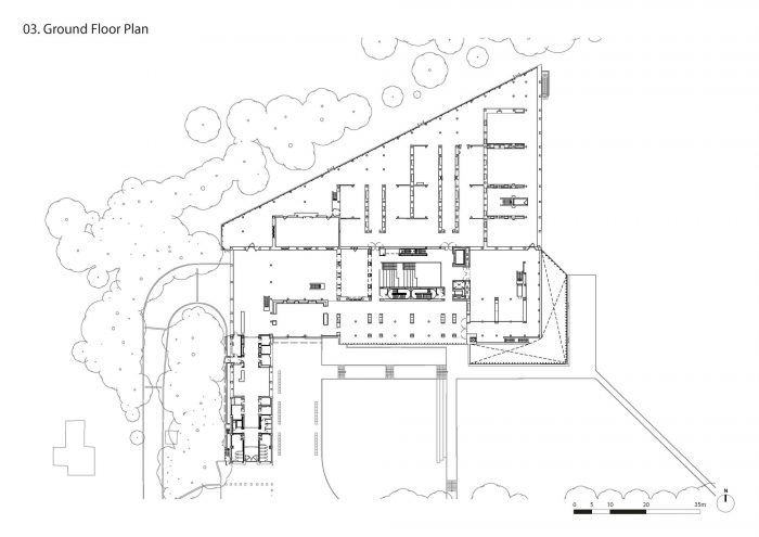
设计。在保留的现有入口的东面增加了一个独立的入口,从相邻的铺面广场进入,创造了一个增强的自然环境,游客也可以在这里放松或野餐,或从东南角的咖啡馆溢出来。毗邻入口处,一个新的方向性体量将博物馆各层连接到夹层画廊,并通过一个阶梯式的座位安排下到下面新开放的花园层。后者现在容纳了一个展览和活动画廊,与一个可观赏的艺术存储空间、工作室、重新焕发活力的咖啡馆和公园用地相连。
The Design. A discrete entrance has been added to the east of the retained existing entrance accessed from an adjoining paved piazza that creates an enhanced natural setting where visitors can also relax or picnic or spill out from the café at its southeast corner. Adjoining the entrance sequence, a new orientation volume connects the museum levels up to the mezzanine galleries and down by a stepped seating arrangement to the newly opened-up garden-level floor below. The latter now accommodates an exhibition and events gallery connected to a viewable art storage space, workshops, the rejuvenated café, and parkland beyond.


John McAslan + Partners为The Burrell设计了景观。这是由John McAslan + Partners的景观和城市设计工作室负责人Andy Harris领导的。他介绍说:"建筑、公园和林地之间的关系是20世纪80年代原始设计方案中的一个标志性叙述。 我们对景观的'更新'尊重了最初的设计理念,同时仔细整合了新的元素,以吸引新一代的游客。"
John McAslan + Partners designed the landscape for The Burrell. This was led by Andy Harris, Head of John McAslan + Partners’ Landscape and Urban Design Studio. He describes the practice’s approach, “The relationship between building, parkland, and woodland was an iconic narrative in the original 1980s design proposal. Our ‘updating’ of the landscape respects the original design vision whilst carefully integrating new elements to engage with a new generation of visitors..”



回到画廊,游客将遇到现在按主题策划的藏品,并使用沉浸式叙事作为藏品博物馆学的指导性愿景。 总的来说,在以前的安排基础上,现在又增加了35%的画廊空间,而且绝大部分藏品都在现场进行了无障碍储存,并协助其轮换。更新后的布瑞尔收藏馆获得了英国建筑性能评估体系(BREEAM)的优秀评级,使该博物馆进入了英国节能建筑的前10%,这对于一个A类名录建筑的翻新和保护来说是一个重大成就。
Back in the galleries, visitors will encounter the collection that is now curated thematically and using immersive narrative as the guiding vision for the Collection’s museography. In total, an additional 35 percent of the gallery space has now been added from the previous arrangement and with the great majority of the collection on-site for accessible storage and to assist with its rotation. The renewed Burrell Collection has achieved a BREEAM rating of Excellent putting the museum in the top 10 percent of energy-efficient buildings in the UK, a significant achievement for the refurbishment and conservation of a Category-A listed building.


































Architects: John McAslan + Partners
Area : 13253 m²
Year : 2022
Photographs :Hufton+Crow
Manufacturers : Kingspan Insulated Panels, Lazenby, Optima, Barrisol, CMS, Guthrie Douglas, Hunter Douglas Architectural, Ronacrete
Lead Architect : John McAslan
Services : Atelier 10
BREEAM : Atelier 10
Planning Consultants : John McAslan + Partners
Landscape Desgin : John McAslan + Partners
Structural Engineer : David Narro Associates
Main Contractor : Kier
Project Manager : Gardiner & Theobald
Acoustic Consultant : Sandy Brown Acoustics
Project Lead : Paul East
Design Team : Chris Ravenscroft, Heather Macey, Katherine Watts, Tom Roberts, Paddy Pugh, Hannah Lawson
Landscape Project Lead : Andy Harris
Landscape Design Team : Celia Guerreiro, Kit Bullas, Kevin Simpson
Client : Glasgow Life
Fire Engineer : Atelier 10
Facades Consultant : Arup
Cost Consultants : Gardiner & Theobald
Access Consultants : David Bonnett Associates
Exhibition Designer : EVENT Communication
Catering Consultant : Jo Headland
Retail Consultant : Seeking State
Wayfinding And Signage : Studio LR
City : Glasgow
Country : United Kingdom