位于泰国最有历史的省份之一,Busaba Ayutthaya是一家由传统泰国老房子翻新的酒店,旨在以更现代和更有趣的方式代表 "泰国"。客户是泰国 "传统服装 "品牌Busaba和提供 "传统口味 "的Busaba咖啡馆的业主,这次他们想把业务扩展到一个新的 "传统生活 "酒店。这是一个挑战,房子是根据长期合同租来的,要求在合同结束后将房子恢复到原来的状态。
Located in one of the most historical provinces of Thailand, Busaba Ayutthaya is a hotel renovated from an old traditional Thai house aiming to represent "Thainess" in a more modern and more interesting way. The client is the owners of Busaba, a Thai ‘traditional clothing’ inspired brand, and Busaba café, which serves ‘traditional tastes, and this time they want to expand the business to a new ‘traditional living’ hotel. It is a challenge that the house was rented under a long-term contract requiring the house to be returned to its original state when the contract ends.




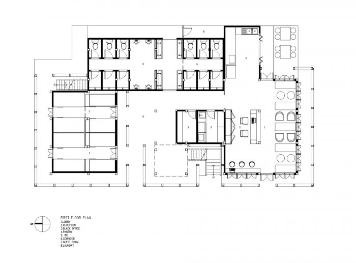
传统泰国房屋的特点之一是分为3个部分,包括腿部,即柱子,身体,即房间,最后是头部,即屋顶。腿部部分基本上是房子下面的一个多功能空间,用来抬高房子,防止雨季时水涌入房子。这个屋下空间可以变成一个闲逛的空间,一个儿童游乐场,一个储藏室,或者,甚至是一个浴室。
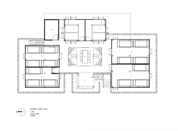
One of the characteristics of a traditional Thai house is that it is divided into 3 parts, including the leg which is the columns, the body which is the rooms, and lastly, the head which is the roof. The leg parts are basically a multi-functional space under the house created to lift the house up to prevent water from flooding into the house during the rainy season. This under-house space can be turned into a hanging out space, a playground for children, a pantry, storage, or, even a bat4hroom.



为了保持泰国房屋的这种独特性,公共区域被放在地面上,柱子与内墙相抵,所以它们仍然可以被看作是泰国房屋的腿部部分,具有屋下空间的功能,而客房大多在二楼。这样的安排让客人体验到在一个真正的传统泰国房子里生活,就像泰国人在过去那样,但在一个现代空间里。
To keep this uniqueness of Thai houses, the common areas are put on the ground level with the columns offset from the interior wall, so they can still be seen as the leg part of a Thai house that has the under-house space functioning, while the guest rooms are mostly on the second floor. This arrangement gives the guest experience of living in a real traditional Thai house like how Thais did in the past but in a modern space.

柱子是立面的一部分,连接着上部、主体和头部,它们被组合在一起,形成了一个与主体结构分离的新形式的泰国房屋立面。中间的屋顶被旋转到与侧面的另外两个屋顶平行,以创造一个面向正面的清晰的立面形象,这成为酒店的标志。
The columns are a part of the façade connecting to the upper parts, the body, and the head, which were combined together making a new form of Thai house façade separated from the main structure. The middle roof was rotated to be parallel with the other two roofs on the side to create a clear image of the façade facing the front which became the hotel's signature.


这个立面使用的材料是金属,这是最近的一种新材料,与房屋的旧木头形成对比,在建筑中形成了一种有趣的混合。图案的灵感来自于泰国传统的墙面图案,但经过了最小化、重新设计和重新安排。在白天,出现在老墙上的金属立面的阴影和影子在上面形成了传统的图案,给人一种过去和现在融合在一起的时间运动的感觉。
The material used for this façade is metal which is a new recent material, in contrast to the old wood of the house, making an interesting mixture in the architecture. The pattern was inspired by the Thai traditional wall pattern but minimalized, redesigned, and rearranged. During the day, shade and shadow from the metal façade that appears on the old wall create the traditional pattern on it, giving the perception of the movement of the time where past and present are blended together.

白色是新的黑色,因为白色现在通常被用来代表现代的、新的和永恒的,所以项目整体使用了白色。此外,白色也是一种中性颜色,允许客人在空间中加入自己的颜色。
White is used overall of the project with the idea of ‘white is the new black, since white is now commonly used to represent modern, new, and timeless. Moreover, white is also a neutral color that allows the guests to add their own color to the space.









Architects: tidtangstudio
Area : 240 m²
Year : 2018
Photographs :W-Workspace
Manufacturers : COTTO, Innova Floor, Sol Brass At Home, TOA, World Ceramic Center
Lead Architects : Pattakorn Thanasanaksorn, Suppat Pornputtkul, Penprapa Sutadsan, Chirapat Chimlek
City : PHRA NAKHON SI AYUTTHAYA
Country : Thailand