Cable之家将一个小的、黑暗的工人小屋改造成一个现代家庭住宅,为密集的城市环境、狭窄的南向场地和遗产背景所带来的挑战找到了优雅的解决方案。
The Cable House transforms a small, dark workers’ cottage into a contemporary family home, finding elegant solutions to the challenges posed by the dense urban environment, narrow south-facing site, and heritage context.





该项目解决了两个看似相互竞争的要求。设计必须为一个年轻的家庭提供明亮、实用的空间,同时对周围地区保持敏感。
The project addresses two seemingly competing requirements. The design must deliver light, functional spaces for a young family, and simultaneously remain sensitive to the surrounding area.

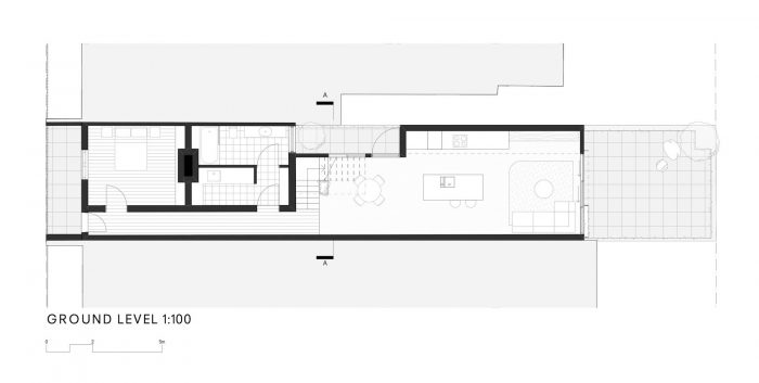
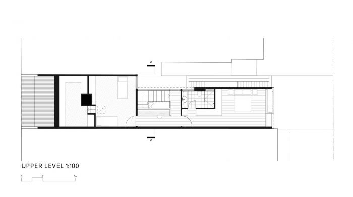
引人注目的屋檐确保了最低点与邻近的房产相邻,这是对规划条例的一个简单而令人信服的解决方案。楼梯上的天窗和厨房上方的天窗将自然光引入生活空间,而餐桌高度的窗户则将用餐空间与东部的小庭院连接起来。
The striking gable roof ensures the lowest points adjoin neighboring properties, a simple yet compelling solution to planning regulations. A skylight over the stairs and another above the kitchen bring natural light into the living spaces, while a window at table-height connects the dining space to a small eastern courtyard.



利用最小的室外空间,植物被整合到建筑中以保持与自然的联系。一个花盆箱被建在外墙上--在钢缆周围生长的藤蔓软化了极简主义的线条,随着时间的推移,将创造一个活生生的绿色外观。
Working with minimal outdoor space, plants become integrated into the architecture to preserve a connection with nature. A planter box is built into the façade – vines growing around steel cables soften the minimalist lines and, over time, will create a living green exterior.

在内部,藤蔓的花盆被包裹在细木工制品中,钢缆构成了栏杆,与外部的钢缆和藤蔓相呼应,并将叶子带入住宅的中心地带。
Internally, a planter for vines is encased in joinery and steel cables form the balustrade, echoing the cables and vines of the exterior and bringing foliage into the very heart of the home.











Architects: Tom Robertson Architects
Area : 230 m²
Year : 2017
Photographs :Tatjan Plitt
Manufacturers : GRAPHISOFT, Made by Morgen
Landscape : Gourlay Landscapes
Design Team : David Ascroft, Tom Robertson
City : Port Melbourne
Country : Australia