该建筑位于Chiclayo的历史中心。它位于党墙之间的一块土地上,平均宽4米,长27米,可以从一条街上进入。现有的土坯建筑没有任何东西可以保留,处于破败状态。两边的高大建筑物要求拆除它,并在该地块上建造新的建筑物。
The building is located in the historic center of Chiclayo. It is located on a lot between party walls, 4 meters wide by 27 meters long on average, with access from one street. Nothing could be preserved of the existing adobe construction, which was in a dilapidated state. The tall buildings on each side urged for its demolition and for a new building on the lot.




客户向我们提出了一个可以适应不同用途的建筑,并可以随着时间的推移进行交换。比起程序,我们必须组织一个空间系统,为多种选择的可能性留出空间:就像一个自由空间再分配的开源代码,保持建筑的完整性和功能。
The clients presented us with a building that could be adapted to different uses interchangeable over time. More than a program, we had to organize a spatial system that left space for the possibility of multiple alternatives: like an open-source code with free spatial redistribution that maintains the integrity and functioning of the building.

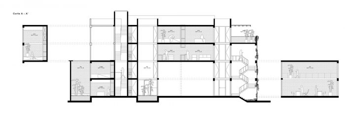
地段的南北朝向和通道的狭窄使建筑很难通过街道立面获得良好的太阳能。这种情况加上在一楼实现隐私的困难,促使我们将建筑远离街道,创造出可以过滤光线和空气的庭院,在街道和建筑之间,在外部和内部气候之间创造一个过渡空间。一系列实用的院子,在冬天捕捉阳光,在夏天为建筑通风。通过这种方式,解决了来自街道的行人通道问题。
The north-south orientation of the lot and the narrowness of the access street made it very difficult for the building to have good solar capture through the street facade. This condition added to the difficulties in achieving privacy on the first floor, led us to move the building away from the street, creating access courtyards that would also filter light and air, creating a transition space between the street and the building, between the exterior and interior climate. A sequence of practical courtyards that capture the sunlight in winter and ventilate the building in summer. In this way, pedestrian access from the street is solved.


入口空间的私密性、光线、空间和热舒适性的特质使建筑可以从头到尾被使用和感知,没有隐藏或残留的空间。这些生物气候空间成为从街道到后面的一连串空间的第一步,提供各种明确区分的条件、特征和属性。
The qualities of privacy, light, space and thermal comfort of the entrance spaces allow the building to be used and perceived from end to end, without hidden or residual spaces. These bioclimatic spaces become the first step in a succession of spaces that run from a street to the back, offering a wide variety of explicitly differentiated conditions, characteristics and properties.

这一系列的空间试图创造一种关于什么是内部和什么是外部的模糊性,但同时,外部空间通过加强植被和无涂层的陶瓷而被有意区分开来,这些陶瓷以其更多的材料和自然存在,设法在一个没有景观的地段创造出不那么驯服的建筑景观。这个空间链的组织与建筑的结构系统密切相关,为此,使用了一个钢筋混凝土墙体系统,在物质上加强了类型学。墙体包容了所有的空间,并限制了空间之间开口的大小和比例,从而使结构从根本上限制了建筑的体验。
The sequence of spaces tries to create a certain ambiguity about what is interior and what is exterior, but at the same time, the exterior spaces are intentionally differentiated by intensifying the vegetation and with the uncoated ceramics which, with their more material and natural presence, manage to create less domesticated built landscapes on a lot with no views. The organization of this chain of spaces is strongly related to the structural system of the building, for this reason, a reinforced concrete wall system that materially reinforces the typology is used. The walls embrace all the spaces and limit the size and proportion of the openings between spaces so that the structure radically conditions the experience of the building.


陶瓷的材质、建筑的纹理、墙壁的厚度、自我调节湿度的能力和热惯性都是伴随每个空间的体验。空间是结构,结构配置空间。
The materiality of ceramics, the textures of the building, the thickness of the walls, the ability to self-regulate the humidity and the thermal inertia are experiences that accompany each space. The space is the structure and the structure configures the space.



不同的节奏和质地实现了一种新的表现力。材料和空间的组织旨在优先考虑建筑的最佳被动行为,首先是保证热稳定性的庭院、穿孔金属板外墙和植被,以及砖砌的隔墙。
A new expressiveness is achieved with the different rhythms and textures. The organization of the materials and the spaces aims to prioritize an optimal passive behavior of the building, starting with the courtyards that guarantee thermal stability, the perforated sheet metal facade and the vegetation, as well as the brick dividing walls.



















Architects: Angas Kipa
Area : 330 m²
Year : 2022
Lead Architects : José Luis Perleche Amaya, Iván Guerrero Ramírez, Raúl Gálvez Tirado, José Algeciras Rodríguez
Proyecto Y Visualizaciones : Juan Diego Santa Cruz Mendoza, Rogger David Montenegro Morocho, Diana Coronel Salazar
Scale Model : Bany Gabriel López Olea, Diana Coronel Salazar
Project Management : Ximena Amorós Seclén, Germán Vásquez Borja
Structural Calculations : Mario Martínez Fiestas
Electrical Installations : Francisco Javier Muro Bautista, José Hugo Fiestas Chávez
Instalaciones Sanitarias : Carmen Teresa Meza Camacho
City : Chiclayo
Country : Peru