CAMPLUS San Pietro是一个学生宿舍,位于罗马市中心,毗邻梵蒂冈城。这座五层楼高的前疗养院的改造包括抗震改造和提高其功能和能源效率。
CAMPLUS San Pietro is a student residence located in the heart of Rome next to Vatican City. This conversion of a five-story building of a former nursing home included seismic retrofitting and improvement of its functional and energy efficiency.




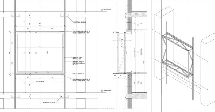
建筑决定让MEP装置可见或部分覆盖,基本方法是试图让结构使用的粗糙未完成的材料有一个优雅的外观,以及固定在墙上的加热板的最小设计和技术外观定义了项目的极简主义风格。
The architectural decisions of leaving the MEP installations visible or partly covered, the essential approach that tries to lend a graceful look to the rough unfinished materials used for the structure, and the minimal design and technical look of the heating panels fixed on the wall defined the minimalistic style of the project.


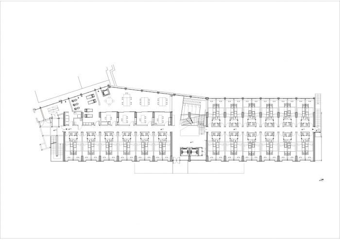
一楼和二楼设有大厅、带辅导用学习隔间的学习区、共享厨房、更衣室、食堂和洗衣区。所有的公共区域都被设计成灵活的空间,以适应动态学生生活所需的任何活动。主楼梯间被拆除并完全重建,除了作为不同楼层之间的连接的主要目标外,还提供了新的社会互动区域。
The ground floor and the first floor host the lobby, study area with study cubicles for tutoring, shared kitchen, locker room, cafeteria, and laundry area. All common areas have been designed as flexible spaces in order to adapt to any activity required by dynamic student life. The main stairwell was demolished and completely rebuild offering in its new version areas for social interaction besides its main objective of serving as a connection between the different floors.


该学生公寓为178名学生提供住宿,可以选择单人间和双人间。所有的卧室都得益于高高的天花板,可以使用高架床作为具有不同功能的优雅金属结构的一部分。因此,床的区域与房间的其他部分有明显的区别,使卧室有一种阁楼的感觉。
This student residence offers accommodation to 178 students with the possibility of choosing between single and double rooms. All bedrooms benefit from high ceilings which allow the use of raised beds as part of an elegant metal structure with different functions. As a result that the bed area is clearly differentiated from the rest of the room giving the bedroom a loft feeling.



建筑物外部的特点是由不同颜色的快速生长的低维护常春藤和固定在建筑结构上的金属网构成的生活立面。在其最高速度下,活立面每年将能够吸收每平方米811公斤的二氧化碳。位于项目西侧的主要花园区域可以从低层直接进入,这要归功于一系列的挡土墙,使得建筑内部和外部可以直接对话。
The exterior of the building is characterized by the living façade formed by different colorful low maintenance ivy types of fast growth and a metal mesh fixed to a structure that is anchored to the building. At its highest pace, the living façade will be able to absorb each year 811 kg of CO2 per square meter. The main garden area located on the West side of the project is accessible directly from the lower floor thanks to a series of retaining walls that allows a direct dialog between the inside and the outside of the building.


停车区是根据城市可持续排水原则设计的,使用雨水花园和排水铺装的车道和路径。该景观项目计划通过将项目的不透水面积从44%减少到15%,以及种植102棵新树来减少全球气候变化的影响,这些树每年可能会吸收22088公斤的二氧化碳。由于前面提到的基于自然的解决方案,每年将有可能吸收约77公斤的有害污染物质和建筑的大部分碳足迹。
The parking area was designed according to the urban sustainable drainage principles using rain gardens and drainage pavers for driveways and pathways. The landscape project plans to diminish the effects of global climate change by reducing the impermeable surface area of the project from 44% to 15% and by planting 102 new trees that will potentially absorb 22 088 kg of CO2 per year. As a result of the previously mentioned nature-based solutions around 77 kg of harmful pollution agents and a substantial part of the carbon footprint of the building will potentially be absorbed each year.












Architects: Roselli Architetti Associati
Area : 4000 m²
Year : 2021
Photographs :Luigi Filetici
Manufacturers : iGuzzini, ATHEA Pavimenti, Contract Arredo Design, Davide Groppi, Homes, Mc.Alf, SMEA
Lead Architects : Riccardo Roselli, Katia Scarioni
Structure : Proges
MEP : Polistudio AES
Landscape : OSA architettura e Paesaggio
Lighting Design : Baldieri srl
Urban Planning : Bioedil Progetti
Project And Construction : Manager Antonio Cesareni
Design Architect : Marta Pagliaccia, Lorenzo Miani, Gianleo Gruosso, Federico Alicanti
Program / Use / Building Function : Student housing
City : Roma
Country : Italy