客户的愿望是完成由于缺乏资源而被放弃的房子。该住宅位于米纳斯吉拉斯州的咖啡种植区坎波斯吉拉斯,必须利用已经建成的墙壁和屋顶进行设计。他们叙述的建筑聚会很清楚:"一个有蓝色窗户的白色农舍,和一张接待朋友和家人的大桌子"。基于这些前提,我们的想法是重视当地文化,特别是通过其家具、手工艺品和配件。
The client's desire was to finish the house that had been abandoned due to lack of resources. Located in Campos Gerais, a coffee-growing region of Minas Gerais, the residence had to be designed using already built walls and roofs. The architectural party told by them was clear: "a white farmhouse with blue windows, and a large table to receive friends and family". Based on these premises, the idea was to value the local culture, especially through its furniture, craftsmanship, and accessories.



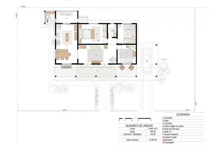
传统 "农舍 "的美学和功能问题意味着对预先设想的空间进行调整和扩展。柴火灶被安置在厨房旁边,以避免房屋的其他房间受到烟雾污染。我们改造了现有的屋顶,以创建入口处的前廊。除了保护阳光和雨水,阳台的比例,以及屋顶的差异,都能赋予米内罗语言的独特性和美学属性。木柱将其重量排放在混凝土基座上,避免与土壤湿度接触。受殖民时期农场的启发,最低屋顶的第一排瓦片被涂成白色--这个细节给项目带来了精致的印象。
Aesthetic and functional issues of the traditional "farmhouse" implied adjustments and extensions to the pre-conceived space. The wood stove was positioned next to the kitchen, to avoid smoke contamination in other rooms of the house. We adapted the existing roof to create the front porch of the entrance. Besides protecting from sun and rain, the proportion of the veranda, as well as the difference of the roofs, are able to attribute uniqueness and aesthetic attributes of the mineiro language. The wooden pillars discharge their weight over concrete bases, avoiding contact with soil humidity. Inspired by colonial farms, the first row of tiles of the lowest roof was painted white - a detail that imprinted delicacy to the project.

为了改善采光,窗户被门所取代,所有的开口都有外部的木板,作为遮光物使用。在公共区域,我们使用了高天花板和暴露的屋顶。用PET瓶制成的半透明瓷砖分布在整个房间里,确保全天的自然采光。
To improve daylighting, windows were replaced by doors, and all openings received external wooden sheets that work as blackout. In the common areas, we used high ceilings with an exposed roof. Translucent tiles, made from PET bottles, were distributed throughout the rooms, ensuring natural lighting throughout the day.

起居室、厨房和烧木头的灶台通过大的开口进行交流。在厨房--米尼拉房子的核心--有一张供全家人使用的桌子和一个帮助准备食物的辅助岛。在墙壁上,盘子和锅子被组织起来,以便于处理。一般来说,所有暴露的物品都有助于 "米内罗装饰"。它们是传统的作品,事实上每天都在使用。
该地产还有马厩,它得到了与主屋相同的语言,还有一个花卉种植园,它被重新组织了。
Living room, kitchen and wood stove communicate through large openings. In the kitchen - the heart of the mineira house - there is a table for the whole family and a support island to help in the preparation of food. On the walls, dishes and pans were organized for easy handling. In general, all the exposed items contribute to the "mineiro decor". They are traditional pieces that are in fact used on a daily basis.
The property also had stables, which received the same language as the main house, and a flower plantation, which was reorganized.

在第一次访问施工现场时,我们发现了几件存放在箱子里的物品,提到了咖啡的管理和牛马的饲养。除此以外,在现场还发现了许多配件。家具是由该地区的供应商和制造商带来的,其中一些是定制的。
During the first visit to the construction site, we found several objects stored in crates, related to coffee handling and cattle and horse breeding. In addition to these, numerous accessories were found on site. Furniture was brought by suppliers and manufacturers from the region, and some of them were custom-made.

因此,可以看出,沉浸在当地文化中对营造米纳斯吉拉斯州的农场氛围有很大贡献。除此之外,还增加了简单和低成本的设计决定,加强了我们使项目适应低投资的做法,保留了美学和功能的品质。
Thus, one can see that the immersion in the local culture contributed significantly to the creation of the Minas Gerais farm atmosphere. In addition to this, simple and low-cost design decisions were added, reinforcing our practice of adapting projects to low investment, while preserving the aesthetic and functional qualities.











Architects: Tadu Arquitetura
Area : 116 m²
Year : 2018
Photographs :João Duayer
Manufacturers : Eliane, Suvinil
Country:Brazil