Can Santacilia是一个3300平方米的住宅项目,有15套住宅和公共区域。它是对位于马略卡岛帕尔马老城中心的两座建筑进行的精心改造。这两座建筑的历史可以追溯到12或13世纪,尽管从塔加曼特广场可以看到的建筑在1576年被登记在城市档案中,名为Can Santacilia。从那时起,这两座建筑经历了几次修改,因此在OHLAB项目之前的现有状态是17世纪的,随后在18世纪进行了改革。此外,这两座建筑在20世纪都经历了改造,目的是将它们分割成几个住宅,因此,我们发现它们与原来的状态相比有很大的变化。
Can Santacilia is a 3,300 m2 residential project with 15 dwellings and common areas. It is a careful renovation of two buildings located in the heart of Palma de Mallorca's old town. The buildings date back to the 12th or 13th century, although the building visible from Plaça Tagamanent was registered in the city archives in 1576 as Can Santacilia. Since then, both buildings have suffered several modifications, consequently the existing state prior to the OHLAB project is from the 17th century, with a subsequent reform in the 18th century. In addition, both buildings underwent alterations during the 20th century aimed at dividing and converting them into several dwellings, as a result, we found them highly modified compared to their original state.




第一个挑战是历史责任,首先是调查不同时期的干预措施,以发现、恢复和赋予主要建筑元素和空间以价值。我们没有试图抹去和隐藏历史上发生的改变,以恢复一个我们并不真正了解的理想的过去,相反,我们试图发现不同的阶段和干预,认识到其中的价值元素。为了使这一操作有效并使建筑重新融入城市的活动中,我们决定更新它们的空间并将其用于21世纪。
The first challenge was that of historical responsibility, which began with the investigation of the different interventions over time to discover, recover and give value to the main architectural elements and spaces. We didn’t try to erase and hide the alterations that occurred throughout history in order to recover an ideal past that we don’t really know, instead we tried to discover different stages and interventions, recognizing elements of value in each of them. In order to make this operation efficient and reintegrate the building into the city’s activity, we decided to update their spaces and use them for the 21st century.


一方面,我们需要一个现代的、舒适的住宅建筑,拥有当代生活方式所需的所有服务和设施。另一方面,我们面对的是一个复杂而分裂的结构,很难与16世纪的受保护的立面和体量相结合。OHLAB改造项目利用现有建筑的复杂性,有可能产生意想不到的空间。干预措施解决了每个房子的分布和个性化的解决方案,与新的公共区域和连接相结合,构成了两个建筑的联合。最终的结果是一个单一的建筑,其独特性建立在对历史本质的恢复和对当代性的承诺上。
On the one hand, a modern, comfortable residential building was required, with all the services and facilities needed for a contemporary lifestyle. On the other hand, we are faced with a complex and divided structure, difficult to integrate with a 16th-century protected façade and volume. The OHLAB renovation project takes advantage of the complexity of existing buildings with the potential to generate unexpected spaces. The intervention solves each house with a distribution and individualized solutions, combined with the new common areas and connections and making up the union of both buildings. The final result is a single building that bases its uniqueness on the recovery of the historical essence and on the commitment to contemporaneity.



自然的、高贵的、当地的材料的选择与新的高贵材料的引入相结合,如古铜器、当地石头、镜面布、瓷器细节、当地亚麻布和棉纺织品。该项目恢复了在上世纪的改革中被改变的入口庭院,恢复了这个空间的古老辉煌。
A selection of natural, noble, local materials is combined with the introduction of new noble ones, such as antique bronze pieces, local stones, mirrored cloths, porcelain details, local linen, and cotton textiles. The project recovers the entrance courtyard that had been altered in the reforms of the last century, restoring the old splendor of this space.




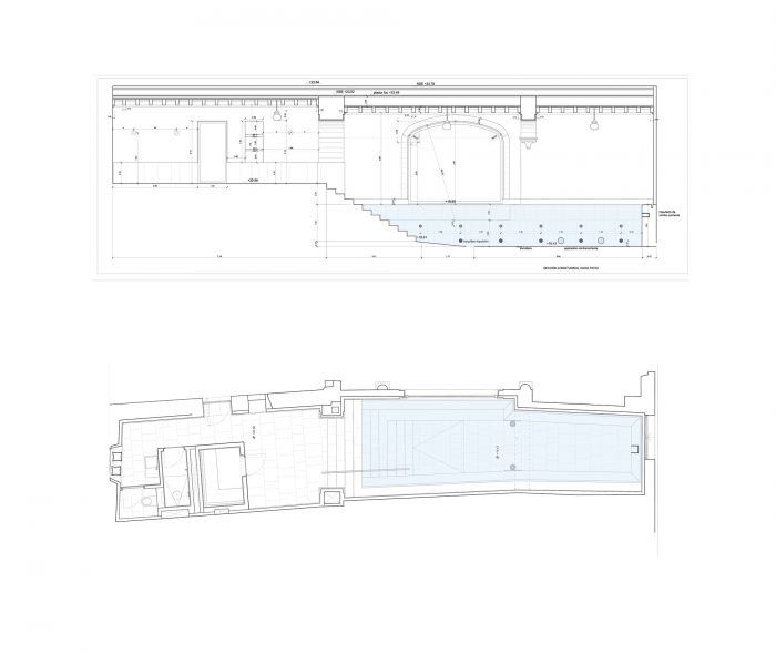
院子成为通往建筑中心的主要入口,与向上的景观露台和公共区域相通,如健身房和直接俯瞰院子的室内游泳池。尽管在受保护的建筑中,历史性的改革意味着建设性的限制,但该项目从一开始就以可持续发展的参数来设计,以最大限度地提高其能源效率,增加热绝缘,照顾到热桥,并使用高效的中央空调系统。
The courtyard becomes the main entrance to the heart of the building, communicating with the landscaped terraces upwards and with the communal areas such as a gym and an indoor swimming pool with a spa that directly overlooks the courtyard. Despite the constructive restrictions that a historic reform implies in a protected building, the project has been designed from the beginning with sustainability parameters, in order to maximize its energy efficiency, increase thermal insulation, take care of thermal bridges, and use an efficient centralized air conditioning system.





















Architects: OHLAB
Area : 3300 m²
Year : 2022
Photographs :José Hevia
Manufacturers : Dornbracht, Miele, Calizas Capellà, Contain, Elevators, Fontini, Wordlight
Structures : AMM Technical Group
Director : Paloma Hernaiz, Jaime Oliver
Team : Rebeca Lavín, Robin Harloff, Maria Bruna Pisciotta, Mercé Solar, Luis Quiles, Silvia Morais, Ángela Suárez, Wiktoria Ginter, Camila Ospina, Pedro Rodríguez, Laura Colomer, Eusebiu Spac, Agustín Verdejo
Building Engineer : Jorge Ramón
Kitchen Design : Espacio Home Design
City : Palma
Country : Spain