房子的地块很窄,有一个明显的坡度。在该房产的前面,有一个自然保护区,覆盖了部分峡谷和河流。
The plot of the house is narrow and has a significant slope. In front of the property, there is a natural reserve that covers part of the ravine and the river.



建筑物是向下发展的,利用房产的自然坡度,所以朝向街道的地方只有一层高于人行道,两层低于人行道。在人行道之上的一层,有卧室、浴室、更衣室和电视室。
The construction is developed downwards, taking advantage of the natural slope of the property, so that towards the street there is only one level above the sidewalk and two below. On the level above the sidewalk, there are bedrooms, bathrooms, dressing rooms, and t.v rooms.


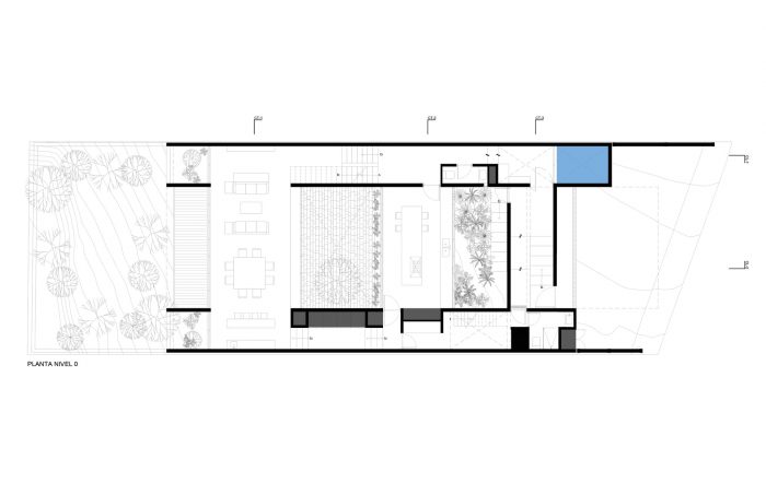
在人行道的下面,是底层的公共区域和厨房。在下面一层,在自然地形上,在客厅下面,建有一个中央天井,里面有一个露天厨房和一个半覆盖的游泳池。
Below the sidewalk level, there is the ground floor with the public area and the kitchen. One level below, on the natural terrain, below the living room, a central patio was built that hosts an open-air kitchen and a semi-covered pool.


建筑物的占地面积仅有100平方米,沿地块两边长的服务和循环区块,这些横向体量保护了房屋的隐私,并接受了悬挂在自然地形上的白色横向体量,使峡谷的地形和植被能够毫无障碍地从整个房屋下面通过。
The building’s footprint is just 100 square meters from the blocks of services and circulations that are along the two sides long sides of the plot, these lateral volumes protect the privacy of the house and receive the white transverse volumes suspended above the natural terrain, allowing the topography and vegetation of the ravine to pass under the entire house without obstacles.


这些白色的体量包含了房子的主要空间,并从侧面向峡谷和内部庭院开放。
These white volumes contain the main spaces of the house and open from side to side towards the ravine and the interior patios.


建筑的结构系统是基于刚性混凝土框架,砖石围墙和由托梁和拱顶制成的板。地基是基于与土地坡度交错的连续地基,并与挡土墙相连。
The structural system of the building is based on rigid concrete frames with masonry enclosing walls and slabs made from joists and vaults. The foundation is based on continuous footings staggered with the slope of the land and connected with retaining walls.


















Architects: Escobedo Soliz
Year: 2023
Photographs:Ariadna Polo
Construction: Taller 499
Landcape Design: PAAR Taller
Lighting Design Consultants: Sombra
Structure: Elizarrarás Ingeniería
Engineering Project: Ro Consultores
City: Naucalpan de Juárez
Country: Mexico