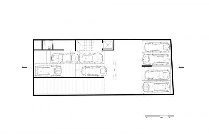
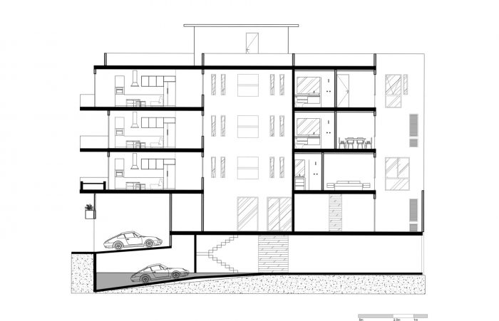
Capulin 59是一个精品住宅楼,位于墨西哥城Colonia del Valle最好的地区之一。建房的土地面积为240平方米,位于一个小公园前面,呈长方形,临街10米。
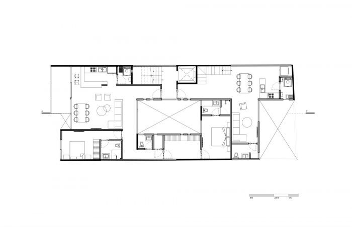
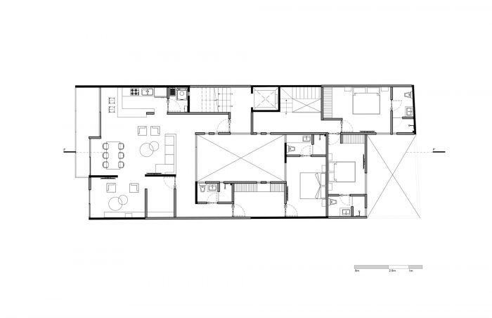
该建筑包括5个公寓单元,3个面向外部,2个内部联排别墅,有私人露台。
Capulin 59 is a boutique residential building located in one of the best areas in Colonia del Valle, Mexico City. The 240 sqm land where the property was built, located in front of a small park, has a rectangular shape with 10 meters street front.
The building comprises 5 apartment units, 3 facing the exterior and 2 interior townhouses with private terraces.




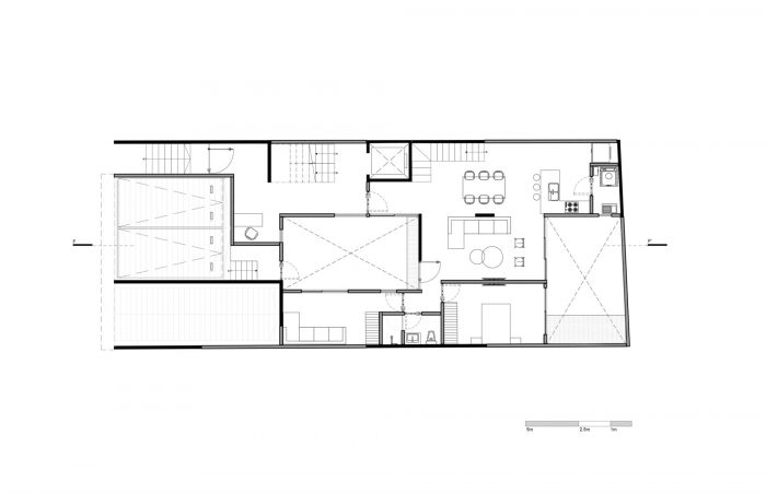
建筑的立面是不规则的,被种植在其中一个公寓里的一棵树分割开来,达到双倍的高度。材料包括:黑钢、大理石、混凝土、木材和绿色植物。
混凝土和大理石等低维护的材料是这个概念化设计的关键,并与室内设计的闪电、结构和简单性相匹配。
The façade of the building is irregular and is divided by a tree planted in one of the apartments that reaches a double height. Materials include: black steel, marble, concrete, wood, and greenery.
Low maintenance materials such as concrete and marble are essential for this conceptualization and match well with the lightning, structure, and simplicity of the interior design.















Architects: ArquiPartners
Area : 900 m²
Year : 2018
Photographs :Mauricio Salas + Cesar Castañedo
Manufacturers : Abitare acabados, Grupo Tenerife, Irkon, Moctezuma, Velsa
Other Participants / Collaborators : Omar Rodríguez Paredes, Victor Reyes Arenas
Collaborators Architects : Diego Ortiz Franyuti, Herreria
Structural Project : Ing. Sergio Barrios Bautista, Clinker
Architects In Charge : Rubén Rodríguez Paredes, Omar Rodriguez Paredes, Diego Diaz Cebado, Marisol Dorantes Castro
City : Ciudad de México
Country : Mexico