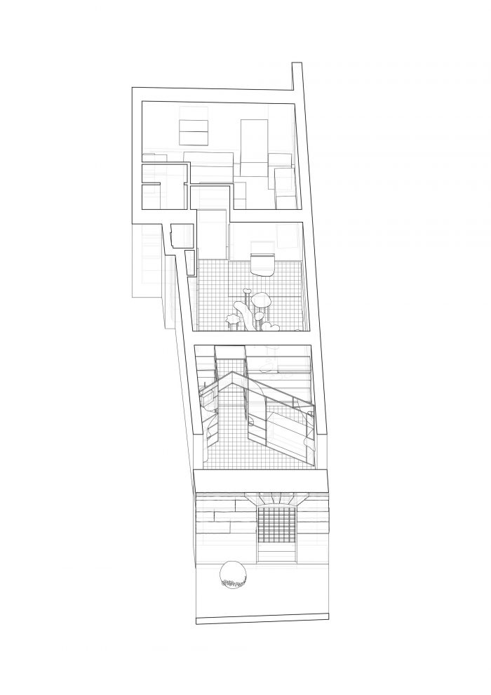
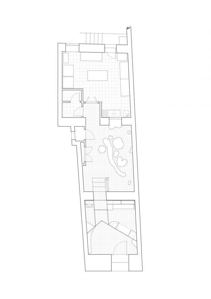
在马德里Chamberí社区的Trafalgar街20号,靠近Plaza de Olavide,这个小型的专业糕点店就位于这里。该建筑项目采用了两个对立的空间操作,我们称之为收缩期和舒张期,它们相互面对和对抗。第一个空间是白色的,小的和收缩的,由一个装备好的家具组成,接待游客并满足客户的所有需求。这个人工制品是折叠的,有多种形式。可以说它是一个柜台,但它也是一个酒吧,一个仓库,一个冰箱,一个烤箱,一个收银机,一个架子,一个垃圾桶,一个咖啡机,一个研磨机,和一个水槽。这个空间是如此之小,以至于它成为一种内部门面,邀请并溢出到下一个房间。
At 20 Trafalgar Street, near Plaza de Olavide, in the Chamberí neighborhood of Madrid, this small specialized pastry shop is located. The architectural project works with two opposing spatial operations that we have called systole and diastole, which face and confront each other. The first space is white, small and contracted, made up of an equipped piece of furniture that receives the visitors and meets all the needs of the clients. This artifact folds and takes multiple forms. It could be said that it is a counter, but it is also a bar, a warehouse, a refrigerator, an oven, a cash register, a shelf, a garbage can, a coffee maker, a grinder, and a sink. This space is so small that it becomes a kind of interior facade that invites and spills into the next room.






然后,惊喜出现了:第二个空间--例子--放松和扩大了。在这里,颜色似乎创造了它自己的焦糖形状的宇宙,家具再次展开整个空间,赋予它各种功能,如展览、座位或桌子。这些形式漂浮在这个单色空间中,就像在两个不同材质的空隙(上方和下方)之间画出的甜美笔触。沉浸在这片绿色瓷砖的海洋中,一个红点吸引了我们的注意力:通过这个透明的窗口,我们观察到我们的客户在厨房的日常工作中的工艺。
Then the surprise appears: the second space -ample- that relaxes and expands. Here color appears to create its own universe of caramelized shapes, furniture that once again unfolds throughout the space, endowing it with various functions, such as an exhibition, a seat, or a table. The forms float in this monochrome space, like sweet brushstrokes that are drawn between the two voids (above and below) of different materiality. Immersed in this sea of green tiles, a red dot captures our attention: the transparent window through which we observe the craftsmanship that our clients do in their daily tasks in the kitchen.



颜色和材料是项目整体构成中的主角。红色为我们打开了蛋糕的大门,在烤箱之间为我们关上了大门。瓷砖连接着我们的空间。表面的光泽创造了一种视觉上的同质性,能够将整体理解为一个整体,尽管房间之间的形状和颜色有距离。Cara Mela是一个实验,它提出了一个适应当前需求的零售业的愿景:一个用于数字和现场之间的混合消费的外卖架构。
Color and materiality are the main protagonists in the overall composition of the project. Red opens the door to cakes and closes it for us between ovens. The tile connects our spaces. The surface glosses create a visual homogeneity capable of understanding the whole as one, despite the distance of shapes and colors between rooms. Cara Mela is an experiment that suggests a vision of Retail adapted to its current needs: a Take-Away architecture for a hybrid consumption between digitality and the presence.












Architects: Casa Antillón
Area : 50 m²
Year : 2022
Photographs :Imagen Subliminal
Manufacturers : Ceràmica Cumella, Discesur
Model : Daria Etma
Stylist : Anna Pandozzi
City : Madrid
Country : Spain