位于Vila Buarque (SP)的一个旧仓库的干预,以实现一个酒吧和一个餐厅。该项目试图强调原有建筑的品质,将其与专门为该地设计的新结构相结合:酒吧、厨房、服务区、看台和露台。
Intervention in an old warehouse located in Vila Buarque (SP) to implement a bar and a restaurant. The project sought to emphasize the qualities of the pre-existing building combining them with new structures designed especially for the place: bar, kitchen, service areas, bleachers and terrace.

除了这些干预措施外,我们还试图保持建筑的原始特征。屋顶只是进行了改造;墙壁上的旧陶瓷被保留下来;以及建筑的原始立面,我们只是在其上添加了一个新的凹陷窗口,以创造一个避雨的入口空间。
In addition to these interventions, we try to keep the original characteristics of the building. The roof was just remodeled; the old ceramics of the walls, kept; as well as the original façade of the building, to which we just added a new recessed window, to create an entrance space from the rain.


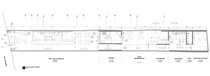
10米长的阿里坎特红色大理石柜台既包含了饮料的准备,也包含了DJ的表演,并赋予了酒吧内部空间的特性,同时组织了入口、消费区和舞蹈区之间的流动。
The 10m long alicante red marble counter incorporates both the preparation of the drinks and the performance of the DJ and gives the identity of the internal space of the bar while organizing the flows between the entrance, the consumption area, and the dance area.

明显的混凝土块厨房在声学上隔离了内部空间,同时与地段的外部后部进行了过渡。在后面,台阶组织了厕所和存货,并提供了通往一个新的高架露台的通道,该露台通向球场,在邻近地段的水管下创造了一个特殊的户外空间。
The apparent concrete block kitchen isolates the interior acoustically while making the transition with the outer back section of the lot. In the back, the steps organize the toilets and stock and give access to a new raised terrace that opens into the court, creating an exceptional outdoor space under the hose of the neighboring lot.













Architects: gru.a
Area : 150 m²
Year : 2018
Photographs :Dudu Magalhães
Lead Architects : Pedro Varella, Caio Calafate, Júlia Carreiro, André Cavendish, Isadora Tebaldi, Juliana Sicuro
Work : Foz Engenharia
Structure Consulting : Rodrigo Affonso
Installations Project : CZN engenharia
Locksmith : Baltier
Lighting : Beto Kaiser e Corja
City : Consolação
Country : Brazil