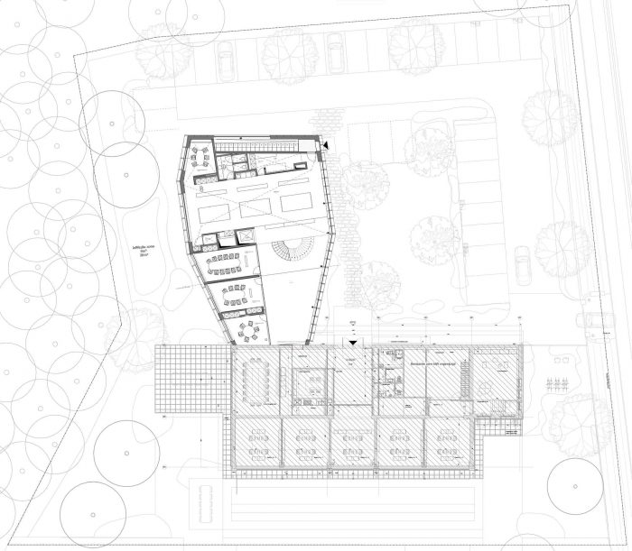
由于公司的强劲增长,客户希望对目前的办公大楼进行扩建,面积为+/-500平方米。随着20个额外的工作空间和4个额外的会议室的实现,容量将增加一倍。此外,在地下室还将提供一个自行车棚、健身房和档案室。大楼配备了电梯,一方面确保无障碍,另一方面可以方便地到达地下一层和档案室。
Due to the strong growth of the company, the client wishes to realize an extension of the current office building of +/- 500m². With the realization of 20 additional workplaces and 4 additional meeting rooms, the capacity will be doubled. In addition, a bicycle shed, gym, and archive room will be provided in the basement. The building is equipped with an elevator, to ensure accessibility on the one hand, and to easily reach the basement level and archive space on the other hand.



该建筑位于一条非常绿色的街道上,毗邻Vordenstein公园,并位于Schoten建筑区的边缘。目前的建筑是一座历史建筑,曾经作为马车房或马厩。它自由地矗立在地块上,由于地块前面的开放性,从街道上看是非常明显的。由于现有的建筑有很大的历史价值,我们正在寻找一种方法来尽可能地保护它的可见性。出于这个原因,我们选择将扩建部分种植在地块的后面。这里的想法是尽可能少地接触现有建筑,只实现现有和新建筑之间的必要联系。
The building is located on a very green street, adjacent to the park Vordenstein, and is situated on the edge of the built-up area of Schoten. The current building is a historic building, which used to serve as a coach house or horse stable. It stands freely on the plot and is highly visible from the street due to the open character at the front of the plot. Since the existing building has great historical value, we are looking for a way to preserve its visibility as much as possible. For this reason, we choose to plant the extension rather at the back of the plot. The idea here is to touch as little as possible the existing building, and only to realize the necessary connection between existing and new.


为了限制建筑的占地面积,我们选择了在两层上工作。通过选择一个非典型的坡屋顶,寻求与现有建筑的现代关系。坡屋顶也使一楼的表面积变小,再次限制了体量的庞大性。一楼被视为夹层,这创造了额外的空间感,并使外壳的典型形状被强烈感知。
The choice is made to work on 2 levels, in order to limit the footprint of the building. By choosing an atypical gabled roof, a contemporary relationship with the existing building is sought. The gabled roof also makes the first floor smaller in surface area, again limiting the massiveness of the volume. The first floor is treated as a mezzanine, which creates extra spatiality and makes the typical shape of the shell strongly perceptible.

现有建筑的特点是有许多非常典型的元素。例如,建筑的正面通过青石滴水条和垂直砖石柱有很强的衔接性。另一方面,侧立面由粗糙、封闭的砖石墙组成。
The existing building is characterized by a number of very typical elements. For example, the front facade of the building has a strong articulation through the bluestone drip strips and vertical masonry posts. The side facade, on the other hand, consists of a rough, closed masonry wall.

对于扩建部分,同样的成分被使用,并以一种现代的方式应用。建筑物的前部和后部的立面将用阳极氧化铝的紧密垂直条进行阐述。这与现有建筑的铰链式外墙有联系,但通过所选材料的紧密性和光滑性与之形成对比。侧面的外墙将有一个封闭的,但相当平坦的外观,通过铝盒的阐述。这与现有的侧墙产生了联系,后者具有非常封闭的特点。
For the extension, the same ingredients are used and applied in a contemporary way. The front and rear facades of the building will be elaborated with tight vertical strips of anodized aluminum. This makes links with the articulated facade of the existing building but contrasts with it through the tightness and smoothness of the chosen material. The side facade will have a closed, but rather flat appearance through an elaboration with aluminum cassettes. This makes links with the existing side wall, which has a very closed character.

永久装置、松散的家具和照明是建筑大纲的一个组成部分。通过使用穿孔石膏板、吸音木板、窗帘等,对声学舒适性给予了特别关注。木材和新鲜水磨石砖的使用为整个建筑提供了温暖的感觉。
The permanent fixtures, loose furniture, and lighting are an integral part of the architectural brief. Special attention was paid to acoustic comfort through the use of perforated plasterboard, acoustic wood paneling, curtains, etc. The use of wood and fresh terrazzo tiles provide a warm touch throughout the building.

目标是实现一个节能的建筑。通过地板激活和天花板激活,可以在低温下提供加热和冷却。屋顶将完全安装绿色屋顶和太阳能板。一个BEO场提供了一个可持续的能源来源。最后,外墙的垂直板条在建筑正面提供了自然的遮阳。
The goal is to achieve an energy-efficient building. With floor activation and ceiling activation, both heating and cooling can be provided at low temperatures. The roof will be completely fitted with a green roof and solar panels. A BEO field provides a sustainable source of energy. Finally, vertical slats in the facade provide natural shading at the front of the building.










Architects: abv+architecten
Area : 740 m²
Year : 2022
Photographs :EvenBeeld
Manufacturers : Triplaco Print Acoustics, Climatrix nv, Limeparts-Drooghmans, buzziskin
Lead Architect : Mathias Lammens
MEP Engineers : Botec nv
Structural Engineer Team : stabicom bvba
Landscaping Design : AvantGarden NV
Project Architect : Charles Krug
EPB : Vicave vof
City : Schoten
Country : Belgium