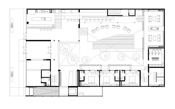
这个项目的出发点是一个城市考古项目。我们发现一个完全衰败的物业,以前叫亚马逊花园酒店,我们迅速在网上搜索,看到几张它全盛时期的照片,我们主要被中央庭院作为城市中的绿洲所吸引,还有七十年代的装饰、人造草和那些被拍到在游泳池边晒太阳的人的衣服。那家酒店除了典型的汽车旅馆的结构外,没有留下任何东西,外部的走廊可以俯瞰院子,以及无数层的涂料、骨料、台阶和天花板。今天,该酒店有36个房间,每个房间都有一个特殊的触摸。
This project had as its starting point a project of urban archeology. We find a property in total decay, formerly called Garden Amazonas Hotel, we quickly googled it and saw a couple of photos of its heyday where we were primarily drawn to the central courtyard as an oasis within the city, and the seventies decoration, artificial grass and the clothes of those who were photographed sunbathing by the pool. There was nothing left of that hotel other than the typical structure of a motel with exterior corridors overlooking the courtyard as well as countless layers of coatings, aggregates, steps, and ceilings. Today the hotel has 36 rooms, each with a special touch.



外墙,我们决定保持原样,可能是在80年代进行的改造,他们想给建筑施加一种现代的气息,用玻璃镜面的围墙将其覆盖。Colonia Cuauhtemoc,今天是一个文化非常活跃的地区,在过去几年里,当周边地区与中心城市竞争时,它也经历了同样的恶化过程。决定保留什么和拆除什么是一个游戏性的逐步发现过程。
The facade, which we decided to keep intact, was probably remodeled in the eighties, wanting to impose an air of modernity to the building they covered it with an enclosure finished in glass mirror. Colonia Cuauhtemoc, which today is a very culturally active area, shared the same process of deterioration for several years when the periphery competed with the central city. The decision of what to keep and what to remove was a playful and gradual discovery process.

我们甚至决定阻止外墙的通道,并在旁边的停车场建一个新的通道,以改变流通的叙述,并造成一个惊喜,使游客直接进入这个我们在照片中理想化的中央庭院。在这个过程中,除了拆除和展示不同的层次外,我们还决定提供一些有力的元素,使项目具有凝聚力和统一性。在每个公共区域和酒店房间都可以看到现有建筑的混凝土结构。
We even decided to prevent access on the facade and build a new one on the side, in the neighboring parking lot to change the narrative of circulation and cause a surprise making visitors come in directly to this central courtyard that we had idealized in the photographs. In the process, in addition to removing and showing the different layers, we also decided to provide some powerful elements that could give cohesion and unity to the project. The concrete structure of the existing building can be seen in every common area and hotel room.

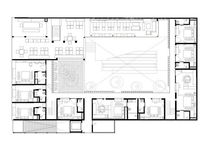
中央庭院成为最繁忙的公共空间,即餐厅,它是根据酒店的相同标准设计的。商店/画廊和图书馆的空间是相互融合的,它们打破了它们之间的界限,创造了没有限制的感觉,将它们独立定义;图书馆通过气氛和家具有一个舒适的围墙。
The central courtyard becomes the busiest public space, the restaurant, which is designed under the same criteria of the hotel. The shop / gallery and library spaces are integrated with each other, they break the boundaries between them and create the feeling of no limits defining them independently; the library has a cozy enclosure through the atmosphere and furniture.

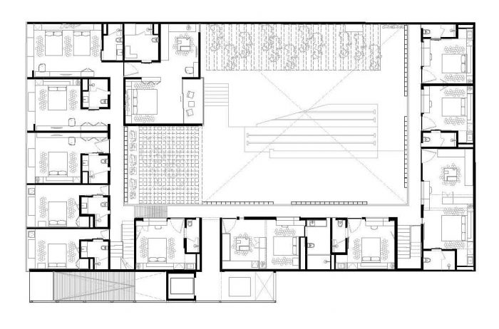
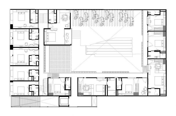
黑色混凝土块的格子与这些空间关系的目标有关,但也提供了隐私并丰富了通往房间的旅程。这些房间内部的生活条件取决于客人,有些甚至有私人屋顶露台,可以享受日光浴和享受墨西哥城的垂直城市景观。
The lattice of black concrete blocks is connected with these objectives of spatial relations, but also provides privacy and enriches the journey to the rooms. These have a living condition inside that depends on the guest, some even have private roof terraces to sunbathe and enjoy the vertical urban landscape of Mexico City.

室内装修是与墨西哥设计师团队合作完成的,他们照顾到了空间的每一个细节,从镶嵌定制木材的混凝土家具和照明设备,甚至是浴室设备,根据每个房间制作每一件作品。当代艺术的介入覆盖了一些房间的墙壁,给人以色彩的触动,并创造了独特的空间体验。
The interiors are done in collaboration with a team of Mexican designers who took care of every detail of the spaces, from concrete furniture with inlaid custom wood and lighting fixtures, even the bathroom fixtures, producing each piece according to each room. Contemporary art interventions cover some walls of the rooms giving a touch of color and creating a unique spatial experience.

品牌
对我们来说,重要的是要照顾到使酒店体验的每一个细节,这就是为什么我们与一位专家一起开发图形和品牌,以便在其中反映出相同的概念性建筑准则。
BRANDING
For us it was important to take care of every single detail that makes the hotel experience, this is why in conjunction with a specialist we developed the graphics and branding, so that the same conceptual architecture guidelines could be reflected in them.








Architects: JSa
Year : 2015
Photographs :Camila Cossío, Rafael Gamo
Architectural Design : Javier Sánchez + Aisha Ballesteros
Interiors Concept : JSa (Javier Sánchez + Aisha Ballesteros) Ignacio Cadena, Cadena + Asoc. Concept Design con Jorge Mdahuar
Interiors Design : Javier Sánchez, Ignacio Cadena, Aisha Ballesteros, Jorge Mdahuar, Laura Natividad, Dania Gutiérrez ,Santiago Arroyo, Jorge González
Hotel Room Furniture Production : Ezequiel Farca Maz y mas
Restaurant Furniture Design And Production : La Metropolitana
Tapestry Production : Déjate querer, Lagos del Mundo
Art Curator : Arróniz Galería
Guest Artists : Ricardo Rendón, Omar Barquet, Luis Nava, Tomás Cerdeño, Cristian Camacho y Tomás Guereña (Los Contratistas)
Branding : Cadena + Asoc. Concept Design
Renderings : Gerardo Fonseca, Luis Frausto
Models : Edith Razo, Anayetzi Ruiz y Héctor Moreno
Structure : Oscar Trejo y Sergio López
Building Services : M3
Construction Site Direction : JSa, Javier Sánchez, Aisha Ballesteros, Laura Natividad, Dania Gutiérrez, Francisco Martínez
Site Management : David Ruiz, Javier Perdigón, Andrés Aguado, Raúl López
Activities Carried Out By J Sa : Architectural and executive project, interiors and construction site direction
Design Team : JSa, Laura Natividad, Dania Gutiérrez, Jimena González Sicilia, Juan Jesús Pérez, Gerardo Fonseca
City : Ciudad de México
Country : Mexico