为纪念巴西现代建筑大师而设计,该建筑是一个细长的混凝土板,有一个稍微旋转的夹层。这套建筑漂浮在离地面19米高的地方,由令人印象深刻的Y形支柱支撑。不朽的到来揭示了一个优雅的裸露混凝土走道,提供了通往大厅的通道。
Designed to honor the Brazilian modern architecture masters, the building is a slim concrete sheet with a slightly rotated mezzanine. This set floats 19 meters above the ground, sustained by impressive pillars in a Y shape. The monumental arrival reveals an elegant exposed concrete walkway, providing access to the lobby.


位于Itaim Bibi社区的中心,靠近Brigadeiro Faria Lima和Cidade Jardim大道,Casa Brasileira Itaim是PSA Arquitetura的负责人Pablo Slemenson签署的另一个项目。据巴勃罗说,这个项目的特征是在考虑到该地块的位置时开始出现的,该地块有70米正对着阿道夫-塔巴科街,是这个街区最有价值的地方之一。他说:"当项目被批准时,立法规定面对Adolfo Tabacow街,并回到Jorge Coelho街,在那里建立了一个纪念性的通道"。一开始,我们的想法是放一个门廊,以方便在大楼的入口处上下车,但Jorge Coelho街的宽度不允许这个元素的实施。Slemenson找到的解决方案是在地面低层为汽车到达创造一个广场,就在通往车库的第一个坡道的末端。为行人创造了一条裸露的混凝土走道,将公寓的入口与底层大厅连接起来,公共区域分布在这里。
Located at the heart of Itaim Bibi neighborhood, close to Brigadeiro Faria Lima and Cidade Jardim avenues, the Casa Brasileira Itaim is one more Project signed by Pablo Slemenson, PSA Arquitetura’s principal. According to Pablo, the project’s identity started to emerge when thinking about the plot of land’s location with 70 meters facing Adolfo Tabacow Street, one of the most valued points in this neighborhood. “When the project was approved, legislation set forth facing Adolfo Tabacow street and back to Jorge Coelho street, where a monumental access was built”, he states. In the beginning, the idea was to put a porte-cochere in order to make it easier to embark and disembark at the building’s entrance, but Jorge Coelho Street’s width did not allow this element’s implementation. The solution found by Slemenson was to create a square for cars arrivals at the ground’s lower level, just at the end of the first ramp that is the access to the garages. For the pedestrians it was created an exposed concrete walkway interconnecting the condo’s entrance to the ground level lobby, where the common areas are distributed.



该房地产开发项目有两个主要的体量,即建筑和休闲和健康区,由一个繁茂的热带花园分隔。大胆的想法是将第一层提升到令人印象深刻的19米高,相当于第六层,其目的是为了拓宽视野,使低层公寓的社交和私密区域也能享受到阿道夫-塔巴科夫一侧的风景,从而为房地产开发带来额外的差异。Slemenson总结说:"这一点加上要建造的面积是形成这个项目的方程式"。
The real estate development has two main volumes, the building and the leisure and well-being block, separated by an exuberant tropical garden. The bold idea of lifting the first floor to an impressive 19 meters high, the equivalent of a sixth floor, had the purpose to broaden the horizons so that the social and intimate areas of the lower floors apartments could also enjoy the view of Adolfo Tabacow’s side, resulting in an additional differential for the real estate development. “This plus the footage to be built were the equation that resulted in this project”, summarizes Slemenson.

该房地产开发项目有两个主要的体量,即建筑和休闲和健康区,由一个繁茂的热带花园分隔。大胆的想法是将第一层提升到令人印象深刻的19米高,相当于第六层,其目的是为了拓宽视野,使低层公寓的社交和私密区域也能欣赏到阿道夫-塔巴科夫一侧的风景,从而为房地产开发带来额外的差异。Slemenson总结说:"这一点加上要建造的面积是形成这个项目的等式"。
The real estate development has two main volumes, the building and the leisure and well-being block, separated by an exuberant tropical garden. The bold idea of lifting the first floor to an impressive 19 meters high, the equivalent of a sixth floor, had the purpose to broaden the horizons so that the social and intimate areas of the lower floors apartments could also enjoy the view of Adolfo Tabacow’s side, resulting in an additional differential for the real estate development. “This plus the footage to be built were the equation that resulted in this project”, summarizes Slemenson.

因为在地面和一楼之间的立面有相当大的自由空间,Slemenson寻找不同的形状来填补这个巨大的空白。解决方案是旋转夹层的体积,这个元素从板材中脱颖而出,为立面创造了一个额外的价值点。
Because there was considerable free space in the façade between the ground and the first floors, Slemenson searched for differentiated shapes to fill this great void. The solution came with the volumetry of a rotated mezzanine, an element that stands out from the sheet and creates an additional point adding value to the façades.


北面的立面旨在实现舒适的氛围和更温暖的住宅语言,采用了伦敦风格的深色砖块,与其他几种材料和谐相处,并提供高热声学性能。这个面的开口故意很小,不透明的区域多于玻璃区域,避免了过度的阳光和热量。在相反的立面中,亲密和社交区域位于这里,露台的金属护栏与玻璃peie形成对比,玻璃peie的框架采用德国Schiico品牌的技术,其密封和关闭系统增强了声学效果。
Aiming towards ambiance comfort and a warmer and residential language the North façade employs dark bricks in London style, that talk harmoniously with several other materials and deliver a high thermal acoustic performance. The openings in this face are intentionally small, with more opaque than glazing areas, avoiding excessive sunlight and heat. In the opposite façade, where intimate and social areas are located, the terraces’ metallic guardrails pose a counterpoint to the glass peie with frames of German technology from the Schiico brand, with sealing and closing systems enhancing the acoustic.


另外两个外墙呈现出砖块和通风的Pertech外墙的组合。与邻近的侧墙有6厘米的距离,铝制结构和木质色调的装饰,与其他材料形成了优雅的组合。通风外墙是一个与众不同的建筑解决方案,避免了太阳的直接照射,允许自然通风,而且耐用,易于更换。
The other two façades present a combination of bricks and ventilated Pertech façade. Six centimeters distant from the neighboring sidewall, with aluminum structure and finishing in wood tone providing an elegant composition with the other materials employed. The ventilated façade is a differentiated construction solution avoiding direct solar incidence, allows natural ventilation, and is durable and easy to replace.



为了方便日常工作,使房地产开发项目始终保持清洁和良好的维护,它在屋顶和外墙的清洁和维护系统中安装了手推车和绞盘。除此以外,该建筑还有一个重复使用的水系统和用于游泳池和单元水加热的太阳能电池板。
In order to facilitate the daily routine and keep the real estate development always clean and well maintained, it was installed in roof and façades’ cleaning and maintenance system with a trolley and winch. In addition to this, the building has a reused water system and solar panels for the swimming pool and water heating in the units.














Architects: PSA Arquitetura
Area : 18000 m²
Year : 2015
Photographs :Nelson Kon
Architecture Project : Pablo Slemenson - PSA Arquitetura
Interior Design : Jader Almeida
Apartment Interior Designer : Carlos Rossi
Landscape Design : Cenário Arquitetura da Paisagem
Installations : Prolux - Responsável pelo projeto: Eng Eduardo Pedreira Désio
Structural Project : CIA De Eng. Civil - Resp. projeto: Virgílio
Waterproofing : PROASSP - Assessoria e Projetos - Eng. Virgínia Pezzolo
Lighting Design : Mingrone Iluminação
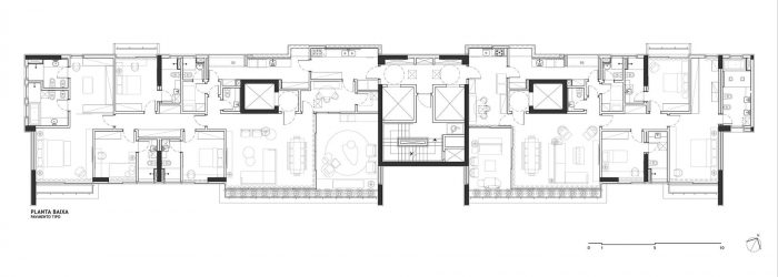
Floor Area Type 1 : 279m² a 291m²
Floor Area Type 2 : 218m² a 225m²
Floor Area Duplex 1 : 519m²
Floor Area Duplex 2 : 395m²
Parking Lots Type 1 And 2 : 4
Parking Lots Duplex 1 And 2 : 8
City : São Paulo
Country : Brazil