"Casa dos Caseiros "最初是为了响应一个私人订单,在里约热内卢州的一些城市大量建造一个社会利益住宅项目。不幸的是,经过一段时间的发展,该项目不得不被承包商取消。
“Casa dos Caseiros” was first created to answer a private order for a social interest dwelling project to be built numerously throughout some cities in Rio de Janeiro state. Unfortunately after some time of development the project had to be canceled by the contractor.



原本设计是采用钢架作为结构体系,取消后我们对整个项目进行了更新,采用了巴西建筑中比较常见的混凝土结构砌块,而且还是合理的模块化建筑体系。这个项目被搁置了一段时间,直到有机会在坎皮纳斯的一个农村地区建造一个单元作为原型,并且仍然作为管家的家。
Originally it was designed using steel frame as structural system, after cancelation we have updated the whole project to use structural concrete blocks, more usual in Brazilian construction, and still a rational modular building system. The project was set aside for a while until came the opportunity to build one unit as a prototype and still be used as home for the housekeepers of a property in a rural district from Campinas.

然后,我们开始了实验性的建设,成本不能超过50,000.00雷亚尔(约14,000.00美元),或大约700.00雷亚尔/平方米。我们的目标是:为一个有两个孩子的家庭提供住房。
We then set off for an experimental construction, where the cost could not exceed R$ 50,000.00 (around US$ 14,000.00), or something around R$ 700.00/m2. The goal: to house a family with two children.

最初,我们决定房子的面积为70平方米,足以为用户提供更好的生活质量(巴西联邦政府在社会住房项目中提供了大约40平方米的房子,作为Minha Casa Minha Vida--字面意思是 "我的房子我的生活",没有扩展的可能性)。
Initially, we determined that the house would have 70sqm, enough to provide users better quality of life (Brazil´s federal government has delivered homes with approximate 40sqm in social housing programs as Minha Casa Minha Vida -literal translation My House My Life- without expansion possibility).

最初的设计旨在拯救街道的互动和同一社区居民之间的交流。主立面的框架在人行道旁创造了一个广泛的砖石长椅,创造了一个有利的永久性场所。这几乎是一种拯救小城市传统的尝试,人们在人行道上放上椅子,随着时间的流逝,享受着看着孩子们在街上玩耍的乐趣。
The original design aims to rescue street interaction and conviviality stimulation between residents of the same neighborhood. A frame at the main façade creates an extensive masonry bench next to the sidewalk, creating a favorable permanence place. It's almost an attempt to rescue smaller cities traditions where people put chairs on sidewalk and enjoy as time passes, watching children playing on streets.

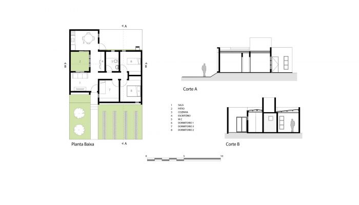
房子的设计非常简单,但它确保了社交和服务区域的有效照明和自然通风。在厨房、办公室和客厅周围战略性地设置了一个天井,为更具永久性的家居环境带来了光照和空气更新。庭院是保证项目即使在其一侧附设房屋,也能拥有居民所需的一切自然资源。
除了厨房、客厅、庭院、洗衣房等服务外,项目可以适应不同的内部配置。
3间卧室+卫生间+办公室或1间套房+2间卧室+卫生间。
The house design is very simple, yet it ensures efficient lighting and natural ventilation in social and service areas. A patio located strategically around the kitchen, office and living room, brings light and air renewal to the more permanency home environments. The courtyard is the guarantee that even with a house attached on its side the project will still have all natural resources necessary for its residents.
In addition to kitchen, living room, patio and laundry services, the project can adapt to different internal configurations:
3 bedrooms + bathroom + office or 1 suite + 2 bedrooms + bathroom

为了降低建筑成本,我们做出了两个重要决定。取消了屋顶板和内外抹灰。取而代之的是,我们使用了直接应用于砖块上的辊状纹理和PVC天花板系统以及水泥屋顶,作为临时性的隔热屋顶和楼板。周围有许多树梢的场地有助于防止建筑内部过热。由于采用了优质的混凝土块,可以让它们显露出来,减少了油漆成本。
Two important decisions were taken in order to reduce building costs: Eliminate the roof slab and the exterior and interior plaster. Instead, we used roll texture applied directly on block and a PVC ceiling system together with cement roof to function on an interim basis as insulated roof and slab. A site with many treetops around contributed in preventing overheating inside the building. With good quality concrete blocks it was possible to let them apparent, reducing painting costs.

竣工后,我们看到Casa dos Caseiros居民生活质量的显著提高让我们很受鼓舞,由于低收入人群很难聘请建筑师设计美观舒适且功能齐全的住宅,我们决定将该项目作为一个开放源码项目发布。我们将在我们的网站上免费提供(http://www.247arquitetura.com.br/casa-dos-caseiros/)这个项目,作为一种民主化的方式,让社区改进和调整想法。
After completion we saw ourselves encouraged by the remarkable increase in the quality of life of Casa dos Caseiros residents and since it is difficult to low income population to hire an architect to design aesthetically pleasant and functional homes, we have decided release the project as an OPEN SOURCE project. We will provide (http://www.247arquitetura.com.br/casa-dos-caseiros/) the project free of charge on our website, as a way of democratization of ideas to be improved and adapted by communities.

我们相信,优秀项目网络的理念将为市场注入克服经济障碍和建筑师与最终客户之间距离的方法。我们缺乏新的类型学和最佳的城市插入。
We believe that the idea of a network of good projects will inject into the market ways to overcome economic barriers and distances between architect and final client. We lack new typologies and best urban insertions.

非常重要的是要记住,调整是必要的,因为项目将建在不同的生物气候区,建筑系统,地形,规则和法规。
It is very important to remember that adjustments are necessary since the project will be built in different bioclimatic zones, building systems, topography, rules and regulations.






建筑师:24 7 Arquitetura
面积 : 70 m²
年份:2012年
摄影:Pedro Kok
结构工程师:WGA Engenharia
建筑师:Giuliano Pelaio, Gustavo Tenca e Inacio Cardona
城市: Campinas
国家:巴西
Architects: 24 7 Arquitetura
Area: 70 m²
Year: 2012
Photographs: Pedro Kok
Structural Engineer:WGA Engenharia
Architect In Charge:Giuliano Pelaio, Gustavo Tenca e Inacio Cardona
City:Campinas
Country:Brazil