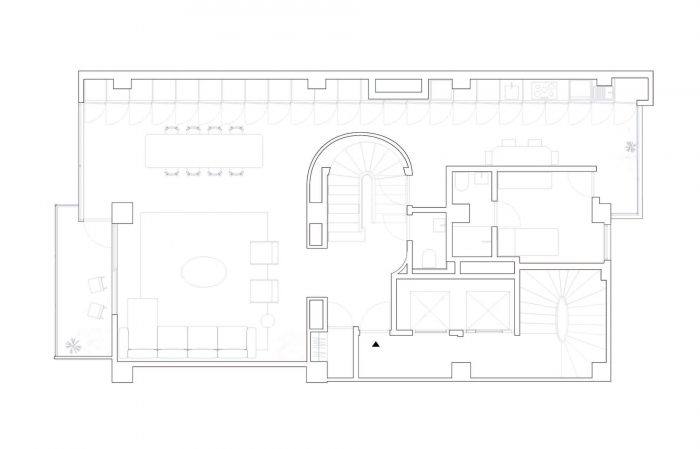
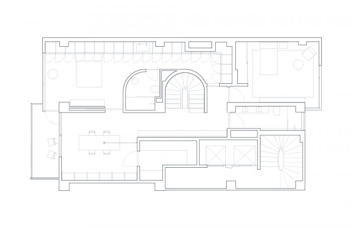
一套60年代的公寓,最初由俄罗斯建筑师Vladimir Kaspé在墨西哥城的中心区域规划,Zeller & Moye对其进行了彻底的改造,目的是恢复原设计者的现代主义精神,同时结合当代家庭生活的需要。这个250平方米的住宅,是一个现代主义多户住宅区的一部分,分两层开发,螺旋形的楼梯有利于单位的空间流动性。
A 1960s apartment, originally planned by Russian architect Vladimir Kaspé in a central area of Mexico City, is radically transformed by Zeller & Moye with the aim of restoring the modernist spirit of its original designer, while incorporating the needs of contemporary family living. The 250-square-meter dwelling, which is part of a modernist multi-family housing block, is developed over two levels with helical staircases that favor the spatial fluidity of the apartment.




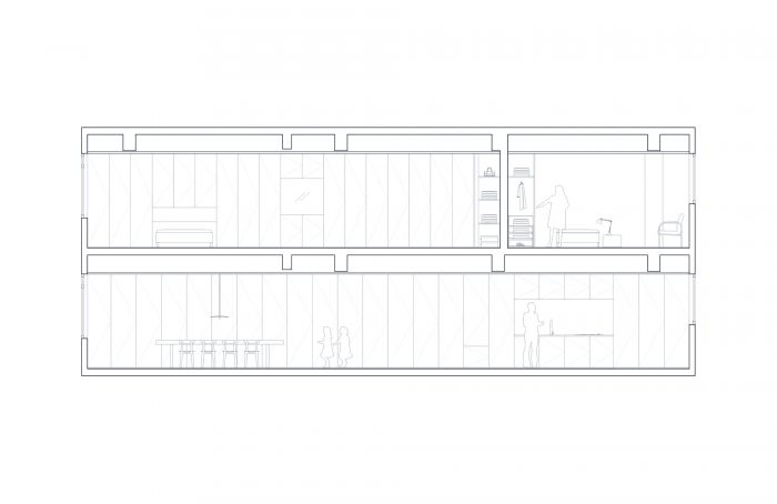
原有的建筑被剥离了不必要的元素,如隔断墙、假天花板和装饰物,从而实现了大的开放空间。一系列弯曲的墙体将房间分隔开来,同时又通过一个新的开放式方案将房间与房间之间连接起来,在房子的不同功能之间有细长的走廊,如厨房与餐厅之间,或卧室与浴室之间。
The original architecture is stripped of unnecessary elements such as dividing walls, false ceilings, and decorations, thus achieving large open spaces. A series of curved walls separate, while at the same time connecting rooms with each other, through a new open plan scheme with thin corridors between the different functions of the house, such as between the kitchen and the dining room; or between the bedroom and the bathroom.

两层的界限元素是一道17米长的无障碍墙,它占据了整个楼层平面的长度。沿着这些墙壁的重叠门可以方便地进行存储,同时也可以作为厨房、开放式浴室和更衣室使用。Zeller & Moye公司定制了一系列固定和松散的家具元素:一张四米长的高光漆面桌子,一张用于书房的天然木桌,黄铜吊灯等等。
The delimiting element on both levels is a 17-meter-long accessible wall, which occupies the entire length of the floor plan. Overlapping doors along these walls allow easy access for storage, while also serving as a kitchen, open bathroom, and dressing room. A series of fixed and loose furniture elements have been custom-designed by Zeller & Moye: a four-meter long table with a high-gloss lacquered finish, a natural wood table for the study, brass pendant lights, among others.





















Architects: Zeller & Moye
Area : 248 m²
Year : 2018
Photographs : Dane Alonso
Suppliers : AutoDesk, Google, M+N Luminarias, Maple Wood, TABLAROCA, Vitra
Architects In Charge : Christoph Zeller, Ingrid Moye
Team : Alex Pineda, Deniss Martinez
Construction : Bauart Construction
City : Mexico City
Country : Mexico