疗养院位于多米尼加共和国普拉亚格兰德一个郁郁葱葱、以前未开发的地方,由纽约的建筑工作室Young Projects设计,一边是茂密的丛林,另一边是纯净的海滩。被称为 "Casa Las Olas "的20,000平方英尺的度假屋的设计是为了利用该物业的两面性,从丰富的自然景观和业主对接待大型家庭和朋友团体的兴趣中汲取灵感,以健康和创造性交流为重点进行休养。
Located on a lush, previously undeveloped site in Playa Grande in the Dominican Republic, The Retreat House, designed by New York-based architecture studio Young Projects, sits at the cusp of a dense jungle on one side, and a pristine beach on the other. Known as “Casa Las Olas,” the 20,000-square-foot vacation home is designed to take advantage of both faces of the property, drawing inspiration from the rich natural landscape and the owners’ interest in hosting large groups of family and friends for retreats focused on wellness and creative exchange.




疗养院是一个深深的、面向海洋的4.5英亩的院落的中心,它还有两个客房、一个瑜伽亭和一个毗邻海滩的放松结构。所有的结构和内饰都是由Young Projects公司设计的,有柔和的蜿蜒小路连接着每个结构。"这些精心编排的长廊保留了场地的自然环境,在关键时刻巧妙地调整景观,将野生丛林转变为可居住的空间,"Young Projects负责人Bryan Young说。
The Retreat House is the hub of a deep, ocean-facing 4.5-acre compound, which also features two guest homes, a yoga pavilion, and a structure for relaxation adjacent to the beach. All structures and interiors are designed by Young Projects, with softly meandering pathways connecting each. “These carefully choreographed promenades preserve the natural environment of the site, subtly restructuring the landscape at key moments to transform the wild jungle into habitable space,” says Young Projects principal Bryan Young.


参观者从一条蜿蜒穿过热带花园的狭窄道路到达疗养院,沿着石灰华和碎石的人行道接近建筑。露天的入口处,用风化的柚木衬托,通往住宅下面,沿着石灰华台阶进入一个微风习习的中央庭院。在那里,可以看到海洋和地平线的框架,引起了一种抵达的感觉。杨将上升的过程描述为 "一个压缩释放到庭院的时刻,戏剧性地展现了海洋和地平线的明信片般的景色"。
Visitors arrive at Retreat House from a narrow road that meanders through tropical gardens and approach the building on a travertine and gravel footpath. The open-air entrance, lined in weathered ipe, leads under the home and up travertine steps into a breezy central courtyard. There, framed views of the ocean and horizon are revealed, eliciting a sense of arrival. Young describes the ascent as “a moment of compression releasing into the courtyard, and dramatic reveal of the postcard view of the ocean and horizon.”


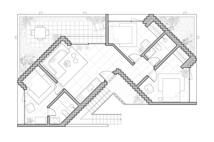
从本质上讲,疗养院是一个庭院式建筑,室内房间形成一个环形,环绕着中央庭院,而中央庭院则戏剧性地溢出到庄园前面的海滩上。这个环形结构围绕着该地最壮观的自然元素而变化,包括位于庭院中心的一棵长满藤蔓、凤梨花和其他共生物种的古老树木。在这棵树的底部有一个下沉式的座位区,在斑驳的晨光中为亲密的聚会或早餐提供了空间。
In essence, the Retreat House is a courtyard parti, where indoor rooms form a ring encircling the central courtyard, which spills dramatically onto the beach at the property’s front. The ring shifts and molds around the site’s most spectacular natural elements, including an age-old tree covered with vines, bromeliads, and other symbiotic species situated at the courtyard’s center. A sunken seating area at the base of this tree offers space for intimate gatherings or breakfast in the dappled morning light.

院子的外表面是白色的混凝土,浇筑在从现场收集的棕榈树茎的模板上。这些茎被切割成不同的长度,以便为这个中心空间创造一个抽象的、有机的、有质感的质量。扇形的表面玩弄着光和影。"Young Projects的项目经理兼合伙人Noah Marciniak说:"从某种程度上说,这是一个设置在丛林中的客厅。
The outside face of the courtyard is white concrete poured into a formwork of palm stems gathered from the site. The stems were cut to various lengths in order to create an abstract yet organic and textural quality for this central space. The scalloped surface plays with light and shade. “In one manner, it is a living room set in the jungle,” says Noah Marciniak, Project Manager, and Partner at Young Projects.

丛林树冠成为住宅的另一个建筑准则:其屋顶几乎擦过树冠的下部叶片,但没有破坏它们。屋顶是该住宅的一个决定性元素。它由160个裸露的剪刀桁架构成,可以改变形状和旋转,在住宅的顶部起伏,突出了住宅的半圆形和场地的全景体验。妻子将动画屋顶的几何形状与瑜伽姿势相比较。
The jungle canopy becomes another architectural guideline for the home: its roof nearly grazes the canopy’s lower leaves but does not disrupt them. The roof is a defining element of the residence. Constructed from 160 exposed scissor trusses that change shape and rotate, it undulates across the top of the home, accentuating the residence’s semi-circular form and the panoramic experience of the site. The wife has compared the animated roof geometry to yoga positions.

丛林树冠成为住宅的另一个建筑准则:其屋顶几乎擦过树冠的下部叶片,但没有破坏它们。屋顶是该住宅的一个决定性元素。它由160个裸露的剪刀桁架构成,可以改变形状和旋转,在住宅的顶部起伏,突出了住宅的半圆形和场地的全景体验。妻子将动画屋顶的几何形状与瑜伽姿势相比较。
Overall, the residence’s interior spaces provide privacy while insistently pointing towards the spellbinding landscape outside. Dramatic spatial moments and views of breathtaking natural vistas punctuate each room and drive circulation through the home. “A sense of discovery keeps moving you from one space into the next,” explains Young. Each of the home’s seven bedrooms features a flood of natural light and a private balcony for the jungle- and ocean gazing. Most spectacularly, the master bedroom slips out from the rest of the second floor to offer views in all directions. The balcony features a private meditation nook and yoga platform designed specifically for the wife.

室内公共空间也利用了大院的总体室内外生活方式,并以大窗户和门为导向,可以推开,露出广阔的露台和广阔的视野。厨房被概念化为一个随手可得的 "24小时熟食店",以满足在露台或海滩上的户外野餐。对于更正式的用餐,高高在上的餐厅有两张巨大的Paola Lenti餐桌,采用熔岩石瓷砖和黑绿色结晶珐琅釉,可容纳28人,还有天花板高度的玻璃门,可在三面开放,用于户外用餐。
Interior common spaces also take advantage of the compound’s overarching indoor-outdoor lifestyle and are oriented towards large windows and doors that can be thrown open to reveal sprawling terraces and expansive views. Conceptualized as a grab-and-go “24-hr Deli,” the kitchen caters to outdoor picnicking on the terrace or beach. For more formal meals, the lofty dining room features two substantial Paola Lenti tables in lava-stone tile and black-and-green crystalline enamel glaze that seat 28, as well as ceiling-height glass doors that open on three sides for al fresco dining.

露天客厅是一个戏剧性的双高空间,高达30英尺,屋顶桁架裸露在外,Young Projects设计的藤制Bover吊灯悬挂在上面。大象桌也是由Young Projects设计的,是房间的支柱。这张由六块抛光的梅萨石英石组成的桌子可以拆开,作为凳子、讲台或边桌,也可以聚合成一张桌子,让更多的人聚集在一起。这张桌子对业主来说具有个人意义,因为每个元素都代表着家庭中的不同成员(两个父母和四个孩子)。
The open-air living room is a dramatic double-height space, extending up to 30-feet high, with exposed overhead roof trusses from which Young Projects-designed rattan Bover pendants suspend. The Elephant Table, also designed by Young Projects, anchors the room. This arrangement of six polished Mesa Quartzite stones can be taken apart, acting as stools, podiums, or side tables, or aggregated into a single table around which larger groups gather. The table is personally significant to the owners, as each element represents a different member of the family (two parents and four children).

在房间的其他地方,多个座位区和自由聚会的桌子要么面向内部,面向定制的混凝土酒吧,要么面向外面的游泳池或大海。游泳池本身有一个面向大海的无边际边缘,而它的浅水区有一个宽阔的涉水区,休闲椅可以浸泡在里面。
Elsewhere in the room, multiple seating areas and tables for freeform gathering face either inside, towards a custom concrete bar, or to the pool or ocean just outside. The pool itself features an infinity edge towards the ocean, while its shallow end incorporates a wide wading section in which lounge chairs can be submerged.

同样,家庭室也吸引了人们对室内和室外活动的关注。一个内置的娱乐中心和悬挂的桃花心木和钢架单元成为一个焦点,而三面的天花板高度的玻璃门向住宅的自然环境开放,成为另一个亮点。就在附近,有一个梯田的露天区域,有一个风化的ipe天花板(二楼悬空的结果),作为一个雪茄休息室、游戏室和放映区。混凝土长椅和梯田台阶可以坐着或躺着,而天花板上有一个隐藏的投影仪,可以垂下来,把整个区域变成一个户外电影院,有三层座位,可以容纳30-50名观众。
Similarly, the family room draws attention to both interior and exterior activities. A built-in entertainment center and suspended mahogany-and-steel shelving unit become one focal point, while ceiling-height glass doors on three sides open to the home’s natural surroundings, becoming another draw. Just adjacent, a terraced plein-air zone with a weathered ipe ceiling (the result of a second-floor overhang) serves as a cigar lounge, game room, and screening area. Concrete benches and terraced steps accommodate sitting or lounging, while the ceiling hosts a hidden projector that drops down, transforming the entire area into an outdoor movie theater with three levels of seating for 30-50 viewers.

Young Projects与妻子合作选择的家具与该物业的自然景观以及业主希望该住宅体现出的放松和轻松的整体感觉相得益彰。"业主的目标是给房子一种独特的感觉:什么是气味,什么是让人感觉特别的触动,"杨说。"他们希望为家庭和客人创造一个精确的场所和记忆"。该建筑渴望与景观和从瑜伽静修到家庭团聚的各种活动找到平衡。
Selected by Young Projects in collaboration with the wife, the furniture complements the property’s natural landscape and the overall sensation of relaxation and ease that the owners hope the home embodies. “The owner’s goal is to give the house a distinctive feel: what is the smell and what are the touches that make it feel special,” says Young. “They want to create a precise place and memory for the family and their guests.” The architecture aspires to find a balance with the landscape and the diverse set of activities from yoga retreats to family reunions.

考虑到这一点,室内色调是现代和热带的,重点是颜色、纹理和天然木材。一楼以饱和的色调为主: 客厅采用了深翠绿色的面料,餐厅在定制的黑色漆面嵌入式家具后面有一面茶色的威尼斯石膏墙,图书馆在桃花心木书架后面有一面深蓝色的墙。相比之下,二楼的卧室则显得大气而朴素。以中性色调和纺织品为重点,藤条表面与白色水磨石地板和偶尔的颜色和材料的点缀相交。主卧室有一个由Hiroko Takeda和KWH定制的纺织屏风,而客人套房有一个浅色的威尼斯石膏装饰墙。家具和装饰品来自多米尼加当地的设计师(Casa Alfarera, Ysabela Molini)和纽约的精品设计师(Kai Wei Hsu, Hiroko Takeda, Hollis & Morris, MVG MTNS, Egg Collective, and Chen & Kai),包括由Colony Design组织的几个委托项目。
With this in mind, the interior palette is contemporary and tropical, with a focus on colors, textures, and natural woods. The ground floor is dominated by saturated hues: The living room features deep emerald green fabrics, the dining room is punctuated by a teal Venetian plaster wall behind a custom black lacquer built-in and the library by a deep navy wall behind mahogany shelving. In contrast, the second-floor bedrooms are airy and earthy. With a focus on neutral tones and textiles, rattan surfaces intersect with white alabaster terrazzo floors and occasional accents of color and material. The master bedroom features a custom textile screen by Hiroko Takeda and KWH, while the guest suites have a light-blush Venetian plaster accent wall. Furniture and decorative objects were sourced from both local Dominican designers (Casa Alfarera, Ysabela Molini) and boutique New York-based designers (Kai Wei Hsu, Hiroko Takeda, Hollis & Morris, MVG MTNS, Egg Collective, and Chen & Kai), including several commissions organized by Colony Design.

除了疗养院,大院内的其他建筑也鼓励私人思考和健康,每个建筑都有独特的功能和美学。当游客从丛林一侧到达该地产时,Glitch House是第一个遇到的建筑,为后面的建筑定下了基调,所有这些建筑都从其自然环境中汲取了大量的营养。"马西尼亚克说:"Glitch House不是用一个明确的边界或门楼来标志这一刻,而是奇怪地将自己涂抹在丛林景观中。"这是一个暗示,暗示着指导撤退设计的沉浸式体验"。这座两层楼的住宅容纳了工作人员,并拥有330平方英尺的无障碍屋顶花园,由混凝土砌块(CMU块)和平坦的CMU墙组成,其方向是一个摆动的网格,外表面覆盖着10000多块手绘的浮雕水泥砖,其颜色为明亮的蓝色、绿松石色、绿色和黄色,暗示着一种伪装模式。
Beyond the Retreat House, other structures across the compound encourage private reflection and wellness, each with a unique function and aesthetic. The Glitch House is the first building visitors encounter when arriving at the property from the jungle side, setting the tone for the structures that follow, all of which draw heavily from their natural surroundings. “Rather than marking this moment with a defined boundary or gatehouse, Glitch House strangely smears itself into the jungle landscape,” says Marciniak. “It is a hint towards the immersive experiences that guide the design for the Retreat in general.” The two-story residence, which houses staff and boasts 330-square-feet of accessible roof gardens, is composed of concrete masonry block (CMU block) and flat CMU walls that are oriented in an oscillating grid, with exterior surfaces clad in over 10,000 hand-painted encaustic cement tiles in brilliant blues, turquoises, greens, and yellows that allude to a camouflage pattern.

在离疗养院更近的地方,招待所是一个安静的、充满阳光的4个卧室和4个浴室的绿洲,供更多的客人使用。该建筑由一系列四个相同的套房组成,其方向在一个屋顶下旋转,每个卧室之间的阴影区域创造了共享的户外空间。建筑物的方向是由位于邻近空地上的两棵高耸的古老榕树(建筑师亲切地称之为阿凡达和小阿凡达)决定的;每间套房都可以通过位于每张床脚下的全墙画窗看到这两棵树中的一棵。该住宅位于这片郁郁葱葱的土地上唯一的天然空地上,稍稍远离了丛林树冠的阴凉,并接受大量的阳光直射。它也有能力作为来访艺术家的住宿和工作室空间,充当一些创造性的居住地。
Closer to the Retreat House, the Guest House is a quiet, sun-drenched 4-bedroom, 4-bathroom oasis for additional guests. The building comprises a series of four identical suites whose orientations rotate under a single roof, where the shaded areas between each bedroom create shared outdoor spaces. The orientation of the structure was determined by two towering, age-old ficus trees (affectionately called the Avatar and baby Avatar by the architects) located in the adjacent clearing; each suite offers a view of one of the two trees through full-wall picture windows located at the foot of each bed. Located in the only area on the lush property that is a natural clearing, the home is slightly removed from the shade of the jungle canopy and receives a significant amount of direct sunlight. It also has the capacity to serve as lodging and studio space for visiting artists, acting as something of a creative residency.

毗邻海岸,岩石屋和瑜伽馆成为专注于周到的锻炼、冥想和放松的区域。岩石屋依偎在海滩的边缘,是一个由六块石头组成的统一集合体—一个广泛暗示自然侵蚀的岩层或奇怪的遗迹的几何形状。在里面,六个空洞容纳了一个露天按摩空间、一个地下桑拿、一个冷水池、一个治疗室、以及蒸汽和室外淋浴间。在海滩边的瑜伽馆,一个大的悬臂式屋顶为团体瑜伽课程、音乐表演和俯瞰大海的露天晚餐提供了遮阳和防雨。屋顶本身是一个宽阔的瑜伽平台,四面都有一个无边的水景,并提供广阔的、不间断的多米尼加海岸的景色。
Adjacent to the shore, the Rock House and Yoga Pavilion become zones focused on thoughtful exercise, meditation, and relaxation. The Rock House nestles at the beach’s edge as a unified collection of six stone-like masses—a geometry broadly suggestive of naturally eroded rock formations or strange ruins. Inside, the six cavities accommodate an open-air massage space, an underground sauna, a cold plunge pool, a treatment room, and steam and outdoor showers. At the beachside Yoga Pavilion, a large cantilevered roof offers shade and rain cover for group yoga sessions, music performances, and alfresco dinners overlooking the ocean. The roof itself is an expansive ipe yoga deck, bounded by an infinity-edge water feature on all sides and offering sprawling, uninterrupted views of the Dominican coast.


























Architects: Young Projects
Area: 20000 ft²
Year: 2021
Photographs:Iwan Baan, Karla Read
Structural Engineering: Silman
Construction Unit: Gentry Construction and Vanderhorst
Landscape: Green Paisajismo
Principal In Charge: Bryan Young
Partner And Project Manager: Noah Marciniak
Interior Design: oung Projects with Sukey Novogratz
Interior Design Consultant: Jean Lin of Colony
Local Consulting Architect: Estudio Sarah Garcia
Landscape Consultant: Juan Diego Vasque
Contributing Dominican Designer: Desiree Casoni
Styling And Floral Arrangements: Casa Alfarera (Ysabela Molini) and Bosque Urbanos (Natalia Franch) and Marina Vidal-Young
Country: Dominican Republic