Casa Mulix是一片宁静与和谐的自然绿洲,这里的每个角落都能感受到与自然环境的联系。它将你笼罩在一种幸福和满足的感觉中,这种感觉在你访问后会持续很长时间。
从第一眼开始,这个项目就给人留下了深刻的印象,邀请你在探索中发现它的秘密。首先,吸引你注意力的是主导立面的大体量,它似乎漂浮在第一层,有机会打开以欣赏风景或关闭以确保隐私。白天,这个体量成为一个坚实的块状物,而到了晚上,在室内照明的作用下,它变成了一盏大灯。
Casa Mulix is an oasis of tranquility and harmony in nature, a place where the connection with the natural environment is palpable in every corner. It envelops you in a feeling of well-being and fulfillment that lasts long after your visit.
From the very first moment, the project is impressive, inviting you to discover its secrets as you explore it. The first thing that catches your attention is the large volume that dominates the facade, which seems to float over the first level and has the opportunity to open up to enjoy the views or close to ensure privacy. During the day, this volume becomes a solid block, while at night, with interior lighting, it transforms into a large lamp.




我们的目标是创造一个与周围自然完美融合的空间,同时又不失其舒适和私密的氛围。最大限度地扩大外部的视野是优先考虑的,让周围的美景成为体验的一个组成部分。该设计是基于一个横向的庭院,形成一个三层的高度,并在视觉上连接了房子的三层。
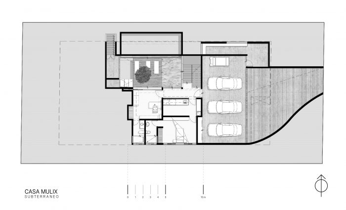
为了进入房子,一个大楼梯欢迎你,并在你享受周围的植被时陪伴着你。到达后,你会发现一个小的外部走廊,它将空间分配给社交区或横向分配给外部露台。接下来是社交区,这里有客厅、餐厅和厨房(可以统一或分割)。当打开整个空间时,与两边的大自然建立了直接的联系,使空间有理想的通风和良好的视野。在东西两侧,产生了拥抱绿色景观的框架,西部的框架更加封闭,以保护我们免受阳光照射。
The goal was to create a space that integrates perfectly with the surrounding nature, without losing its cozy and private atmosphere. Maximizing the views to the outside has been prioritized, allowing the beauty of the surroundings to be an integral part of the experience. The design is based on a lateral courtyard that forms a triple height and visually connects the three levels of the house.
To access the house, a large staircase welcomes you and accompanies you while you enjoy the surrounding vegetation. Upon arrival, you find a small exterior hallway that distributes the space towards the social areas or laterally towards the exterior terrace. Next, there is the social area, where the living room, dining room, and kitchen are located (which can be unified or divided). When opening up the entire space, a direct connection is established with nature on both sides of the property, allowing for ideal ventilation and a great view of the space. On the east-west sides, frames are generated that embrace the green landscape, with the western one being more closed to protect us from the sun.


房子的设计是为了最大限度地利用阳光,我们向外开放或保护自己的强度根据房子的方向而变化。在北面和南面,小的悬臂被用来保护我们不受外界影响并充分利用阳光。另一方面,在东面和西面,我们向自然景观开放更多的空间,或将其关闭以框住邻居的视野。例如,在东面的立面,我们更多地关闭自己以框住邻居的视线,只享受植被。
The house has been designed to make the most of the sunlight, and the intensity with which we open up to the outside or protect ourselves from the elements varies according to the orientation of the house. On the north and south facades, small overhangs are used to protect us from the elements and make the most of the sunlight. On the other hand, on the east and west facades, we open up more to the natural landscape or close it to frame the view of the neighbor. For example, on the east facade, we close ourselves more to frame the view of the neighbor and enjoy only the vegetation.


空间的主角是房子中央的大院子,由于三层的高度向天空延伸,从地下可以看到。房子里的许多空间都能看到这个天井,给它带来了独特而特殊的感觉,可以同时进入房子的内部和外部,所以当走到外面时,你就像穿过了一座户外桥梁。一边是花园,另一边是英式庭院,在视觉上与地下相连,始终被绿色景观和天空包围。
The protagonist of the space is the large courtyard in the center of the house, visible from the underground thanks to a triple height that extends towards the sky. Many of the spaces in the house have views of this patio, giving it a unique and special touch that allows access to both the interior and exterior of the house, so that when walking outside, you are crossing an outdoor bridge. On one side, you will have a garden and on the other, an English courtyard that visually connects with the underground, always surrounded by a green landscape and the sky.

在上层,我们的主要想法是创造一个空间,你可以从那里进入儿童房间,可以看到街道的风景,还有一个自动开合的木格子,以确保必要的隐私。如果你想进入主卧室,你必须绕行并通过社交区。在右侧,有一个向下的双层高度,连接到地下,在空间上创造了巨大的宽敞感。到达主卧室后,首先迎接你的是一扇大窗户,与房屋北侧的所有植被融为一体。主浴室位于房子的西侧,有一个与露台相连的浴缸,可以享受户外沐浴。
On the upper floor, our main idea was to create a space from which you could access the children's rooms with views towards the street and a wooden lattice that opens and closes automatically to ensure necessary privacy. If you want to access the master bedroom, you have to go around and pass through the social area. On the right side, there is a double height downwards that connects to the underground, creating a huge feeling of spaciousness in the space. Upon reaching the master bedroom, the first thing that greets you is a large window that blends with all the vegetation on the north side of the house. The master bathroom, located on the west side of the house, has a bathtub connected to a terrace to enjoy an outdoor bath.

Casa Mulix为您提供了独特和无与伦比的体验,这要归功于它与环境无与伦比的联系,这里的每一个角落都经过精心设计,以最大限度地扩大朝向外部的视野,使景观的美丽成为体验的重要组成部分。这是一个建筑与自然完美融合的房子,创造了一个梦幻般的氛围,邀请你与周围的自然完全和谐地生活在一个独特而难忘的体验。
Casa Mulix offers you a unique and incomparable experience thanks to its unparalleled connection with the environment, where every corner has been carefully designed to maximize the views towards the outside and make the beauty of the landscape an essential part of the experience. It is a house where architecture and nature blend in perfect balance, creating a dreamlike atmosphere that invites you to live a unique and unforgettable experience in complete harmony with the surrounding nature.






















Architects: Arkham Projects
Area: 793.94 m²
Year:2019
Photography: Manolo Solis
Principal architect: Benjamín Peniche Calafell / Jorge Duarte Torre
Construction: Concretum Constructora
City: Mérida, Yucatán
Country:Mexico