项目开始时,我们的客户找到我们,希望我们为他在东角公路上的房产设计一个离网住宅,以达到著名的冲浪点。这个位置和景观对于一个偏远的地方来说是再好不过的了,而且还可以通过一条新铺设的道路到达城镇,截至三年前,这条道路曾经是典型的巴哈沙漠土路。不仅距离和缺乏基本的基础设施是一个挑战,而且要找到合适的材料和可持续的系统来建造和运营房子。
The project started when our client approached us to design an off-grid home for his property on the East Cape road to famous surf breaks. The location and the views are as good as can get for a remote location that is also accessible to town by a newly paved road, which as of three years ago, used to be the typical Baja desert dirt road. Not only was the distance and the lack of essential infrastructure a challenge, but finding the right materials and sustainable systems to build and operate the house.



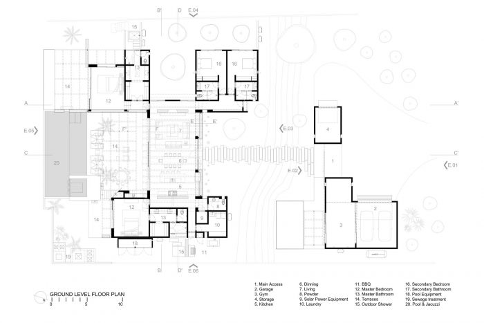
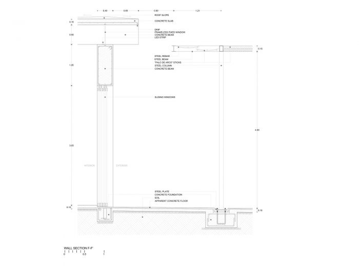
我们最初的方法是将夯土建筑纳入房屋最重要的空间,并利用第二种材料,即混凝土来表达其他的质量元素。夯土墙是隔热墙,也为房屋干燥的沙漠景观带来温暖和湿度。墙壁与抛光的混凝土地板、水泥抛光的墙壁和大房间上的T型混凝土板形成对比。我们想把大房间探索成一个开放的棕榈树,这在大陆沿海建筑中是很常见的。光线和交叉通风来自上方的透明层窗户,天井位于房子的每个轴线上,使之成为一个被动的设计流程。根据客户对空调舒适度的要求,每个房间都必须配备夏季使用的空调空间,但我们设计房屋流线的方式允许新鲜的海岸风和海浪声穿过每个空间。该设计还从内部到外部,创造了一个从舒适的内部空间到地中海-巴哈景观的无缝过渡。运营这个单层四卧室离网住宅所需的设备是中央平顶上的48块太阳能电池板、逆变器、锂电池和一台丙烷发电机,以便在消费较高或阴天时协助太阳能系统。
Our initial approach was to incorporate rammed earth construction to the most important spaces of the house and utilize a second material which is Concrete to express the other massing elements. The rammed earth walls are thermal insulating walls that also bring in warmth and humidity to the dry desert-scapes of the house. The walls contrast with the polished concrete floors, cement polished walls and T shape poured in place concrete slab over the great room. We wanted to explore the great room as an open palapa, which you commonly find in mainland coastal architecture. The light and cross ventilation come from the clear-story windows above, and the patios are located in every axis of the house, making this a passive design flow. Per the client's request for conditioned comfort, every room had to be equipped with Air-Conditioned space for summer use, but the way we designed the flow of the house allows the fresh coastal breeze and sound of waves to travel through each space. The design also travels from inside to outside, creating a seamless transition from a comfortable interior space to a Mediterranean-Baja landscape. The equipment necessary to operate the single-story four-bedroom off-grid home was 48 solar panels on the central flat roof, inverters, lithium batteries, and a propane generator to assist the solar system during higher consumption or on cloudy days

为了让客人了解离网技术,太阳能电池板被暴露在大房间板的边缘,以便在到达时很容易看到,而太阳能电池室可以通过入口粉旁边的玻璃门清楚看到。其余的设备是隐蔽的,其中包括一个废物处理厂,一个用于饮用水的大型地下蓄水池,不幸的是,这些水必须用卡车运来,但为了应对这种情况,我们增加了一个用于景观灌溉的处理水的蓄水池,以及一个用于加热水、炉子和按摩浴缸的丙烷气罐。同样,由于这是我们的第一个太阳能项目,自然和经济迫使我们在设计和功能上创造效率。从一开始到最后,我们想在下加利福尼亚创造现代建筑,利用水平线、大型的户外-室内遮阳空间和当地材料来建造一个简单而非凡的房子。
To educate the guest on off-grid technology, the solar panels were exposed on the edge of the great room slab to be easily seen upon arrival, and the solar battery room was clearly seen through a glass door next to the entry powder. The rest of the equipment was concealed, which consisted of a waste treatment plant, a large underground cistern for potable water that unfortunately has to be trucked in, but in response to this, we added a cistern for treated water to use for landscape irrigation as well as a propane gas tank to heat water, stove, and jacuzzi. Again, since this was our first solar project, nature and economy forced us to create efficiency in design and function. From the beginning to the end, we wanted to create contemporary architecture in Baja California, utilizing horizontal lines, large shaded outdoor-indoor spaces, and local materials to build a simple yet extraordinary house.

























建筑师:RIMA Design Group
面积:450 m²
年份:2020年
制造商:AutoDesk, C.R. Laurence, Sika, Axalta, Carrier, Clopay, Emtek, GE Lighting, Kohler, Leviton, Sherwin-Williams, Viega, Apasco, Cafe, Coyote, Delta, Everest Solar System, Fester, Helvex, Jandy, +13
设计团队:Gerry Rivero, Maritere Rivero, Carlos Flores, Guillermo Valles, Napoleón Guerrero.
施工团队:Sergio Granillo, Pedro Ricardez, Jorge Montaño
国家:墨西哥
Architects: RIMA Design Group
Area: 450 m²
Year: 2020
Manufacturers: AutoDesk, C.R. Laurence, Sika, Axalta, Carrier, Clopay, Emtek, GE Lighting, Kohler, Leviton, Sherwin-Williams, Viega, Apasco, Cafe, Coyote, Delta, Everest Solar System, Fester, Helvex, Jandy, +13
Design Team:Gerry Rivero, Maritere Rivero, Carlos Flores, Guillermo Valles, Napoleón Guerrero.
Construction Team:Sergio Granillo, Pedro Ricardez, Jorge Montaño
Country:Mexico