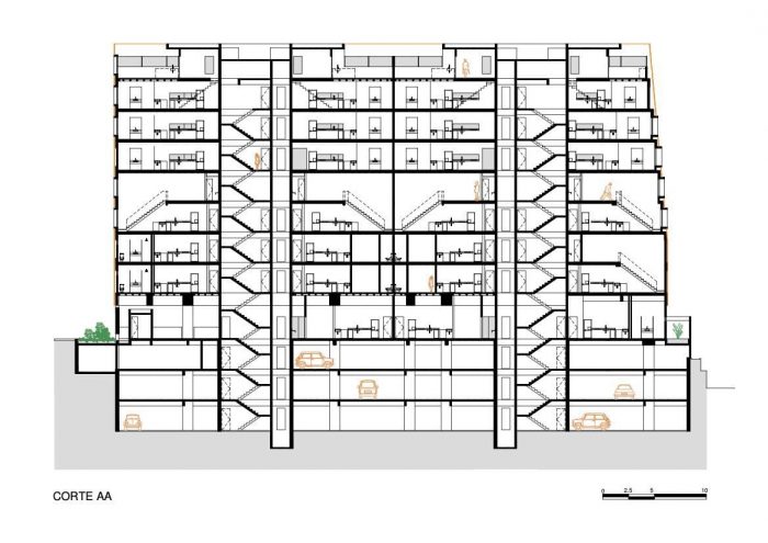
CASAMIRADOR Savassi住宅楼于2021年竣工,位于巴西米纳斯吉拉斯州的贝洛奥里藏特,建筑设计大胆,在当地景观中非常突出。该建筑有14个阁楼和24个单间,分布在9层建筑中,位于一个狭窄的地段,宽度为12.7米。其体积数学的挑战,尊重距离,是影响非显而易见的决定的因素之一,导致建筑创建了自己的身份。
The CASAMIRADOR Savassi residential building, completed in 2021, is located in Belo Horizonte, Minas Gerais, Brazil, and features boldly designed architecture that stands out in the local landscape. The building has 14 lofts and 24 studios and is spread over nine floors in construction and located on a narrow lot, with a width of 12.7 meters. The challenge of its volumetric mathematics, to respect distances, was one of the factors that influenced non-obvious decisions resulting in architecture created with its own identity.





建筑物的结构和建筑项目之间的相互依存关系使其具有极大的创造性自由,最终形成了最突出的元素:第二层皮肤,像衣服一样 "穿 "在建筑物上,赋予其独特的特征。使用的材料是铝,涂成土红色的深褐色调,暗示了米纳斯吉拉斯州丰富的原矿。
The interdependence between the building’s structure and the architectural project enabled great creative freedom, culminating in the most prominent element: a second skin that “wears” the building like a garment, giving it unique characteristics. The material used was aluminum, painted in an earthy reddish sepia tone that alludes to the abundance in Minas Gerais of raw ore.

建筑结构和建筑项目之间的相互依存关系使其具有极大的创作自由,最终形成了最突出的元素:第二层皮肤,像衣服一样 "穿 "在建筑上,赋予其独特的特征。使用的材料是铝,涂成土红色的深褐色调,暗示了米纳斯吉拉斯州丰富的原矿。
The interdependence between the building’s structure and the architectural project enabled great creative freedom, culminating in the most prominent element: a second skin that “wears” the building like a garment, giving it unique characteristics. The material used was aluminum, painted in an earthy reddish sepia tone that alludes to the abundance in Minas Gerais of raw ore.

覆盖建筑的表皮也为各单元提供了热舒适性。在远离砖石的地方,它为栅栏提供遮阳,并通过可再生空气的床垫提供良好的通风。从这个角度来看,可持续性指导了该项目的很大一部分选择。由于土地的尺寸减少,用于安装设备或光伏板的屋顶空间很小,有必要找到一个解决方案,以避免热量的进入,对空调项目造成损害。
The skin covering the building also provides thermal comfort to the units. Away from the masonry, it provides shading for the fences and good ventilation through a mattress of renewable air. From that perspective, sustainability guided a large part of the project’s choices. Due to the reduced dimensions of the land, and minimal rooftop space for installing equipment or photovoltaic panels, it was necessary to find a solution that would avoid the entry of heat, to the detriment of an air conditioning project.

该建筑的金字塔形状是交错的结果,这也使得在砖石的外表面以及表皮的内表面分配技术区域成为可能,确保了清洁和不加修饰的塑料。
The building’s pyramidal shape, which is the result of staggering, also made it possible to allocate technical areas on the external face of the masonry, as well as on the internal face of the skin, ensuring a clean and unadorned plastic.

该项目的另一个亮点涉及到将金字塔放置在地面上的挑战,在一个点上轻轻地接触土地。在巴西建筑师Oscar Niemeyer的影响下,创建了一个 "V "形的支柱,这在他的作品中被广泛使用。
Another highlight of the project concerns the challenge of placing the pyramid on the ground, touching the land lightly at a single point. Under the influence of Brazilian architect, Oscar Niemeyer, a “V”-shaped pillar was created, which is widely used in his works.


最后,为了确保外墙的平整度,板材在四面都进行了弯曲,从而增加了其刚性。尽管板材是随机穿孔的,接缝是对齐的,体积也是和谐的,但还是进行了几次研究,直到最后的固定模型产生了板块和每层楼的中点的排列。该研究确保了用于固定板块的二级结构的优化:每层楼只有三条水平剖面,上下剖面也被组合起来以固定相邻楼层的板块。
Finally, to ensure flatness on the facades, the sheets were bent on all four sides, thus increasing their rigidity. Although the sheets were randomly perforated, the joints were aligned and the volume was harmonious, several studies were carried out until the final fixing model produced an alignment of the slabs and the midpoint of each floor. The study ensured optimization in the secondary structure for fixing the plates: there are only three horizontal profiles per floor, and the upper and lower profiles were also combined to fix the plates of the adjacent floors.

最终的塑料是覆盖板、框架和结构之间结合的结果。有三个元素在外墙上交替出现,与表皮有或多或少的关系,确保了塑料的干净和不加修饰。
The final plastic is the result of a marriage between covering sheets, frames, and structure. There are three elements that alternate on the facades with greater or lesser relevance to the skin, ensuring a clean and unadorned plastic.





















Architects: Gisele Borges Arquitetura
Year : 2021
Photographs :Pablo Gomide, Juliana Berzoini, Leon Myssior
Lead Architect : Gisele Borges
Client : Casamirador Incorporações
Project Leader : Ulisses Mikhail Itokawa
Collaborators : Helena Hostalácio, Iara Pimenta, Mariana Correa, Manuela Fratezzi, Luiza Menicucci, Gabriela Jacobina e Victor Lamounier
Acoustics : Opus
HVAC : Protherm
Structure : Bedê Consultoria e Projetos
Facades : Aludesign
Earthmoving / Structural Work : Geomec Engenheiros Consultores
Installation : Projelet Projetos e Sistemas Prediais
City : Belo Horizonte
Country : Brazil