在城堡、修道院和城门的废墟上,出现了一个现代的反常现象,它在所有的因素面前都很坚定,是工业时代的遗物。一个被发现的物体,一个废弃的地标,耸立在遮蔽的树木之外,被阿克里城堡村所喜爱和不喜爱。锈迹斑斑的水箱是以微薄的预算进行修复和再利用的,它是一个镶板的都铎式大厅,饥饿的木制房间和木制螺旋式楼梯。最小的干预,纯洁的结构,常春藤的生长,风吹大麦的田地,大自然对浪漫的工业废墟的回归。
By the ruins of a Castle, a Priory, a city gate, rises one modern anomaly, steadfast against all elements, a relic from the industrial age. A found object, a disused landmark, towering out of shielding trees, loved and unloved by the village of Castle Acre. Restored and reused on a shoe-string budget, Rusty tank a panelled Tudor hall, Hung timber rooms a timber spiral stair. Minimal intervention, purity of structure, Ivy growing, wind blowing a field of barley, Nature returns for the romantic industrial ruin




水塔,一个轻巧精致的框架,支撑着上面沉重的钢水箱,作为一个地标,标志着它以前服务的历史村庄的结束。
The water tower, a light and delicate frame that supports the heavy mass of a steel water tank above, acts as a landmark that marks the end of the historic village it previously served.


该项目旨在庆祝和延续该结构的生命,将其改造成一个住宅,受益于其独特的形式和周围大麦田的全景。
The project aims to celebrate and continue the life of the structure by converting it to a home that benefits from its unique form and panoramic views of the surrounding barley fields.




对塔楼的修复也将确保其现有的价值得到保留,使其结构系统恢复活力,并暴露出其坚固性和物质性。
The restoration of the tower will also ensure its existing values are retained by giving life back to its structural system and exposing its robustness and materiality.

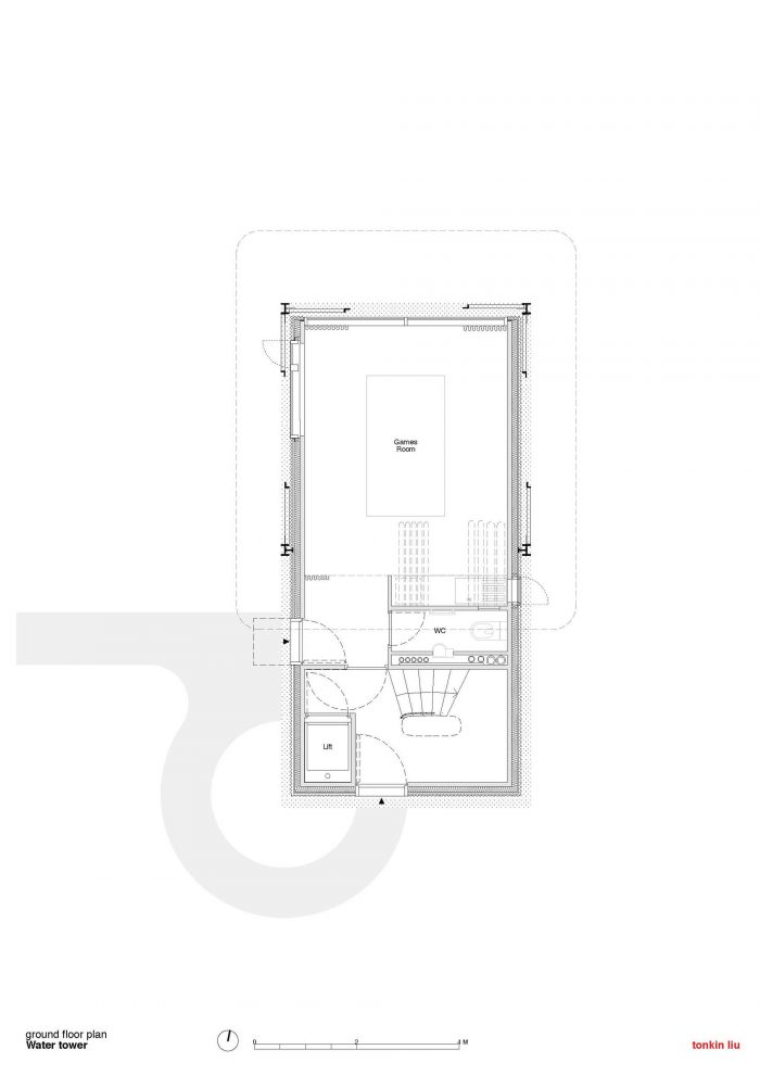
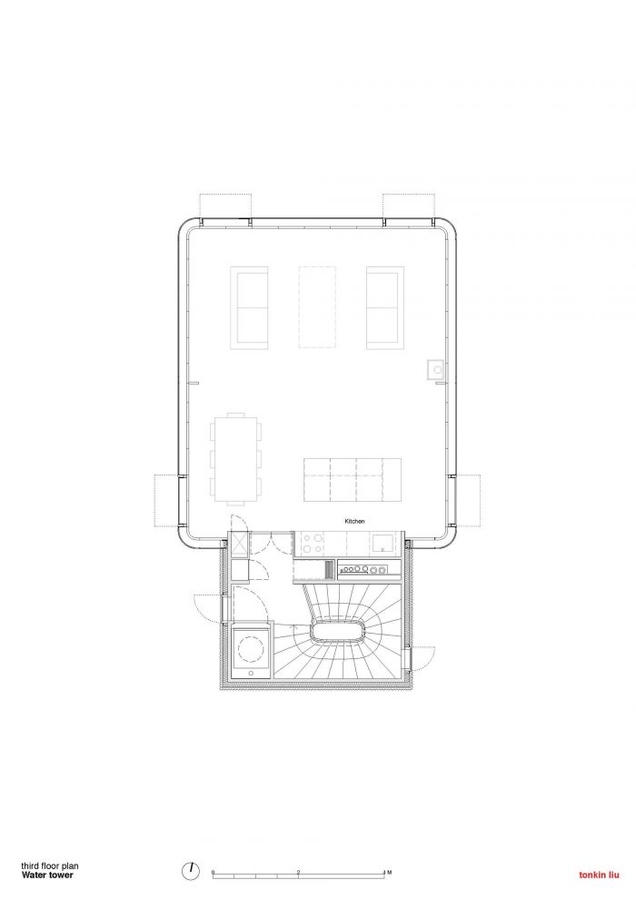
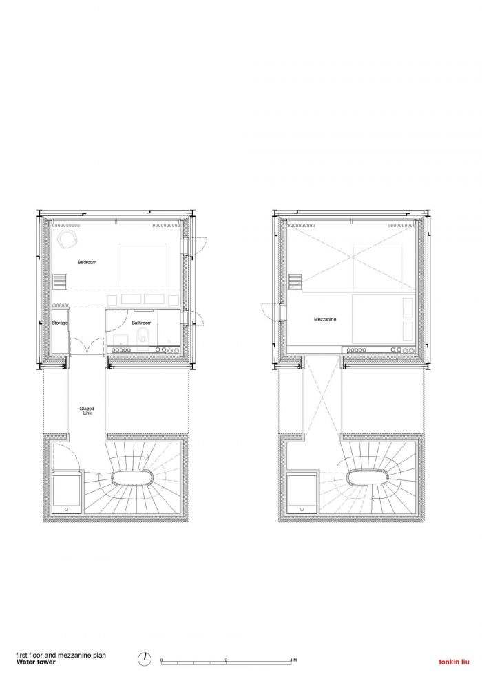
水箱本身将被重新用作生活和餐饮空间,下面悬挂着两间卧室和一个底层花园房间,使该结构与周围的荒野融为一体。南部将增加一个独立的楼梯塔,供人进出。
The tank itself will be reused as a living and dining space, and suspended below it will be two bedrooms and a ground floor garden room that allows the structure to integrate with the surrounding wilderness. A separate stair tower to the South will be added for access.
















Architects: Tonkin Liu
Area: 160 m²
Year: 2016
Photographs: Dennis Pedersen, Taran Wilkhu
Structural Engineer: Rodrigues Associates
Contractor: MNB Services
M& E Engineer: Integration
Country:United Kingdom