这个简单的房子就像一朵花一样被植入巴西大草原Cerrado生物群落的干旱景观中。一对寻求宁静和与自然联系的夫妇委托建造这个城市避难所,它距离巴西利亚中心15分钟车程。2000平方米的地块使得375平方米的建筑可以在土地上展开。它的体量由四个松散的体量组成,绘制在一个方形模块的网状结构上,并围绕一个无遮盖的内部庭院旋转,通过它各体量之间相互连接。
This simple house is implanted as a flower in the arid landscape of the Cerrado Biome, the Brazilian savannah. A couple seeking tranquility and connection with nature commissioned this urban refuge located 15 minutes from the center of Brasilia. The 2000 m2 plot made it possible to spread 375 m2 of construction through the land. Its volumetry consists of four loose volumes, drawn on a mesh of square modules and rotated around an uncovered internal courtyard, through which the volumes are interconnected.




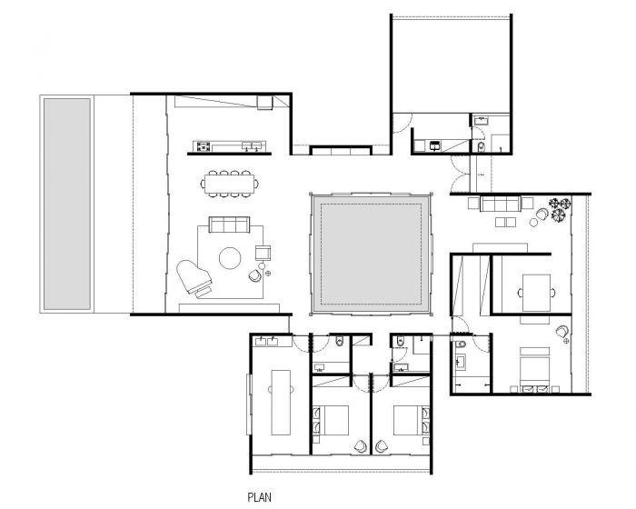
这些 "盒子 "部门的需求方案和不同的景观框架视图。第一块是车库和服务区;第二块是电视室、办公室和主人套房;第三块是两间卧室、一个共用浴室、厕所和工作室。最后,起居室/餐厅和厨房的体积通过滑动门与阳台完全融合。
These "boxes" sector the needs program and different frame views of the landscape: The first block houses the garage and service areas; the second, the TV room, office, and Master suite; in the third, two bedrooms, a shared bathroom, toilet, and the atelier. Lastly, the volume of the living/dining room and kitchen are fully integrated into the balcony by sliding doors.


在房子里走动时,可以看到各种不同的视角。通过主入口的大循环,可以看到花园和游泳池。体积的分离使用户在顺时针绕过庭院时可以看到外部,并提供了一种内向或外向的空间关系。为了纪念 "古老的居民",在建筑工地上居住的本地树 "ipê "被重新种植,作为庭院中心的一个雕塑。由于采用了广泛的全高玻璃,自然光和空气渗透到各个方向。院子里布满了小路、花园和水,除了给房子加湿外,还反射出天空,并将其运动投射到室内。
A variety of perspectives are revealed while walking around the house. It is possible to view the garden and the swimming pool through the great circulation of the main entrance. The separation of volumes allows the user to see the exterior when circling the courtyard clockwise and offers a spatial relationship either introspective or extrospective. To honor the "ancient residents", a native tree ' ipê' that inhabited the construction site, was replanted as a sculpture in the center of the courtyard. Natural light and air penetrate all directions thanks to the extensive full-height glazing with tippers. The courtyard is filled with paths, gardens, and water, which besides humidifying the house, reflects the sky and projects its movements inside.


这座房子是用低成本的材料和建筑方案建造的。通过混合结构,金属梁支撑着混凝土支柱。 外部砖石墙被涂成浅土色,与天空进行色差对话,而内墙是白色的,以突出艺术品和家具。水泥质地的地板覆盖了整个房子,除了潮湿的地方,被灰色花岗岩取代。衬里中使用的海军胶合板在厨房家具和为容纳居民的藏书而设计的书架上找到了连续性。
太阳能电池板全年为水和游泳池供暖。对于它的内部,一个俏皮的精神,由建筑师Samuel Lamas和国内及国际设计大师设计的作品。Mariana Siqueira的景观设计项目被认为是当地生物群落的延伸,有本地的树木和杂草。
The house is built with low-cost materials and construction solutions. With mixed structures, the metal beams support concrete pillars. The external masonry walls are painted in light earth color and dialogue chromatically with the sky while the inner walls are white to highlight works of art and furniture. The cementitious floor coats the entire house, except in the wet areas, which are replaced by gray granite. The naval plywood, used in the lining, finds continuity in the kitchen furniture and on the shelves designed to accommodate the book collection of the residents.
Solar panels heat the water and pool all year round. For its interior, a playful spirit, with pieces designed by architect Samuel Lamas and masters of national and international design. Mariana Siqueira's landscaping Project was thought of as an extension of the local biome, with native trees and weeds.























Architects: Equipe Lamas
Area : 375 m²
Year : 2022
Photographs :Joana França
Manufacturers : Deca, Eliane, Lamas design, Objeto Casa
Lead Architect : SAMUEL LAMAS
Equipe De Projeto : ANNA ALBANO, CAMILA ABRAHÃO, BRUNA TRIVELLI
Landscape : Jardins de Cerrado, Mariana Siqueira
Lighting : SAMUEL LAMAS
Interiores : CASULO ARQUITETURA + SAMUEL LAMAS
Work Of Art : GALERIA KARLA OSÓRIO
Structural Project : VITÓRIA
Sawmill : VALDIRON GONÇALVES
Execution : GUSTAVO STIVAL
Mestre De Obras : ADEMASSO ROCHA
City : Brasilia
Country : Brazil