该项目是一个靠海的三层楼房。对于业主来说,这是一个可以放松的地方,在假期里和她的三只猫一起玩耍。为了建立一个纯粉色的空间,我们用粉色矿物漆作为墙壁和天花板的基础,并选择不同的粉色材料的自然颜色来组成混合风格。
The project is a three-floor house by the sea. For the owner, it is where to relax and have fun with her three cats on holidays. To build a pure pink space, we use the pink mineral paint as the base of the walls and ceiling and select the different pink materials in natural colors to compose the mixed style.



一楼的空间是公共区域,作为日常生活中的客厅,也是与朋友聚会的场所。为了展示主人的收藏品,应用玫瑰金不锈钢设计了活动架和其他柜子,与粗犷的墙面形成了细腻的纹理对比。客厅和餐厅是明确分开的。然而,流线和座位方向可以增加用户在两个区域之间互动的可能性。对于烹饪区上方的天花板圆顶,夸张的风格和图案及其功能支持了空间中的乐趣,并隐藏了所需的设备和管道。
The first-floor space is the public area as a living room in daily life and for gatherings with friends. To display the owner’s collection, the rose gold stainless steel is applied to design the mobile shelves and other cabinets to serve as the delicate texture contrast to the coarse wall. The living room and dining room are clearly separated. However, the flow and the seat direction can increase the possibility of interaction between the two areas for the users. For the ceiling dome above the cooking area, the exaggerated style and pattern with their functions support the fun in the space and conceal the required equipment and piping.


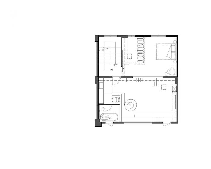
二楼是私人空间,有主卧室、浴室和猫咪的房间。位于中心的猫咪房间与其他空间有直接或间接的联系。猫咪房间的空间设计围绕着猫咪和主人。通过这些细节,我们可以发现空间家具和家具空间之间的概念转换。例如,供猫咪行走的梯子与主人的写字台相结合。主人可以做她喜欢做的事情,同时和猫咪一起玩。她还可以在睡觉前留在主卧室观察隔壁猫咪的举动。此外,主浴室的玻璃可以控制,调整透明度以保护隐私。
The second floor is the private space with the master bedroom, the bathroom, and the cats’ room. The cats’ room at the center has the direct or indirect connection with other spaces. The space design of the cats’ room surrounds cats and the owner. Through the details, we can find the concept transformation between space furniture and furniture space. For example, the ladders for cats to walk on are combined with the owner’s writing table. The owner can do what she likes to do and play with the cats at the same time. She can also stay at the master bedroom to observe the cats’ moves next door before going to sleep. Besides, the glass of the master bathroom can be controlled to adjust the transparency for privacy.

与一楼和二楼不同,风格迥异的多功能三楼是唯一与室外空间相连的地方。在屋顶上,我们会看到阳光、天空,以及有序转动的风力发电机。除了局部的粉色和几何元素外,我们采用了安静而简单的设计手法,保留了铁件、水泥、木材等材料的原始肌理,呈现出室外和室内空间的特殊过渡区域。
Different from the first and second floors, the multi-functional third floor with the different style is the only place connecting to the outdoor space. On the rooftop, we will see sunlight, the sky, and the wind turbines turning orderly. Besides the partial pink and geometric elements, we adopt the quiet and simple design technique by preserving the original texture of the materials such as iron pieces, cement, and wood to present the special transition area between the outdoor and indoor spaces.






















Interior Designers: KC Design Studio
Area : 144 m²
Year : 2019
Photographs :Hey! Cheese
Manufacturers : GamFratesi, Mutina Puzzle, Normann Copenhagen
Architect In Charge : Kuan-huan Liu
Client : Ms. Yeh
City : Jhunan
Country : China