Casa Cavero产生于住宅和其优越的自然环境之间的交叉对话。屋顶是该项目的一个识别和结构元素,它顺利地适应了地块的地形,因此它从地面本身出现,并遵循土地的自然坡度,与它建立了密切的亲密关系。
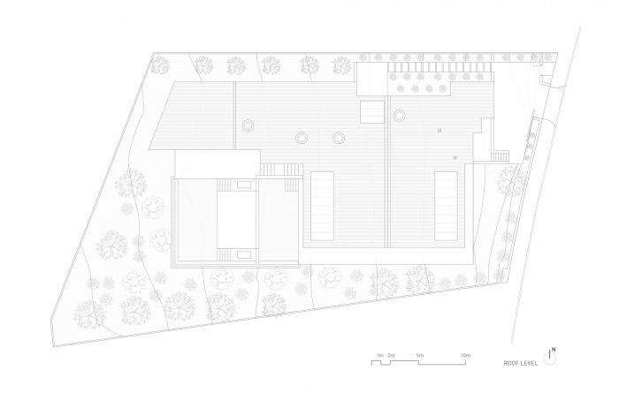
The Casa Cavero arises from a cross-cutting dialogue between the dwelling and its privileged natural environment. The roof, an identifying and structuring element of the project, adapts smoothly to the topography of the plot so that it emerges from the ground itself and follows the natural slope of the land, creating a close and intimate relationship with it.


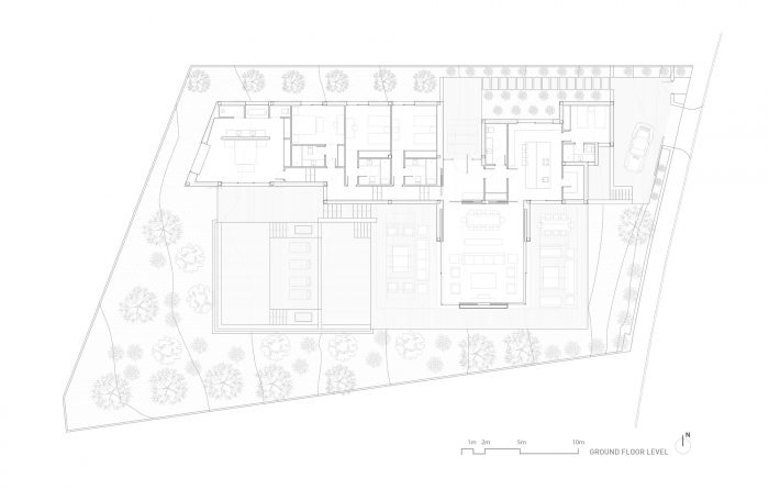
建筑不是强加的,而是为了自身的利益而迁就获得土地的精华。该方案在底层全面展开,除了为用户提供简单的生活方式外,还围绕白天的空间组织功能,包括已建和未建的空间,显示了对环境的承诺,不至于太突出。
Architecture is not imposed but rather accommodates obtaining the best of the land for its own benefit. The program is fully developed on the ground floor, demonstrating its commitment to the environment by not standing out more than necessary, in addition to offering users a simple way of living, and organizing the functioning around the daytime spaces, both built and unbuilt.


主客厅向梅诺卡岛南部海岸的景色敞开,同时受到Tramontana风的保护,允许海风流过并在夏天冷却房间,而在冬天,它允许通过一系列战略性的室外空间来适应强烈的风。
The main living room opens up to views of the southern coast of Menorca while being protected from the Tramontana wind, allowing the sea breeze to flow through and cool the room in summer, while in winter it allows adaptation to the intense winds with a series of strategically located outdoor spaces.


关于它的材料,该项目交替使用了岛上两种非常有特色的材料,如白色砂浆和干石墙,它们与裸露的白色混凝土屋顶和石灰
Regarding its materiality, the project alternates between two very characteristic materials of the island such as white mortar and dry stone walls, which together with the exposed white concrete roof and limestone flooring have a clear integrating vocation with the environment and history of the place.













Architects: Miguel Olazabal Arquitectos
Area: 308 m²
Year: 2020
Photographs:Luis Asín
Lead Architect: Miguel Olazabal
Design Team: Juan Carlos Plaza, Fernando Polo
Structural Engineering: Montserrat Jori
Contractor: Sucesores Barber S.L.
Country: Spain